Das Berghaus

von Rainer Huchler

180911Haus 12_CRwalser_034WEB

Es kommt drauf an, was man draus macht: Leben in Beton, rau und glatt, hell und dunkel

Eine nicht zu helle Fassade, zeitlos und pflegeleicht, ein Haus mit einer großen Garage und einem kleinen Keller, auf einem ebenen Grundstück, rechteckig, nach Süden ausgerichtet, in einem von Einfamilienhäusern geprägten Quartier: Mehr Vorgaben gas es nicht seitens der Bauherren, die Projekte aus dem Vorarlberger Büro von Rainer Huchler und Marika Marte kannten und die Zusammenarbeit mit dem Architekten und der Innenarchitektin gesucht hatten. Die Bauherren verbringen viel Zeit in der Natur und in den Bergen. Ein raues, haltbares Material, das sich kaum verändert, fast wie ein Fels, erschien Rainer Huchler daher richtig – und er überzeugte sie, Beton als Baustoff für die Außenhaut zu verwenden. Ein Steinbruch nur ein paar wenige Kilometer entfernt, lieferte den nötigen Zuschlag und verleiht dem Haus heute seinen markanten Charakter: gebrochenes, dunkles, graugrünes Steinmaterial, das nach dem Ausschalen gewaschen wurde; das heißt, die Feinteile wurden ausgeschwemmt, die Fassade erscheint dunkelgrau. Als Kontrast dazu umfassen Betonfertigteile aus mit Rundkorn gemischtem Beton und schalglatt hergestellt die lasierten Fichtenholzfenster. Auch die Zubauten und die Terrasse wurden aus gewohnt hellem Beton gefertigt.

Es ist jedes Mal aufs Neue eine spannende Geschichte: Ziel ist, dem Bauherrn nicht nur ein Haus, sondern ein Zuhause zu bauen, entwickelt mit ihm und seinem Umfeld. Reduziert auf das Notwendigste, mit möglichst natürlichen und bewährten Materialien.

180911Haus 12_CRwalser_003WEB

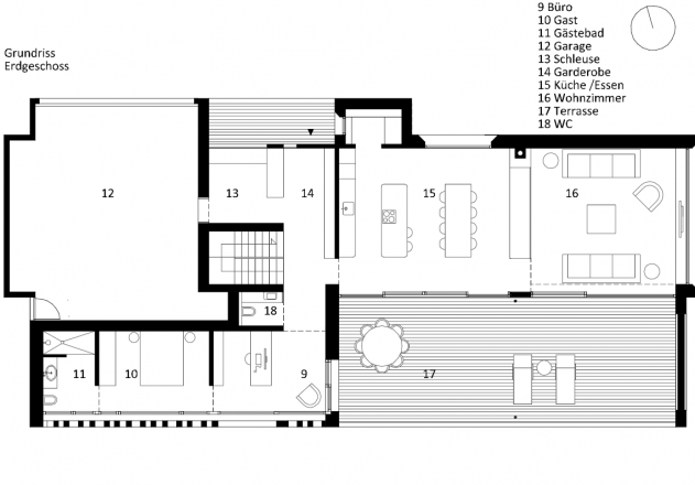
Licht- und Schattenspiele

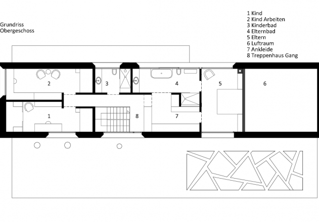
Zentral betritt man das Gebäude, die Türe ist tief in den glatt betonierten, eingeschossigen Eingangsbaukörper eingeschnitten. Ein Nebeneingang führt über die Garage und Schmutzschleuse. Eine Wand aus schwarzem Stahl und Glas, in die auch der Grundofen mit Sideboard integriert ist, trennt Wohnzimmer, Essplatz und Küche mit Speisekammer. Raumhoch verglast öffnet sich der Raum nach Süden und auf die teilweise überdachte, vorgelagerte Terrasse. Streng ist die Fassade gegliedert: Schmale senkrechte Lichtschlitze durchbrechen den Gäste- und Bürotrakt, komplett öffnet sich der Terrassenraum. Ein polygonales Betongitter sorgt für Licht- und Schattenspiele auf dem Holzrost am Boden, das markante Muster wiederholt sich zudem an der Decke im Wohnzimmer und sorgt dort für gute Akustik. Im Obergeschoss sind die Schlafräume sowie das Kinder- und Elternbad untergebracht, eine kreisrunde Dachkuppel belichtet die Ankleide.

180911Haus 12_CRwalser_010WEB

Gebäudedaten

  • Standort: Feldkirch (A)
  • Anzahl der Bewohner: 3
  • Wohnfläche: 227 m2
  • Grundstücksgröße: 791 m2
  • Zusätzliche Nutzfläche: 48 m2
  • Bauweise: Massivbau
  • Energiestandard: Minergiestandard
  • Fertigstellung: 06/2018

Text: Katharina Matzig
Fotos: Dietmar Walser, Hohenems www.walser-image.com

Rainer Huchler
Hauptstraße 4
A-6835 Muntlix
www.marte-huchler.at

Dieses Haus ist erschienen in: „Häuser des Jahres 2019“, Callwey Verlag