Das Darth Vader-Passivhaus

von AMUNT Architekten Martenson und Nagel Theissen.

Disparate Anforderungen fordern eigenwillige Gestalt

Ein Haus, bei dem man sich als Erstes überlegen wird, warum es so aussieht. Die Architekten selbst beschreiben die mit Dachbahnen verkleideten beiden Geschosse als „Südwester“, man könnte aber auch an „Darth Vader“ erinnert werden. Jedoch ging es bei dem Entwurf nicht um ästhetische Verhaltensauffälligkeiten, sondern um die konsequente Umsetzung disparater Anforderungen, die zu der eigenwilligen Gestalt geführt haben.

Amunt Nagel Theissen Darth Vader Passivhaus Lageplan
Lageplan

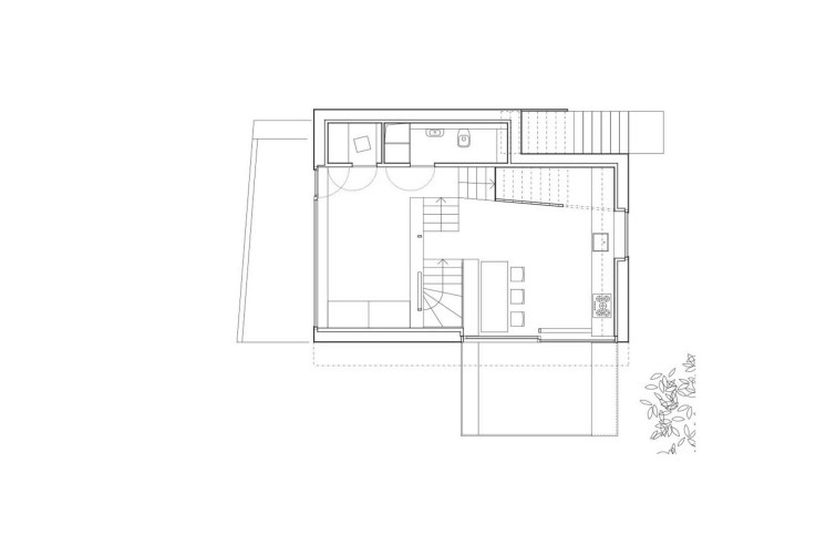
Amunt Nagel Theissen Darth Vader Passivhaus Grundriss Erdgeschoss
Grundriss Erdgeschoss

Städtebauliche Nachverdichtung mit kleinem Budget

Abstandsflächen und von den Nachbarn geforderte Ausblicke, dazu die Überlegung, mit der turmartigen Lösung die Ventilation eines Passivhauskonzepts zu unterstützen, die Teilbarkeit der Wohnflächen und ein überschaubares Budget gehörten zu den Konditionen, denen das Haus als städtebauliche Nachverdichtung auf einem engem Hanggrundstück folgen musste.

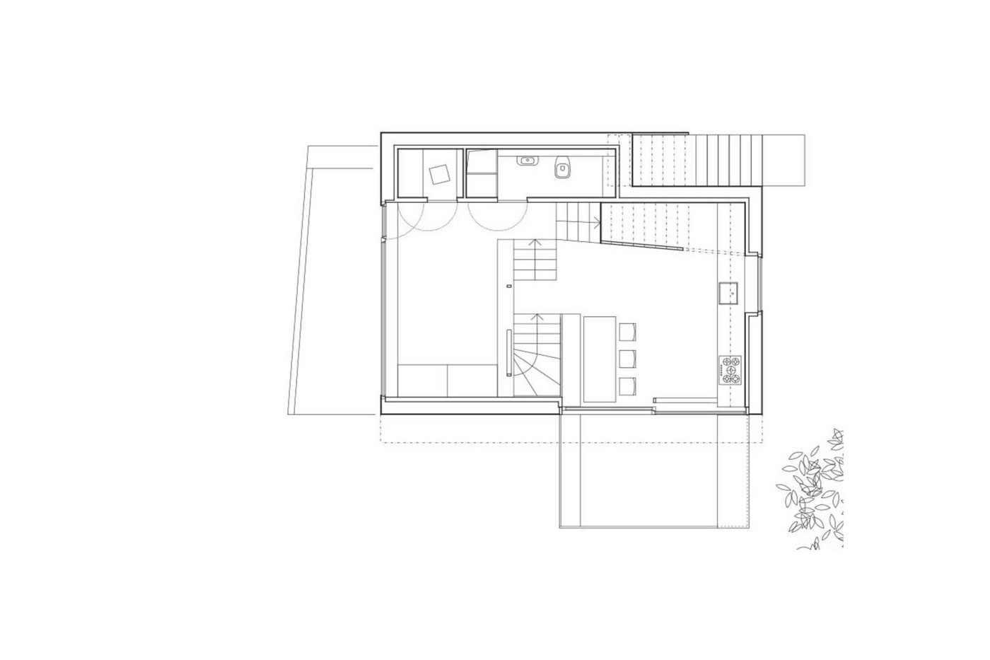
Amunt Nagel Theissen Darth Vader Passivhaus Grundriss erstes Obergeschoss
Grundriss 1. Obergeschoss

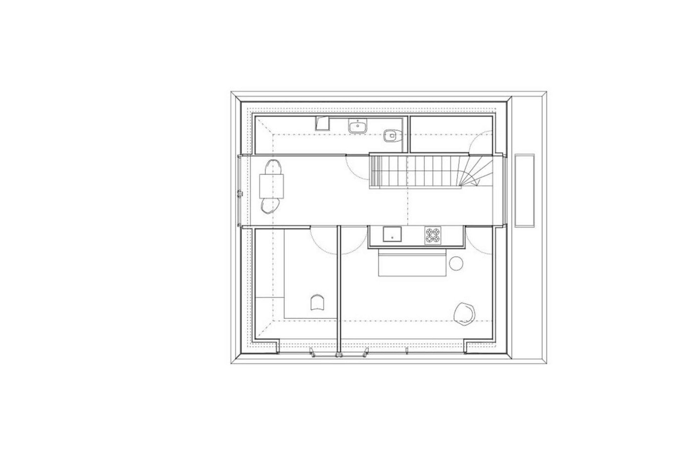
Amunt Nagel Theissen Darth Vader Passivhaus Grundriss zweites Obergeschoss
Grundriss 2. Obergeschoss

Jeder Winkel wird genutzt

Konstruiert ist das auf einem Betonsockel lagernde Haus aus 136 Massivholzelementen, die mit allen Anschlüssen und Aussparungen vorgefertigt wurden. Hier und da ergänzen Stahlträger das Tragwerk. Holz wurde wegen seiner günstigen CO2-Bilanz gewählt, außerdem eignet sich das Material, das nur geschliffen, gelaugt und geseift wurde, für die vielseitige Interpretation des Innenraums. Die Grundrisse des „veredelten Rohbaus“ verschränken sich auch in der Höhe, der diagonale Blick lässt die Räume größer erscheinen. Man befindet sich in einem Gehäuse, dessen allseitige Holzbegrenzungen den Unterschied zwischen Richtung, Dimension, Fläche und Raum beiläufig überspielen. Jeder Winkel wird genutzt, man kann bis unter den Spitzboden steigen, auf Treppen und Fensterbänken sitzen, sich einen Arbeitsplatz einrichten, eigentlich heißt das nur: intensiv Wohnen.

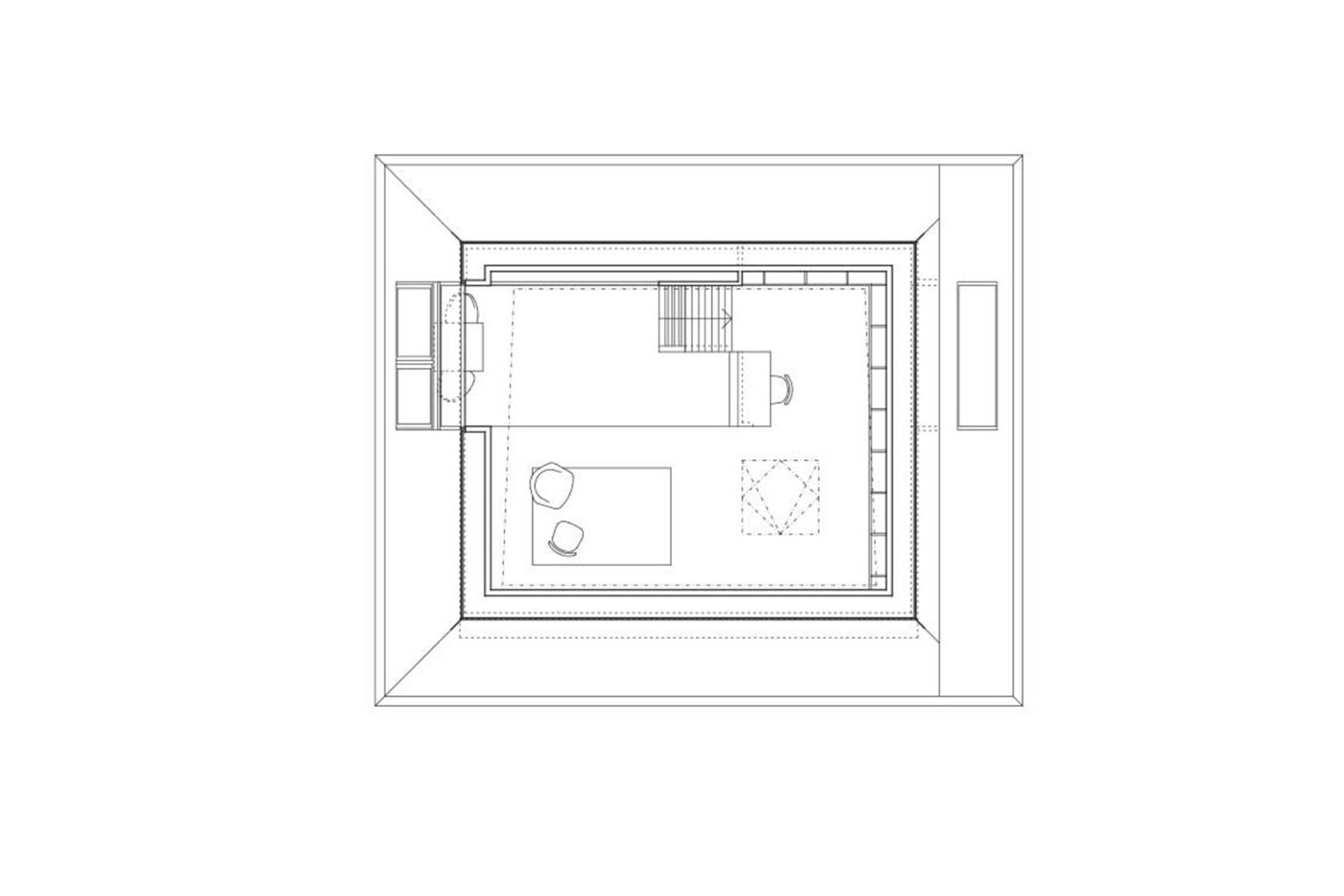
Amunt Nagel Theissen Darth Vader Passivhaus Grundriss Dachgeschoss
Grundriss Dachgeschoss

Ausgeklügeltes Passivhaus-Konzept

Im Erdreich wurden 75 Meter Luft-Erdwärmetauscher-Leitungen verlegt. Auf der nach Süden gerichteten Dachfläche sind Sonnenkollektoren montiert. Ein Kompaktgerät sorgt für Be- und Entlüftung, außerdem für Wärmerückgewinnung, Brauchwassererwärmung und -speicher. Der in der Höhe gestaffelte Innenraum unterstützt den Kamineffekt, der zusammen mit den Öffnungen und Verschattungsmöglichkeiten der Fassade das passive Energiekonzept definiert. Im Winter ergeben sich verschiedene Klimazonen.

Pläne und Grundrisse Passivhaus:

 

Architekt: AMUNT Architekten Martenson und Nagel Theissen

Der mit knappem Budget realisierte, elementierte Holzbau für sechs Personen birgt im Inneren ein differenziertes und spannungsvolles Raumgefüge, das mit geringem Aufwand in zwei separat erschlossene Wohneinheiten geteilt werden kann.

 

Gebäudedaten:

  • Standort: Tübingen
  • Grundstücksgröße: 365 m2
  • Wohnfläche: 138 m2
  • Zusätzliche Nutzfläche: 35 m2
  • Anzahl der Bewohner: 6
  • Bauweise: Massivholzbau / Holzelementbau
  • Heizwärmebedarf: 14,4 kWh/m2a
  • Primärenergiebedarf: 31 kWh/m2a
  • Baukosten: 310.000 Euro
  • Baukosten je m2 Wohn- und Nutzfläche: 1.820 Euro
  • Fertigstellung: 2010

Fotos:

Brigida Gonzalez, Stuttgart

Dieses Haus ist erschienen in: “Häuser des Jahres 2011”, Callwey Verlag.