Altstadthaus

von (se)arch – Freie Architekten.

Bauen auf kleinem Grundstück

Der Ort Metzingen ist vor allem bekannt, weil sich dort ein Projektentwickler, der aus einem Konfektions-Label hervorgegangen ist, zusammen mit der Gemeinde den florierenden Mode-Outlets städtebaulich annimmt. Aber unabhängig davon entsteht gute Architektur, wie das Altstadthaus am historischen Sieben-Keltern-Platz.

search-freie-architekten-altstadthaus-lageplan
Lageplan
search-freie-architekten-altstadthaus-grundriss-untergeschoss
Grundriss Untergeschoss

Strenge Auflagen: Form statt Farbe

Die alten Weinpressen dominieren mit ihrer Fachwerkkonstruktion den prominenten Ort, da musste auch der Neubau einige Bedingungen erfüllen. Ein Satteldach war obligatorisch, die Ziegel durften nur dunkelrot oder braun sein, die Fassade ist mit einem beigen (WDVS-)Putz versehen, die Holzfenster haben außen bronzierte Aluminium-Rahmen und Öffnungsklappen. Die Farben halten sich bewusst in einem überschaubaren Spektrum, um die geometrische Form des scharfkantigen Baukörpers zu betonen.

search-freie-architekten-altstadthaus-grundriss-erdgeschoss
Grundriss Erdgeschoss
search-freie-architekten-altstadthaus-grundriss-obergeschoss
Grundriss 1. Obergeschoss

Wohnskulptur mit kalkulierten Ausblicken

Das neue Haus vervollständigt die Raumkante, die Lücke wurde bisher als Parkplatz genutzt. Der Grundriss übernimmt die Form eines Parallelogramms vom unregelmäßigen Zuschnitt der Parzelle und reagiert auf einen vorhandenen Brunnenschacht. Der Innenraum ist als Wohnskulptur entwickelt, das heißt, es gibt über die Geschossebenen reichende Verbindungen, Lufträume, die das Gehäuse in seiner Höhe erleben lassen. Kalkulierte Ausblicke in die Altstadt erscheinen wie große Bilder in den Fassadenöffnungen. Die sind zum Teil fest verglast und erkerartig angelegt, als kleine Loggia eingeschnitten oder als auskragendes Panoramafenster mit Blick bis zur Schwäbischen Alb inszeniert.

ein-altstadthaus-search-freie-architekten-bda-grundriss-zweites-obergeschoss.jpg
Grundriss 2. Obergeschoss
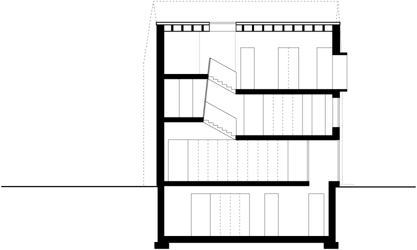
search-freie-architekten-altstadthaus-laengsschnitt
Längsschnitt

Clever: vertikale Funktionszone

Das Erdgeschoss wird von der Vor- und Rückseite erschlossen. Das Untergeschoss ist von einem Tiefhof belichtet und könnte durch eine Außenstiege abgetrennt werden. Die Haupttreppe führt an der Außenwand entlang über viereinhalb Geschosse nach oben. Zusammen mit Funktionen wie Garderoben, Schrankräumen, Nasszellen und Küchenzeile ist diese dienende Zone nur 2 Meter breit.

Der Vorteil dieser Funktionszone ist es, das übrige Volumen von Einbauten frei zu halten, die Räume bleiben nahezu nutzungsneutral. Die beiden oberen Ebenen sind um eine halbe Höhe versetzt, durch diese Staffelung ergibt sich im Erdgeschoss und unterm Dach ein stattlicher Raum. Neben den Treppenbrücken bleiben verbindende Öffnungen, die gläsernen Brüstungen geben dem Blick unerwartete Perspektiven. Die Kalksandsteinwände sind weiß verputzt, alle Böden zeigen die Neutralität eines grauen Zementestrichs.

Pläne:

Architekt: (se)arch – Freie Architekten 

Die Herausforderung bestand darin, auf einem Minigrundstück (…) eine maximale nutzungsneutrale Fläche zu schaffen.


Gebäudedaten:

  • Standort:Metzingen
  • Wohnfläche: 181 m²
  • Grundstücksgröße: 150 m²
  • Zusätzliche Nutzfläche: 198 m²
  • Bauweise: Massivbauweise/Kalksandstein
  • Fertigstellung: 04/2012


Fotos:

Zooey Braun, Stuttgart

Dieses Haus ist erschienen in: “Häuser des Jahres 2014”, Callwey Verlag.