Ein Bürgermeisterhaus

von Jöllenbeck + Wolf.

Joellenbeck Wolf Architekten ein Buergermeisterhaus Lageplan
Lageplan

Zeitgemäß und doch traditionell

Hier wohnt der frisch gewählte Bürgermeister, er hat sich in der ihm anvertrauten Gemeinde ein Betonhaus für seine vierköpfige Familie gebaut. Das Grundstück liegt zentral, doch mit freiem Blick über die Felder. Alle Infrastruktureinrichtungen sind zu Fuß erreichbar. Die Architektur zeigt Zeitgenossenschaft, nimmt jedoch auch Attribute traditioneller Bauten der Umgebung auf.

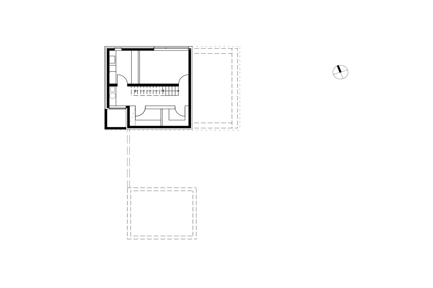
Joellenbeck Wolf Architekten ein Bürgermeisterhaus Grundriss Untergeschoss
Grundriss Untergeschoss

Privatsphäre durch uneinnehmbaren Hof

Das Erdgeschoss liegt etwas höher, so bereitet das hohe Grundwasser keine Probleme und die Bewohner werden vor allzu neugierigen Blicken geschützt. Zwischen dem Haus und der mit einer Betonwand angeschlossenen Garage liegt ein geschützter, nicht einsehbarer Hof. Die Treppe an der Außenseite bildet den Abschluss zur Straße. Die langen, bequemen Auftritte und die Stufenfolge verlangsamen den Zugang, hier trifft der öffentliche auf den privaten Raum.

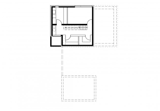
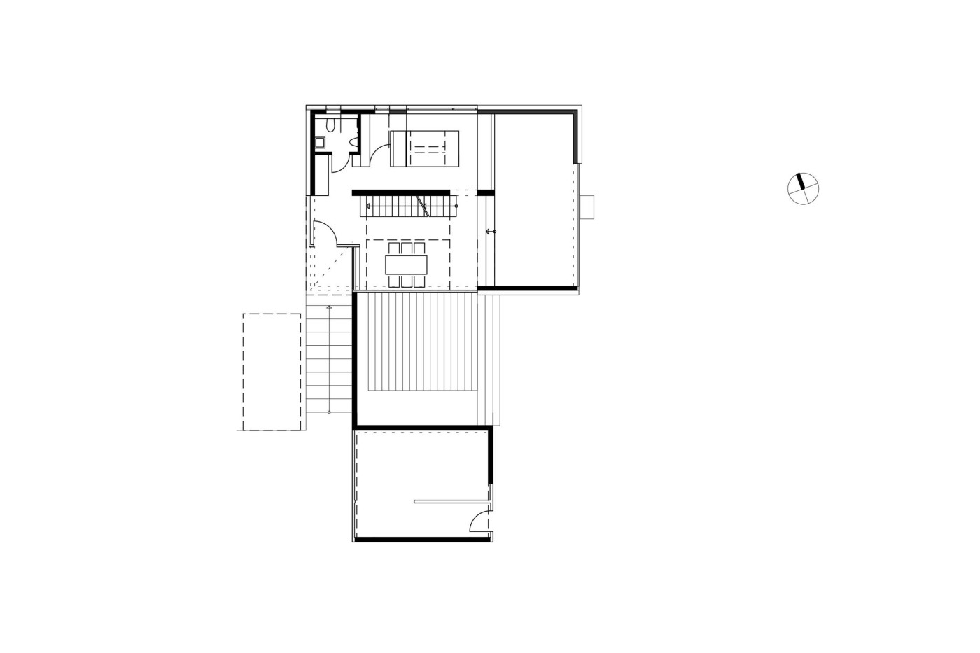
Joellenbeck Wolf Architekten ein Bürgermeisterhaus Grundriss Erdgeschoss
Grundriss Erdgeschoss

Extensive Dach-Begrünung

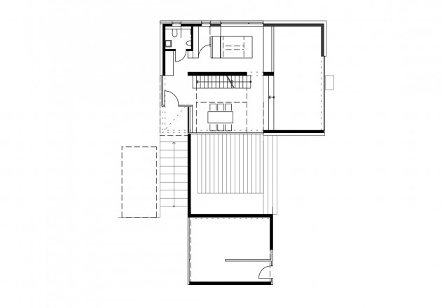
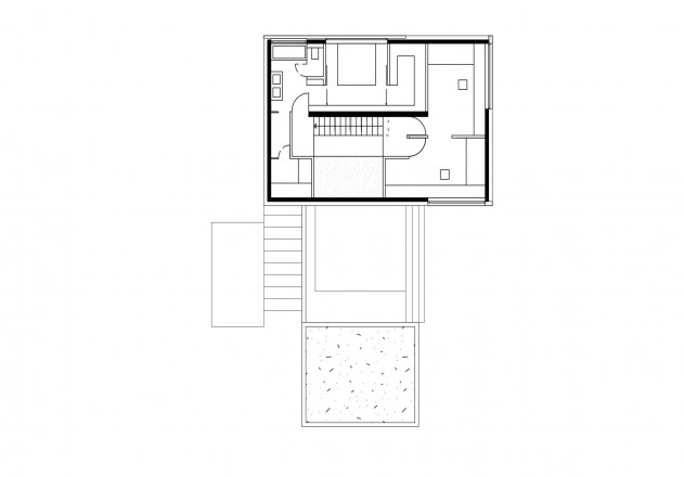
Die Dächer sind extensiv begrünt. Die leichte Neigung vermeidet den starken Kontrast zu den üblichen Dachformen ringsum, betont dennoch die skulpturale Form des weißen Kubus. Der Essplatz mit seiner raumhohen Verglasung wird Teil des Hofs, dieser zweigeschossige Raum ist der Mittelpunkt des Hauses. Zum Wohnraum geht es einige Stufen tiefer, ins Obergeschoss über eine transparente Treppe mit massivem Blockantritt. Ihre Holzstufen kragen von der mittigen Betonwand neben der Küche aus, die Wange zum Essplatz bildet eine bis zur Decke reichende Glasscheibe, die sich als Brüstung an der den Raum überspannenden Brücke fortsetzt. Zwei Kinderzimmer und ein großzügiger Elternbereich samt Sauna gehören zu den privaten Bereichen der Familie.

Joellenbeck Wolf Architekten ein Bürgermeisterhaus Grundriss Obergeschoss
Grundriss Obergeschoss

Kontrollierter Energieverbrauch

Eine kontrollierte Lüftung mit Wärmerückgewinnung minimiert den Energieverbrauch. Sonnenkollektoren erwärmen das Brauchwasser. Die U-Werte der Außenwände liegen ein Drittel, die Verbrauchswerte um die Hälfte unter den Vorgaben der EnEV.


Pläne und Grundrisse Betonhaus:

Architekt: Jöllenbeck + Wolf 

 Das angehobene Erdgeschoss schützt vor dem hoch stehenden Grundwasser – und vor allzu neugierigen Blicken.

Gebäudedaten:

  • Standort: Karlsdorf-Neuthard
  • Grundstücksgröße: 469 m2
  • Wohnfläche: 153 m2
  • Zusätzliche Nutzfläche: 54 m2
  • Anzahl der Bewohner: 4
  • Bauweise: massiv (Beton)
  • Heizwärmebedarf: 43,4 kWh/m2a
  • Primärenergiebedarf: 58,6 kWh/m2a
  • Fertigstellung: 2009


Fotos:

Thomas Ott Fotografie, Mühltal

Dieses Haus ist erschienen in: “Häuser des Jahres 2011”, Callwey Verlag.