von Schaeffer Architecture and Technology.
Vom Einfamilienhaus zum Mehrgenerationenhaus
Zum Prinzip Nachhaltigkeit gehört es, nicht nur an eine kurzfristig erreichbare Energieeinsparung zu denken (und mit inzwischen kritisch betrachteten Dämmpaketen herzustellen), sondern den Lebenszyklus eines Gebäudes zu betrachten. Bei diesem Energiesparhaus wurden mit der Planung der flexiblen Grundrissstruktur schon zahlreiche Szenarien für spätere (kleine) Umbauten und Umnutzungen bedacht. Zunächst belebt eine Familie mit drei Kindern den großzügigen Wohnraum und die Nutzflächen im Untergeschoss. In einigen Jahrzehnten könnte man das Haus mit einfachen Mitteln in zwei Wohnungen teilen. Und für sehr passable Energiewerte reichten kammergedämmte Hochlochziegel, innen und außen verputzt.
Einfamilienhaus im Kaffeemühlen-Stil
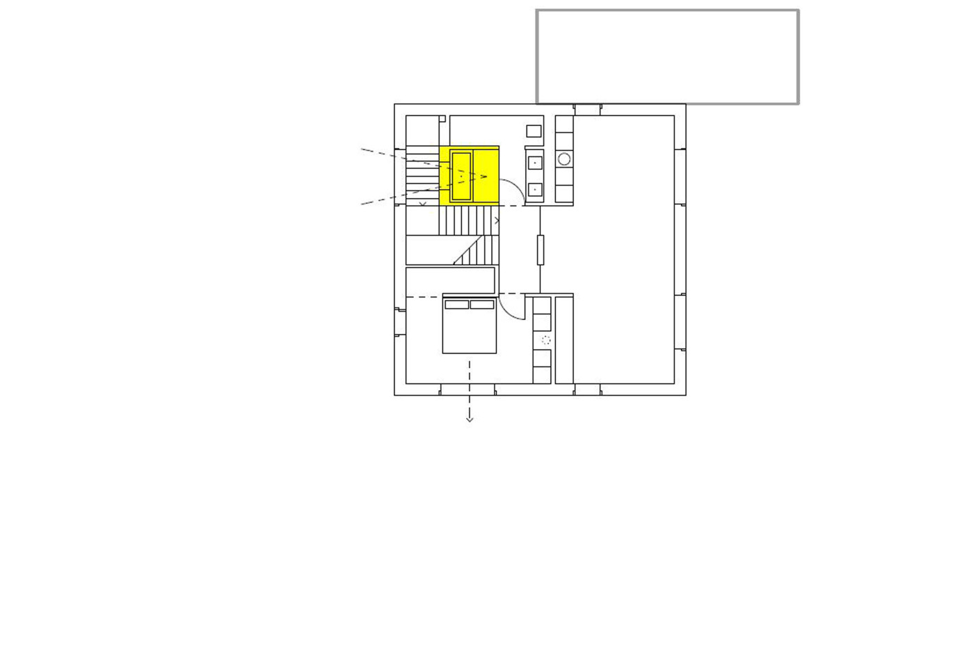
Der Baukörper erinnert an die in den 1930er Jahren populären „Kaffeemühlen“, das Eckgrundstück im Münchner Süden bot sich an für so einen quadratischen Grundriss. Mit seinen 10 Metern Kantenlänge fügt sich das Haus als punktförmiges Volumen in die bestehende Siedlung. Die Innenorganisation (und auch die meisten Fenster) halten dieses Bildungsprinzip in Erinnerung: ein Fugenkreuz im gegossenen Zementestrich teilt das Quadrat im Erdgeschoss in vier kleinere Felder. So entstehen definierte Zonen, ohne den offenen Grundriss für Kochen-Essen-Wohnen abzuriegeln. Die Treppe winkelt sich am Eingang um das Gäste-WC, so ließe sich im Windfang problemlos eine Teilung in zwei Wohnungen vornehmen: einmal Erdgeschoss und Souterrain, dann Ober- und Dachgeschoss. Grobe, gebrauchte Pflastersteine verbinden mit dem Garten.
Viel Licht durch Zenitoberlicht
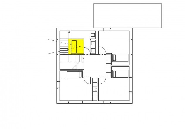
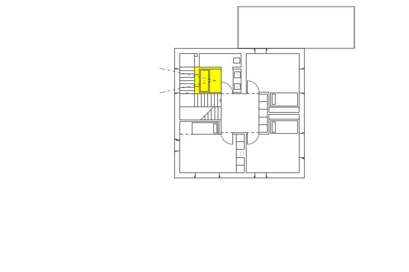
Die Treppe nach oben ändert ihre Position und setzt die diagonalen Sichtachsen in der Vertikalen fort. Licht erhält die Stufenkaskade von einem aus dem Zentrum verschobenen Zenitoberlicht. Es entsteht eine Raumplastik, die auf einem Zwischenpodest den Kindern eine „geheime Höhle“ lässt. Jedes von ihnen hat ein Zimmer mit Bettnische, der Flur dient als Ankleide-Atrium. Aus der Badewanne ergibt sich über das Treppenhaus ein perspektivisch gerahmter Blick auf einen Obstbaum im Garten. Unter dem Dach liegt das Zimmer der Eltern, auch hier fehlt es nicht an künftigen Optionen: Wenn aus der Dusche ein Fotolabor und der Waschtisch zur Minibar wird …
Pläne und Grundrisse:
Architekt: Schaeffer Architecture and Technology
Wirklich nachhaltig ist, was lange besteht und dabei lebendig bleibt.
Gebäudedaten:
- Standort: München
- Anzahl der Bewohner: 5
- Wohnfläche: 177 m²
- Grundstücksgröße: 566 m²
- Zusätzliche Nutzfläche: 109 m2
- Bauweise: hochgedämmter Ziegel, verputzt
- Heizwärmebedarf: 33 kWh/m2a
- Primärenergiebedarf: 41,88 kWh/m2a
- Energiestandard: KfW 70
- Fertigstellung: 02/15
Fotos:
Ursula Mühle, München
Dieses Haus ist erschienen in: “Häuser des Jahres 2015”, Callwey Verlag.