von Wespi de Meuron Romeo Architekten.
Dieses Haus steht auf einem Steilhang oberhalb des Dorfkerns von Ranzo am Lago Maggiore, an der Küste des Gambarogno. Die Aussicht reicht über den See und in die Berge, aber auch die Gleise der Eisenbahn führen in Rufweite am Grundstück vorbei.
Der Baukörper des zweigeschossigen Hauses lagert wie ein Felsen am Berg. Er ist präzise detailliert, verzichtet auf alle überflüssigen Elemente und wirkt dadurch einerseits minimalistisch modern, andererseits kapriziert er sich nicht als blendend weißer Bauhaus-Kubus, sondern fügt sich mit seinem außen und innen kompromisslos verwendeten Kalkzementputz, der den grauen Gemäuern der Umgebung nahekommt, als guter Nachbar ein. Archaisch, erratisch wirkt das Haus auf manchen Fotos, als sei es mit dem Ort verwurzelt. Es verbindet Tradition und Gegenwart, entzieht sich einer zeitlichen Zuordnung. Dazu gehört auch die Behandlung der Außenanlage. Die ortstypische Pflasterung im Hof, die sich auf der Dachfläche fortsetzt, verbindet sich übergangslos mit dem gleichartigen Steinbelag des öffentlichen Fußwegs, der vom Haus zum Strand führt.
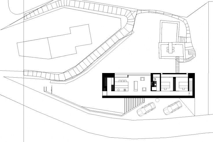
Erschlossen wird es auf der oberen Ebene. Hier führt im fensterlosen Rücken ein Gang wie an einer Schildmauer entlang, er weitet sich mit Küche, Essplatz und Wohnraum bis zur anderen Außenwand auf der Seeseite. Ein geschosshohes Panoramafenster mit schmalem Austritt holt die zauberhafte Landschaft herein. Es gibt noch, etwas versetzt, eine zweite große Öffnung an dieser Fassade für das Arbeitszimmer im Untergeschoss.
Ansonsten reagiert die Architektur auf die Lärmbelastung durch die unmittelbar unterhalb vorbeiführende Eisenbahnstrecke. Die Schlafräume sind nur durch kleine Scharten perforiert. Dahinter entsteht ein schmaler, raumhoch verglaster Lichthof, der im Obergeschoss zusätzlich durch einen Deckenschlitz von Streiflicht erhellt wird, über einen Gitterrost trifft es auf das untere Niveau. Diese Kammern hinter der Außenwand dienen dem Schallschutz, aber sie reflektieren auch die Sonneneinstrahlung von Südosten in die Räume und tragen zum geschlossenen, muralen Äußeren bei, zur herben Poesie der Architektur.
Von einem alten Stall wurden die Umfassungsmauern erhalten, er dient als offener Sitzplatz und wird noch eine Pergola erhalten.
Pläne:
Architekten: Wespi de Meuron Romeo Architekten
Der traditionelle Verputz klingt an die lokalen Mauern an und verleiht dem Ort eine archaische Atmosphäre
Gebäudedaten:
- Standort: Ranzo, Italien
- Wohnfläche: 127 m²
- Grundstücksgröße: 617 m²
- Zusätzliche Nutzfläche: 13 m² (Höfe)
- Außenplätze: 84 m²
- Bauweise: Massivbauweise, verputzt
- Fertigstellung: 2012
Fotos:
Wespi de Meuron Romeo Architekten
Dieses Haus ist erschienen in: “Häuser des Jahres 2013”, Callwey Verlag.