Hintergründig am Hang

von Döring Dahmen Joeressen.

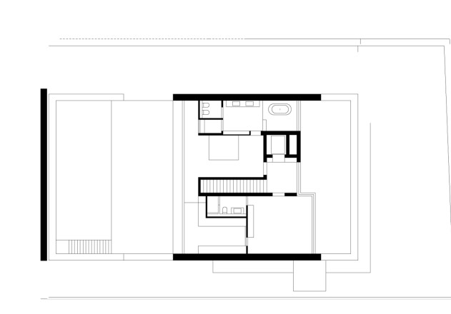
Dies ist ein großes Haus, man sollte sich von seiner kompakten Kubatur, mit der es an die Straße tritt, nicht täuschen lassen. Sie entspricht der Umgebung mit Häusern aus den 1970er Jahren. Das Hanggrundstück erlaubte es, teilweise mit zwei Geschossen unter das Gelände­niveau zu gehen. Ein kontemplativ wirkender Innenhof auf der Südseite sorgt für ausreichende Belichtung, seine Rückwand stemmt sich gegen den Hang und schneidet einen intimen Garten aus. Das Gebäude reicht über vier Ebenen, die durch zwei Treppen und einen Aufzug verbunden sind. Das Untergeschoss birgt einen großen Erholungsbereich mit einer passablen Schwimmhalle. Das Erdgeschoss auf Straßenniveau dient der informellen Nutzung. Hier gibt eine breite Diele Bewegungsraum, wenn Gäste kommen, der anschließende Treppenflur wird vom Gartenhof belichtet. Ein Arbeits- und ein Medienraum, Sauna, Wintergarten und eine Gymnastiknische ergänzen das Wohnen mit funktionalem Komfort.

doering-dahmen-joeressen-hintergruendig-lageplan
Lageplan
doering-dahmen-joeressen-hintergruendig-grunriss-untergeschoss
Grundriss Untergeschoss

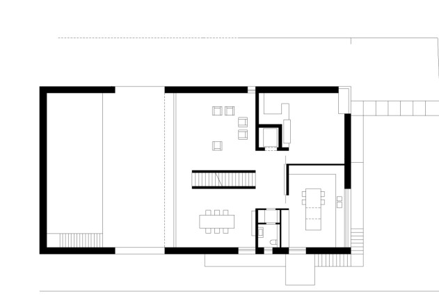
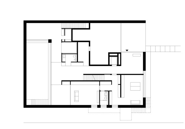
Die Ebene darüber wird durch die Treppe und mit Schiebetüren in abtrennbare Flächen geschickt unterteilt. Es ist ein offener Grundriss, aber Küche, Essplatz und bequeme Sitzbereiche sind so angeordnet, dass man jeweils eine andere, etwas abgeschirmte Raumqualität erlebt. Unverstellte, weiße Flächen bieten ausreichend Platz für Kunstwerke. Eine Glasfront über die gesamte Hausbreite öffnet sich zu einer Terrasse, von der man in den Gartenhof hinuntersteigen kann. Im Dachgeschoss folgt eine imponierende Schlafebene mit entsprechenden Nebenflächen, gesäumt von Balkon und Terrasse. Sie gehören zur angestrebten Balance zwischen innen und außen. Der ruhig gestaffelte, ziegelverkleidete Baukörper korrespondiert mit der Topografie des Gartens, der mit Basaltfelsen und sorgsam platzierten Bäumen Aus- und Einblicke filtert und die Geschosse „natürlich“ verbindet. Eine abgestimmte Lichtplanung akzentuiert außen die Gebäudegeometrie, innen begleitet sie unauffällig mit variablen Stimmungen. Die Haupttreppe zeichnet sich ab als skulpturale, leuch­tende Sequenz. Die Materialpalette ist reduziert auf dunkles Holz, Naturstein und Ziegel, alles soll warm und lebendig wirken. Raumhohe Schränke und Türen verschwinden in den Wandflächen, die Fenster sind mit filigranen Profilen ausgeführt, um die Aussicht und die plastische Wirkung des Baukörpers nicht zu unterbrechen.

Pläne:

Architekt: Döring Dahmen Joeressen 

Ein Geschenk für den Architekten ist ein realer Bauherr mit Leidenschaft für Ästhetik und ein gemeinsamer Dialog auf Augenhöhe.

 

Gebäudedaten:

  • Standort: Rheinland
  • Wohnfläche: 546 m²
  • Grundstücksgröße: 898 m²
  • Zusätzliche Nutzfläche: 160 m²
  • Bauweise: Massivbauweise
  • Fertigstellung: 06/2013

Fotos:
Manos Meissen, Düsseldorf

Dieses Haus ist erschienen in: “Häuser des Jahres 2014”, Callwey Verlag.