Hölzerner Wohnturm in Vignogn

von Graser Architekten.

Dieses Haus hat etwas Erratisches. Mit seinen Fassaden aus säge­rauen Weißtannenbrettern und den schmalen Fensterbändern, die um die Gebäudeecken laufen, steht der hohe Kubus unbehelligt in dem kleinen Dorf im schweizerischen Val Lumnezia. Er gibt nichts preis, lässt seine komplexe innere Organisation nicht vermuten. Tatsächlich birgt das einfache Gehäuse einen höchst anspruchsvollen, an Adolf Loos erinnernden Raumplan. Im Zentrum auf einer quadra­tischen Betonplatte beginnt eine vierläufige Holztreppe, um die sich die Räume auf elf verschiedenen Ebenen organisieren. Jeweils um 90 Zentimeter (das sind fünf Stufen) versetzt staffeln sich große Zimmer und kleine Kammern um diesen Erschließungskern.

graser-architekten-hoelzerner-wohnturm-in-vignogn-lageplan
Lageplan
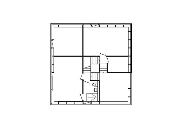
graser-architekten-hoelzerner-wohnturm-in-vignogn-grundriss-erdgeschoss
Grundriss Erdgeschoss

Man betritt das rätselhafte Bauwerk entweder durch die Garage oder eine unauffällige Tür in der Terrassenloggia, die sich durch ein Schwingtor auch über die gesamte Breite öffnen lässt. Der erste größere Raum ist die Küche mit dem über zwei Geschosse reichenden Essplatz, neben beiläufig passierten Funktionsräumen erreicht man auf dem Weg nach oben Schlafzimmer, eine Sauna und schließlich den Wohnraum, der bis unter das als flache, asymmetrische Pyramide aufliegende Dach reicht. Hier lässt sich eine Fensterwand öffnen, sodass man wie auf einer Veranda im Freien sitzen kann. Konstruiert ist das Haus aus 40 Millimeter dicken Blockholzplatten. An den Außenwänden sind sie über senkrecht stehende Rippen, zwischen denen die Wärmedämmung liegt, und eine Konterlattung zu Elementen gefügt. Die Innenwände sind als eigenständige Kuben montiert, die über einen Zwischenraum von 20 Millimetern zusammenstoßen.

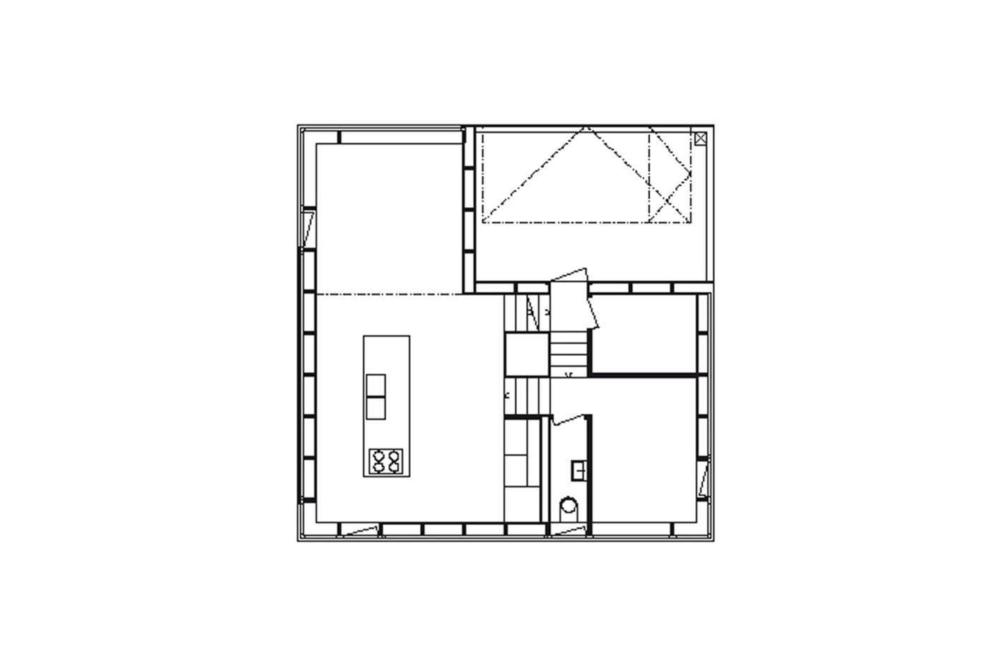
graser-architekten-hoelzerner-wohnturm-in-vignogn-grundriss-erstes-obergeschoss
Grundriss 1. Obergeschoss

An den Außenkanten sieht man also immer eine Kante der Blockholztafeln, an den Türdurchgängen die angeschnittene Konstruktion aus beiden Tafeln mit dem geschlossenen Zwischenraum. Das Haus kommt ohne fossile Heizung aus. Auf dem Dach der hochwärmegedämmten Konstruktion liegen Sonnenkollektoren, die den Wasserkreislauf der Fußbodenheizung versorgen. Um eine sommer­liche Überhitzung zu verhindern, gibt es im Obergeschoss elektrisch betriebene Fensterklappen, die die aufsteigende Wärme abführen.

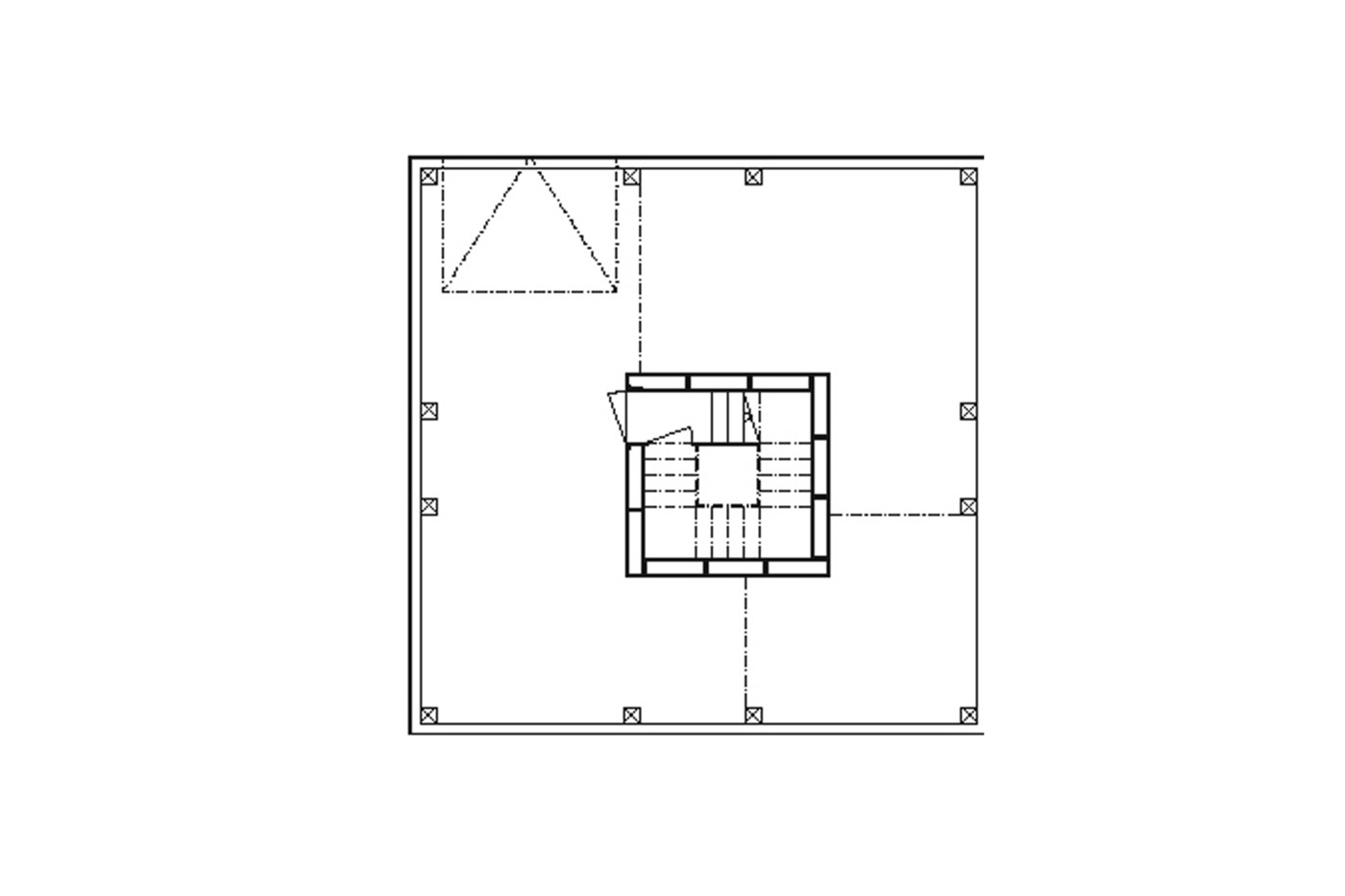
graser-architekten-hoelzerner-wohnturm-in-vignogn-grundriss-zweites-obergeschoss
Grundriss 2. Obergeschoss


Pläne:

 

Architekten: Graser Architekten

Verschieden große Raumzellen sind in einer komplexen Raumfigur um eine vierläufige Treppe im Kern des Hauses gestapelt. Von außen ist das Haus betont unaufgeregt, ohne die expressiv räumliche Geste preiszugeben.

 

Gebäudedaten:

  • Standort: Vignogn
  • Grundstücksgröße: 830 m²
  • Wohnfläche: 175 m²
  • Zusätzliche Nutzfläche: 75 m²
  • Bauweise: Holzelementbau
  • Fertigstellung: 2012

 

Fotos:

Ralph Feiner, Malans

Dieses Haus ist erschienen in: “Häuser des Jahres 2013”, Callwey Verlag.