Moderne Klassik

von Axel Steudel Architekt.

Klassische Villa der Gegenwart

Die Konzeption des Hauses beruht auf einer intensiven Auseinandersetzung mit dem Grundstück und den Wohnvorstellungen einer dreiköpfigen Familie. Sie kulminiert in einer Architektur, die sich an vertraute Merkmale und Formen traditioneller Häuser anlehnt, sie jedoch in die Gegenwart holt und neu interpretiert.

Axel Steudel klassische Villa Lageplan
Lageplan

Risalite, Gesims, Portal & Erker

Zur Straße steht die klassische Villa zurückgesetzt, so ergibt sich ein gepflasterter Vorplatz, den man von der an den Garagenflügel anschließenden Küche überblicken kann. Die auf beiden Ebenen dreigliedrig angelegte Grundrissordnung bildet sich an der Fassade durch die symmetrischen Seitenrisalite ab, zwischen denen das mit Muschelkalk ausgekleidete Eingangsportal empfängt. Auf der Gartenseite ragen zwei flache Erker aus dem einfachen Volumen des Hauses, dessen Erdgeschoss durch einen Steinsockel und ein Gurtgesims umschrieben ist; darüber erhebt sich das durch seine hohen Fenster beherrschend wirkende Obergeschoss.

Axel Steudel klassische Villa Grundriss EG
Grundriss Erdgeschoss
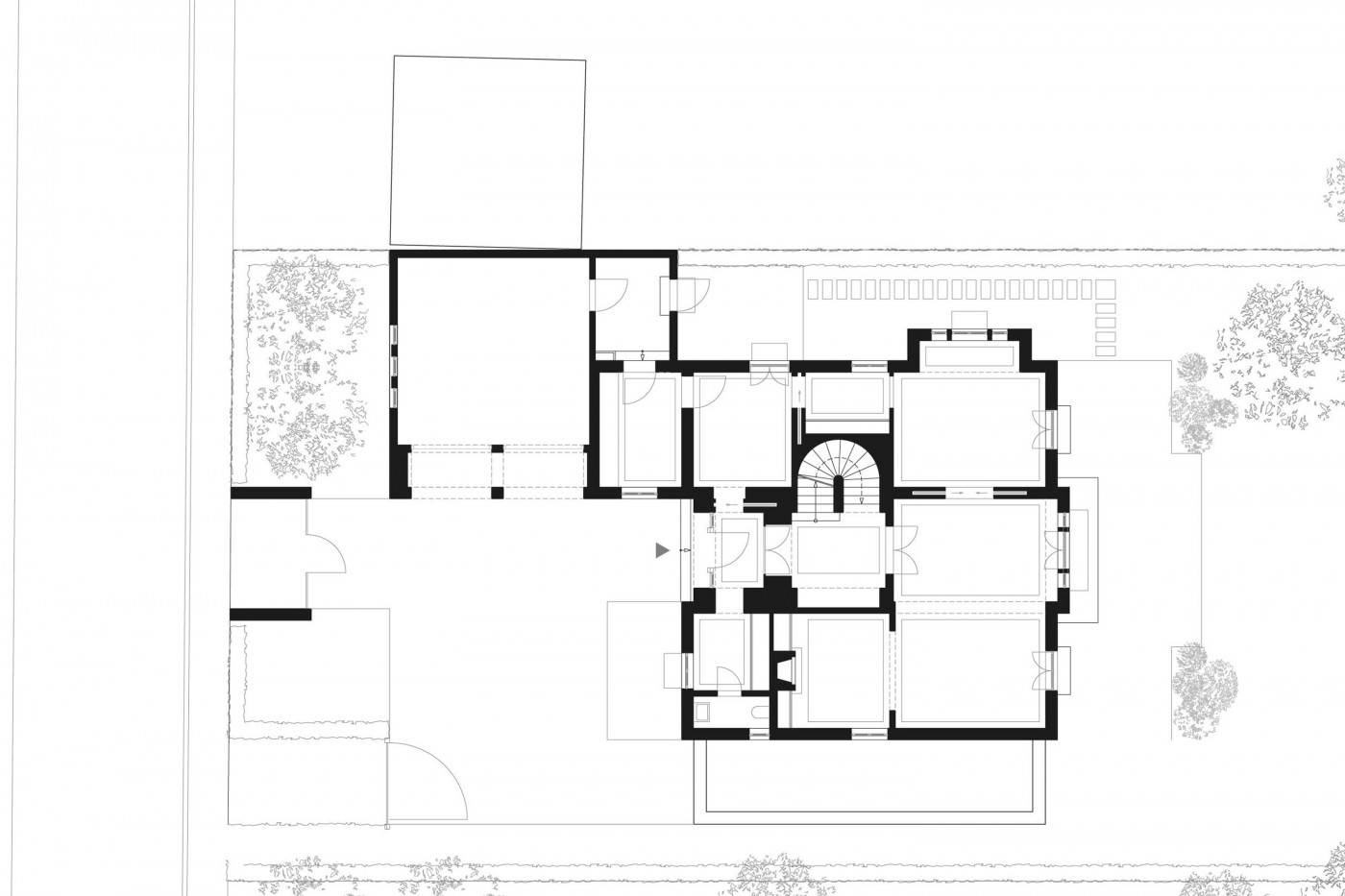
Axel Steudel klassische Villa Grundriss OG
Grundriss Obergeschoss

Gediegene Haushaltsführung

Die Grundrisse entwickeln sich um eine Diele, an die eine halbrund gewendelte Treppe anschließt. Im Erdgeschoss verteilt sich eine funktionale Folge von Wohnräumen, die durch zusätzliche Flächen wie Garderobe, Anrichte, Kaminzimmer, erweiternde Nischen, bündige Wandschränke, Flügel- und Schiebetüren, durch aufeinander bezogene Achsen und Symmetrien sowie einen umlaufenden Fries unter der Decke die architektonische Umschreibung einer gediegenen Haushaltsführung erhalten.

Axel Steudel klassische Villa Schnitt
Schnitt

Spiel mit Ordnungen und Wegen

Im Obergeschoss setzt sich um eine zentrale, von oben belichtete Halle das Spiel mit Ordnungen und Wegen fort. Die einzelnen Schlaf-, Kinder- und Arbeitszimmer werden hinreichend ergänzt von Zwischenfluren und Bädern: Man stolpert nicht einfach in die Räume, sondern entscheidet sich zum Betreten. Ein Salon zum Garten ergänzt die Wohnmöglichkeiten. Der Ausbau mit weiß lackierten Holzwerkstoffen folgt handwerklichen, bewährten Konstruktionen mit dem Ziel, eine angenehme Wohnatmosphäre zu schaffen. Das hoch gedämmte, einschalige Ziegelmauerwerk ist beidseitig verputzt, die Solbänke unter den weiß lackierten Holzfenstern sind aus Muschelkalk, das flach geneigte Zeltdach mit Zinkblech belegt. Zum Energiekonzept gehören eine Wärmepumpe und eine kontrollierte Wohnraumlüftung.

 

Pläne und Grundrisse klassische Villa:

Architekt klassische Villa:

Axel Steudel Architekt

Innen wie außen bestimmen die gute Raumausnutzung und die handwerklich geprägte Bauweise die ausgewogene Atmosphäre des Hauses.


Gebäudedaten klassische Villa:

  • Standort: München
  • Grundstücksgröße: 996 m2
  • Wohnfläche: 273 m2
  • Zusätzliche Nutzfläche: 125 m2
  • Anzahl der Bewohner: 3
  • Bauweise: massiv
  • Heizwärmebedarf: 58,1 kWh/m2a
  • Primärenergiebedarf: 66,8 kWh/m2a
  • Fertigstellung: 2011

Fotos klassische Villa:

Christian Eblenkamp, Rietberg

Dieses Haus ist erschienen in: “Häuser des Jahres 2012”, Callwey Verlag.