Less is more

von baucombinat Architekt Martin Summer

Haus T., Styria by Architect Martin Summer, Vienna, Austria.
Haus T., Styria by Architect Martin Summer, Vienna, Austria.

Platz ist in der kleinsten Hütte

Der Architekt Martin Summer hatte der Bauherrin bereits eine Dachgeschosswohnung in Wien gebaut. Sie kannte und schätzte seine Arbeitsweise und bat ihn, ein neues Ferienhaus zu bauen: auf kleinem Raum, doch mit Platz für bis zu 10 Leute, als Ort für die Gemeinschaft, fürs Kochen und Essen, an dem die Natur im Vordergrund steht. Martin Summer entschied sich daher für die ortstypische Bauweise und übernahm Dachneigung und Giebelrichtung. Der Holzbau, geplant. und vorgefertigt bis zur letzten Steckdosenzuleitung, wurde per LKW auf die Baustelle geliefert und auf vorgefertigte Fundamentstützen montiert. Nach drei Wochen Bauzeit war das Haus samt sämtlicher Einbaumöbel bezugsfertig.

Kontrolle ist gut, Vertrauen ist besser!

Einfach und modular

Konstruktiv ist das Haus sehr einfach aufgebaut. Die Wände, die Decken und das Dach sind aus sichtbarem, konstruktiv wirksamem, steirischem Kreuzlagenholz errichtet, außen gedämmt und mit einer Holzschalung verkleidet, die mit der Zeit nachdunkeln wird. Alle Details sind schlicht gestaltet, die Installationen reduziert geführt. Zudem ist das Häuschen modular konzipiert und kann – bei Bedarf und Nachfrage – in verschiedenen Größen realisiert werden. Die Basisvariante besteht aus drei Modulen mit einer jeweiligen Breite von 2,11 Metern. Daraus ergibt sich eine lichte Zimmerbreite von genau 2,01 Metern, oder eben die Länge einer Matratze im Obergeschoss.

Haus T., Styria by Architect Martin Summer, Vienna, Austria.
Das Gebäude ruht auf einem Stahlbetonfundament und betonierten Säulen, die Ver- und Entsorgungsleitungen sind in einem Schacht zusammengefasst.

Klösterliche Bemessung

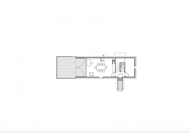
Das Haus wird im Erdgeschoss betreten, gen Westen öffnet sich der große Wohn-Essraum mit davorliegender Loggia-Terrasse auf der einen Seite und ein Abstell-Garderobenraum mit der kompletten Haustechnik auf der anderen Seite. Im Halbstock bietet ein erweitertes Treppenpodest Raum zum Arbeiten und Blick in die Berge, im oberen Geschoss finden die Schlafkojen, ein Bad und eine über dem Eingang schwebende Leseecke Platz. Die Kohen sind mit einer Fläche von etwa fünf Quadratmetern sehr knapp, um nicht zu sagen klösterlich, bemessen. Jede der drei Einzelschlafkojen ist als Haus im Haus ausgebildet, ebenso, wie jeder Mönch im Kloster sein eigenes kleines Refugium hat. Der lange Gang dient als begehbare Garderobe, die Belichtung erfolgt über ein in die nordseitige Dachfläche integriertes Lichtband, das die Matratzenlager an den beiden Enden des Hauses im Giebel über dem Obergeschoss belichtet.

Gebäudedaten

  • Standort: Mürzsteg (A)
  • Anzahl der Bewohner: 10
  • Wohnfläche: 114 m2
  • Grundstücksgröße: 3.113 m2
  • Zusätzliche Nutzfläche: 3 m2
  • Bauweise: massiver Holzbau (Kreuzleimholz) auf Punktfundamenten
  • Fertigstellung: 12/2017

Text: Katharina Matzig
Fotos: Rupert Steiner, Wien www.rupertsteiner.com

baucombinat Architekt
Martin Summer
Singerstraße 11C1
A-1010 Wien
www.baucombinat.at

Dieses Haus ist erschienen in: „Häuser des Jahres 2019“, Callwey Verlag