Modernes Austragshaus

von Schneider | Architekten BDA

Austragshaus Neubau Schneider Architekten Lageplan
Lageplan

Austragshaus mit Aussicht

Nach einem Brand war das alte „Leibgeding“ des Kammererbhofs bei St. Georgen im Schwarzwald bis auf die Grundmauern zerstört. Es sollte so schnell wie möglich an alter Stelle wieder aufgebaut werden. (Unter „Leibgeding“, auch Ausgeding oder Altenteil, versteht man ein zusätzlich mit lebenslänglicher Versorgung und Wohnrecht ausgestattetes Haus, das ein Bauer als Kompensation für die Übergabe seines Hofs an seine Kinder erhält.) Das neue Wohngebäude wird von Nordosten erschlossen und öffnet sich mit weitem Blick ins Tal nach Südwesten. Durch die Hanglage können im Untergeschoss ein Gästezimmer sowie ein Arbeits-  Hauswirtschaftsraum belichtet und vollwertig genutzt werden.

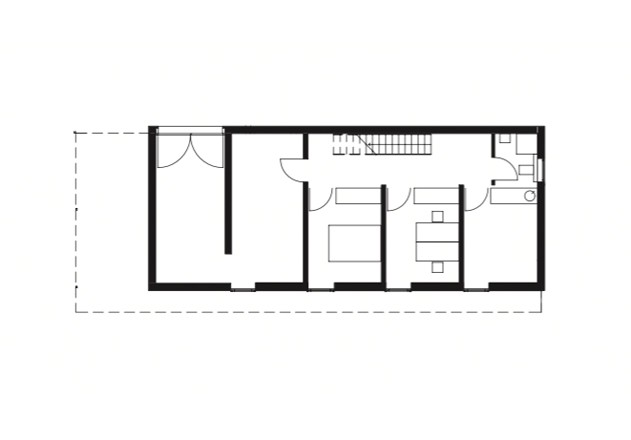
Austragshaus Neubau Schneider Architekten Grundriss UG
Grundriss UG

Schiebeelemente innen wie außen

Der Eingang liegt im Erdgeschoss, markiert und geschützt durch eine kleine Wandscheibe mit Vordach. Ein Windfang mit Garderobe und WC trennt die Treppe und den offenen Wohn-/Essbereich ab. Die Küche kann durch Schiebetüren, die in ein Schrankelement gleiten, abgeschlossen werden. Entlang der vollständig verglasten Südwestfassade verläuft ein Balkonsteg, der sich am Giebel zu einer Terrasse erweitert. Schiebeladenelemente an der Balkonbrüstung lassen sich zur Verschattung nach Bedarf ausrichten.

Austragshaus Neubau Schneider Architekten Grundriss EG
Grundriss Erdgeschoss

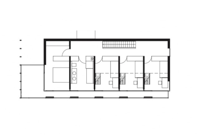
Gleichgröße Zimmer für alle

Die einläufige Treppe führt ins Obergeschoss. Hier reihen sich mit jeweils 3 Meter Breite vier Zimmer und ein Bad aneinander, der Flur dient den Kindern als zusätzliche Spielfläche. Der Schlafraum der Eltern mit einer Ankleideschleuse ist großzügig übereck verglast und reicht bis unter das Dach, bei den drei Kinderzimmern wird die Höhe durch eine Galerie zum Schlafen oder Spielen genutzt, über dem Bad bleibt ein abgeschlossener Abstellraum. Die Fassade mit Verglasung und Balkon entspricht der Ebene darunter.

Austragshaus Neubau Schneider Architekten Grundriss DG
Grundriss Dachgeschoss
Austragshaus Neubau Schneider Architekten Schnitt
Schnitt

Bauholz aus dem eigenen Wald

Das Haus ist als Holzständerbau aus vorgefertigten Elementen errichtet. Innen sind die Wandbauteile mit Gipsfaserplatten, die gleichzeitig die Aussteifung übernehmen, beplankt. Zur Dämmung dienen Holzfaserplatten, nach außen folgt eine Schlagregenschutzbahn, auf die eine vorgegraute Lückenschalung aus Tannenleisten aufgeschraubt wurde. Die Geschossdecken und das Dach sind ähnlich ausgeführt. Auf dem Boden liegen Eichenstabparkett, in den Nassbereichen schwarze Fliesen. Geheizt wird mit Holz, da der Bauherr über eigenen Wald verfügt

 

Grundrisse und Pläne Austragshaus Neubau:

Architekten Austragshaus Neubau:

Schneider | Architekten BDA

Bezeichnend ist immer die Situation des vollverglasten Badezimmers. Man kann hier, dank der freien unverbaubaren Landschaft, völlig blickgeschützt in der Badewanne liegen und die Natur genießen – Baden in der Landschaft sozusagen.

Gebäudedaten Austragshaus Neubau:

  • Standort: St. Georgen
  • Grundstücksgröße: 333.716 m²
  • Wohnfläche: 210 m²
  • Zusätzliche Nutzfläche: 49 m²
  • Anzahl der Bewohner: 4
  • Bauweise: Holzständerbau
  • Heizwärmebedarf: 60,32 kWh/m²a
  • Primärenergiebedarf: 35,5 kWh/m²a
  • Fertigstellung: 2010

Fotos Austragshaus Neubau:

Thomas Riedel, Karlsruhe

Dieses Haus ist erschienen in: “Häuser des Jahres 2012″, Callwey Verlag.