Fünfeckiger Monolith

von atelier-f architekten

 

 

atelier-f fünfeckiger Monolith Lageplan
Lageplan

Traditionelles „Stöckli“ im modernen Gewandt

Jenins ist eine der vier traditionellen Weinbaugemeinden im Norden des Kantons Graubünden, der sogenannten Bündner Herrschaft. Dieser weiße fünfeckige Monolith gehört zum Ensemble des Weinguts zur Sonne, am Ausgang des alten Dorfkerns in Richtung Malans. Es ist das „Stöckli“ auf dem Weingut und liegt hinter der Umfassungsmauer entlang der Hauptstraße im obersten nordwestlichen Zwickel des Obstgartens.

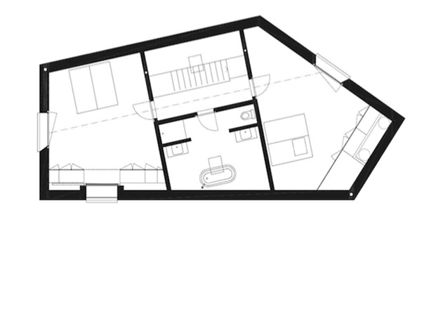
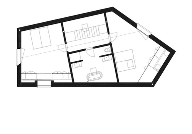
atelier-f fünfeckiger Monolith Grundriss EG
Grundriss Erdgeschoss

Ungewöhnliche Giebel

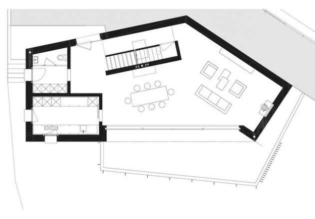
Die fünfeckige Grundrissform des Monoliths entwickelt sich aus den Bezügen zur Umgebung. Die beiden jeweils symmetrischen, klassischen Giebelfassaden stehen im Nordosten parallel zur Straße und im Westen parallel zur Grenze des Obstgartens. Die nördliche Trauffassade flankiert den Zugangshof. Der First verläuft als gerade Linie, sodass sich durch das Fünfeck im Obergeschoss unterschiedliche Raumhöhen ergeben. Neben dem Treppenlauf bleibt eine geschossübergreifende Öffnung, die den oberen Flur wie eine Galerie wirken lässt.

atelier-f fünfeckiger Monolith Grundriss OG
Grundriss Obergeschoss

Im Inneren viel Raum und Licht

Die Raumsequenzen und Fenster entsprechen der Größe und Zuordnung der Funktionen innerhalb des fünfeckigen Umrisses. Die großen Fenstertüren im Wohnzimmer führen nach Süden zur vorgelagerten Veranda, im Geschoss darüber hat das Schlafzimmer ein raumhohes Schiebefenster. Die Küche wird übereck belichtet, das Gästezimmer durch das Giebelfenster von Nordosten.

atelier-f fünfeckiger Monolith Längsschnitt
Längsschnitt

Sichtbeton trifft auf Weinberg

Konstruiert ist das Haus monolithisch aus Misapor-Beton, er trägt und dämmt zugleich. Die fast weißen 50 Zentimeter dicken Wände sind außen und innen sichtbar belassen. Die unterschiedlichen Lösungen für die Öffnungen betonen die massive Wandstärke. Die Bodendielen sind aus Eichenholz, eine Reminiszenz an den Weinbau. Beheizt wird das Haus durch die Sonne, mit dem Kamin und einer Erdsonden-Wärmepumpe für die Grundlast.

Pläne und Grundrisse fünfeckiger Monolith:

Architekt fünfeckiger Monolith:

atelier-f architekten

Die Raumsequenzen und Fensteröffnungen reflektieren die Größe und die Zuordnung der Räume im fünfeckigen Grundriss.

  • Standort: Jenins (CH)
  • Grundstücksgröße: 480 m2
  • Wohnfläche: 136 m2
  • Zusätzliche Nutzfläche: –
  • Anzahl der Bewohner: 2
  • Bauweise: massiv
  • Baukosten: CHF 1 Mio.
  • Fertigstellung: 2009

Fotos fünfeckiger Monolith:

atelier-f Architekten  & Laura Egger

Dieses Haus ist erschienen in: “Häuser des Jahres 2011”, Callwey Verlag.