Parallelogramm aus Beton

von Biehler Weith Associated

Biehler Weith Associated Beton Villa Lageplan
Lageplan

Beton Villa mit expressionistischen Zügen

Zuerst fällt das Parallelogramm der Grundriss-Koordinaten auf. Ihre Schräge resultiert aus der Orientierung auf das Wollmatinger Ried am Untersee, bezieht schließlich das ganze Haus mit ein und erhält durch das sehnsuchtsvoll auskragende Obergeschoss seinen abschließenden Höhepunkt. Eine zweite Interpretation liegt in der massiven Materialität. Eine kerngedämmte, 60 Zentimeter dicke Sichtbetonkonstruktion könnte schon zu Bunkerqualitäten führen, wenn man der Architektur keine dynamische Bewegung gibt. Hier gelang es, die kraftvollen Gesten in Leichtigkeit aufzulösen. Besonders die Gartenansicht mit der quirligen Wendeltreppe in das Terrassen-Erdgeschoss hält Anspielungen parat – auf die Fünfziger- und Sechzigerjahre, den Expressionismus der Wirtschaftswunderzeit.

Biehler Weith Associated Beton Villa Grundriss UG
Grundriss Untergeschoss
Biehler Weith Associated Beton Villa Grundriss EG
Grundriss Erdgeschoss

Skulpturale Gestik und räumliche Erfahrung

Erschlossen wird das Haus von oberhalb, von Süden. Aber auch von der Seeseite führt ein Fußweg hinauf. An der Straße markieren ein durch Betonscheiben gefasstes Tor und eine niedrige Mauer den Zugang. Die Fassade mit der sich abzeichnenden Treppe lässt erkennen, dass es sich bei der skulpturalen Gestik nicht bloß um eine Hülle handelt, sondern das Innenleben neue räumliche Erfahrungen bietet. Der Eingang liegt auf der mittleren Ebene, die sich mit einer breiten Terrasse in die Landschaft schiebt. Dank der Hanglage wird auch das Untergeschoss auf dieser Seite großzügig belichtet, hier sind ein Büro und ein Gästezimmer eingerichtet. Während diese beiden Stockwerke in Querrichtung auf dem schmalen Grundstück lagern, kehrt sich im Obergeschoss die Hauptrichtung um, nun zählt nur noch der weite Blick quer über den See, den man vor allem aus dem Elternschlafzimmer genießen kann.

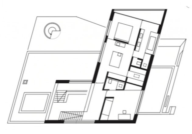
Biehler Weith Associated Beton Villa Grundriss OG
Grundriss Obergeschoss
Biehler Weith Associated Beton Villa Schnitt
Schnitt

Unkonventionelle Funktionszuschreibung

Erwähnenswert ist die unkonventionelle Funktionszuschreibung. Der Wohn-/Essbereich wird nicht nur durch ein Kaminzimmer ergänzt, sondern auch durch eine Waschküche, aus der man beim Bügeln auf die Terrasse treten kann. Ein zentraler Angelpunkt ist die Treppe, deren Podest oberhalb der Küche sich wie ein Nest für die spielenden Kinder anbietet, zum Wohnraum schließt ein vielseitig interpretierbares Bank- und Schrankmöbel an. Eine ähnliche Schreinerarbeit wartet im Ankleidezimmer, eine zweiteilige Kommode mit Sitzgelegenheit, um sich bequem für die Tagesgarderobe entscheiden zu können.

Pläne und Grundrisse Beton Villa:

Architekten Beton Villa:

Bieler Weith Associated

Das Spezifische auszuloten und den identitätsstiftenden Charakter zu stärken: dies empfinden wir als eine zeitgenössische kulturelle Pflicht. Architektur bedeutet für uns die Gestaltung von Orten für Menschen.

Gebäudedaten Beton Villa:

  • Standort: Konstanz
  • Grundstücksgröße: 1.800 m2
  • Wohnfläche: 299 m2
  • Zusätzliche Nutzfläche: 219 m2
  • Anzahl der Bewohner: 3
  • Bauweise: massiv
  • Fertigstellung: 2011

Fotos Beton Villa:

Brigida Gonzalez, Stuttgart

Dieses Haus ist erschienen in: “Häuser des Jahres 2012”, Callwey Verlag.