von Wild Bär Heule.
U-förmige Grundrisse sorgen für Freisitz
Die beiden oberen Ebenen des dreigeschossigen Baukörpers weisen zwei U-förmige Grundrisse auf. Sie stapeln sich um 90 Grad verdreht übereinander, sodass im Erdgeschoss an der offenen Südwestseite ein überdachter Freisitz zum Garten und im Obergeschoss nach Nordwesten eine Terrasse entsteht.
Ein räumlich-plastisches Objekt
Im Zentrum der scheinbar endlosen Schlaufe liegt ein bepflanztes Atrium. Die Kubatur wird aus Platten und Scheiben gebildet, die entweder klare Kanten bilden und einen exakten Baukörper umschreiben oder horizontal und vertikal überstehen, um das Ineinandergreifen und Durchstoßen der Ebenen zu betonen. Die Hülle schließt sich als tektonische Schale um das Gebäude. Die Fenster sind nicht als Öffnungen ausgestanzt, sondern ergeben sich als großzügige Aussparungen, wo waagrechte und senkrechte Flächen aufeinander treffen. Eine zusätzliche Außentreppe zur oberen Terrasse schließt den Rundweg durch das Gebäude, das sich als räumlich-plastisches Objekt präsentiert. Wände und Decken des Scheibenhauses sind aus schwarz eingefärbtem Beton gegossen. Dieser wurde nach dem Aushärten sandgestrahlt und lasiert, damit seine Oberfläche eher wie Naturstein wirkt.
Highlight: mehrere Gartenzimmer
Wichtig ist die enge Verzahnung mit dem Außenraum. Zum Wohnquartier grenzt sich der Garten deutlich ab: an drei Seiten zu den Straßen hin mit einer Betonmauer, zum Nachbarn mit einer dichten Hecke. In dieser Umfassung werden drei unterschiedliche Räume als sogenannte Gartenzimmer definiert: der Zugang als bekiester Hof, anschließend ein holzbelegter Badehof mit einem langen schmalen Schwimmbecken, schließlich die Rasenfläche des Gartens.
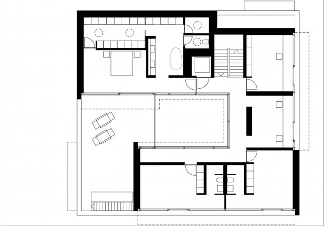
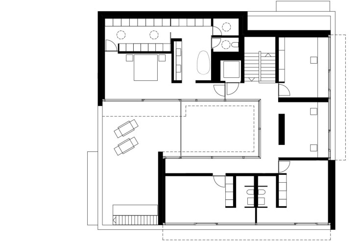
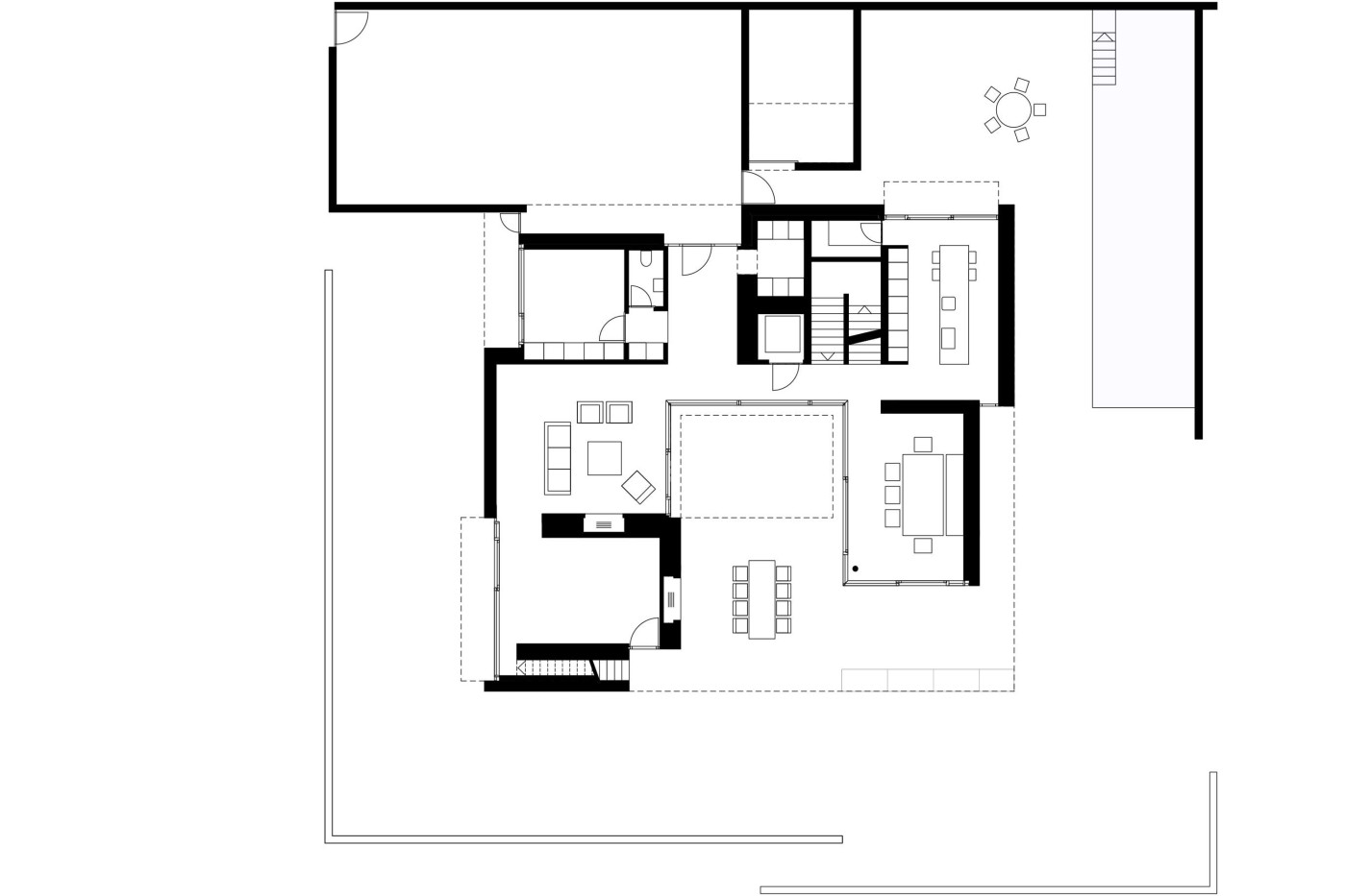
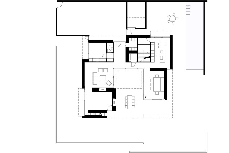
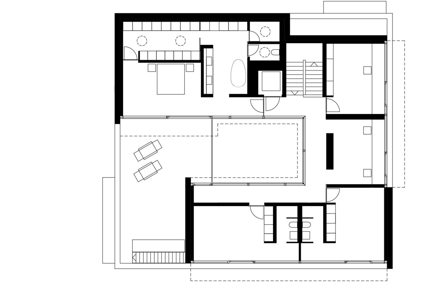
Klassische Aufteilung im Einfamilienhaus
Die Grundrisse sind bei aller Offenheit durch die um das Atrium angelegte Gebäudeform und aufeinander bezogene Scheiben und Fluchten klar nach Funktionen gegliedert. Die Aufteilung ist klassisch, unten Wohnen, oben Schlafen.
Pläne und Grundrisse Einfamilienhaus :
Architekt: Wild Bär Heule
Es ist ein Haus, das sich primär als räumlich-plastisches Objekt präsentiert. (…) Eine enge Verzahnung mit dem Außenraum prägt das Haus.
Gebäudedaten:
- Standort: Zollikon
- Grundstücksgröße: 1.001 m2
- Wohnfläche: 391 m2
- Zusätzliche Nutzfläche: 165 m2
- Anzahl der Bewohner: 4
- Bauweise: massiv
- Heizwärmebedarf: 59,17 kWh/m2a
- Fertigstellung: 2010
Fotos:
Dieses Haus ist erschienen in: “Häuser des Jahres 2011”, Callwey Verlag.