von Bottega + Ehrhardt Architekten.
Ein Haus, das mit seinem Sichtmauerwerk wie ein ausgehöhlter Felsen auf einem Hanggrundstück mit weitläufiger Aussicht oberhalb von Stuttgart steht. Die zweischalige hinterlüftete Fassade des als Passivhaus entwickelten Bauwerks ist mit wassergestrichenen, kohlegebrannten Dünnformatziegeln verkleidet, die die kantige Kubatur wie einen gewachsenen Monolithen wirken lassen. Raumhohe Fenster und die aus Sichtbetonelementen skulptural entwickelte Eingangssituation sowie zwei Terrasseneinschnitte nehmen der Kubatur das Schwergewicht.
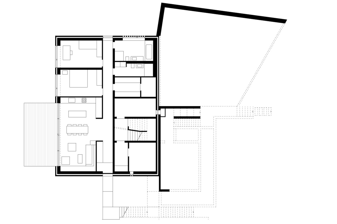
Das dreigeschossige Gebäude ist in zwei Wohnungen geteilt, die über die große Treppe der Hauptwohnung später einmal auch problemlos zusammengelegt werden können. Die kleinere Gartenwohnung wird über eine Außentreppe an der Westseite erschlossen, die größere, über zwei Geschosse reichende von der höher gelegenen Straße. Von dieser Zwischen-ebene führen einladende tiefe Stufen nach oben ins Wohngeschoss, der zweite Lauf geht nach unten zur privaten Schlafebene. Die konische Verschränkung der Treppen und die große Raumhöhe bestimmen das Entree, in dem sich alle Wege treffen.
Die Küche liegt seitlich darüber, von hier lässt sich alles wie von einer Kommandobrücke überblicken. Nach draußen schließt sich ein Essplatz an. Eine zweite Sonnenterrasse orientiert sich diagonal versetzt zur Südostseite. Im Wohnraum, der diese Ebene bestimmt, trennt eine Wandscheibe mit einem nach zwei Seiten offenen Kamin einen Bibliotheksplatz ab. Hier ist eine Sitzbank integriert, das Arbeitspult zwischen den Bücherregalen ragt als tiefes Kastenfenster aus der Fassade.
Im Geschoss darunter liegen zu beiden Seiten eines Mittelflurs, der von einer Schrankzone kreuzförmig erweitert wird, die Räume für Eltern, Kind und Gäste. Das Kinderzimmer erhielt unter dem Eingangspodest eine zusätzliche Spielhöhle, die Enfilade der Elternzimmer lässt sich zwischen Fitness, Sauna, Bad und Schlafen mit hohen Schiebetüren als offener Raum erleben. Die untere Wohnung orientiert sich mit eigener Terrasse zum Garten, hang-seitig befinden sich Bäder, Technik- und Stauräume.
Der Ausbau mit weiß lackierten MDF-Tafeln und einer homogenen dunkelgrauen Bodenbeschichtung verbindet das offene räumliche Konzept und lässt Platz für individuelles Mobiliar.
Pläne:
Architekt: Bottega + Ehrhardt Architekten
Fasziniert hat uns insbesondere die Wärme und Stofflichkeit, welche die Fassade aus den dünnformatigen, kohlegebrannten Klinkern dieser ansonsten strengen kubischen Architektur verleiht.
Gebäudedaten:
- Standort: Stuttgart
- Wohnfläche: 354 m²
- Grundstücksgröße: 859 m²
- Zusätzliche Nutzfläche: 103 m²
- Bauweise: massiv
- Fertigstellung: 04/2013
Fotos:
David Franck Photographie, Ostfildern
Dieses Haus ist erschienen in: “Häuser des Jahres 2014”, Callwey Verlag.