Bauernhof 2.0

von Madritsch Pfurtscheller

Die Fassade lässt die unterschiedlichen Funktionen nicht erahnen: Hinter der homogenen Wand liegen Räume für Mensch und Tier.

Eine verlegte, neu errichtete Hofstelle im Pustertal entstand, da das ruinöse Bestandsgebäude nicht mehr genutzt werden konnte. Die Auflage war, einen landwirtschaftlichen Betrieb zu bauen, der sich ruhig und geschlossen als ein einziges Haus in die Landschaft fügt und seine Wohnnutzung nicht nach außen signalisiert.

So entwickelten die Architekten von Madritsch Pfurtscheller einen kubischen Solitär. Er verbirgt hinter seiner senkrechten Bretterschalung als ein eigenständiges Volumen Wohn- und Stallnutzung und korrespondiert als neue „Unterwindschnur“ (Hofstelle) mit der ähnlich großen „Oberwindschnur“. Dazwischen liegt ein eingezäunter Garten mit alten Bäumen.

Geschlossener Holzwürfel

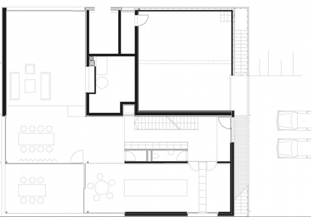
Der geschlossen wirkende Holzwürfel steht als eigener Baukörper am Rand einer Geländesenke, die sich zeitweilig mit Wasser füllt. Die Fassade lässt die unterschiedlichen Funktionen nur erahnen, sie wirkt aus der Entfernung aber einfach und homogen. Zwei Wohnebenen liegen als Winkel um die Haustechnik und den Wirtschaftstrakt, der höhenversetzt das anschließende Gelände in Wiese und Garten trennt.

Trennung von Mensch und Vieh

Der zweigeschossige Stall wird durch die Hangkante in den Hauskubus geschoben. Sein vier Meter hohes Dach dient etwas versetzt als Terrasse für das Obergeschoss, somit ergibt sich eine Trennung von Mensch und Tier. Der Stall kann von oben mit Heu beschickt werden.

Im Erdgeschoss liegt eine große, räumlich etwas abgetrennte Küche, an den drei Meter hohen  Essplatz schließt zwei Stufen höher der Wohnraum an, der dadurch gemütlicher wirkt. Außer der Innentreppe führt eine Stiege an der Hauswand in eine separate Einliegerwohnung im Obergeschoss.

Die Verlegung der Hofstelle wurde in Form einer Punktbebauung mit verschachtelter Wohn-Stall-Situation dem Solitär der alten Oberwindschnur gegenübergestellt.

Auf archäologisch interessantem Boden

In der Hauptwohnung teilt sich die Familie jeweils gleich große Zimmer, die Eltern haben ein eigenes Bad und einen begehbaren Schrankraum. Die breite Diele ist als Wintergarten angelegt, sie wird von der von einer offenen Brettschalung umsäumten Terrasse belichtet und erweitert sich vor den Kinderzimmern zu einem Spielflur.

Der knappe Keller ist so angelegt, dass er ebenerdig von Osten erschlossen werden kann. Wegen immer wieder anstehenden archäologischer Grabungen musste eine tiefere Ausschachtung vermieden werde, das Grundstück wurde stattdessen aufgeschüttet.

Gebäudedaten

  • Standort: Rasen/ Pustertal (IT)
  • Wohnfläche: 319 m2
  • Zusätzliche Nutzfläche Stallungen: 206 m2
  • Anzahl der Bewohner: 4
  • Bauweise: Beton, Holz
  • Fertigstellung: 2010

Fotos: Wolfgang Retter, Lienz

Dieses Haus ist erschienen in: “Häuser des Jahres 2012”, Callwey Verlag.