Backstreet-Einfamilienhaus
Schon vor Jahren hatten die Architekten im Düsseldorfer Stadtteil Derendorf das leerstehende Vorderhaus gekauft und darin ihr Büro eingerichtet. Das Gartengrundstück, eher ein privater Anteil an einer Hinterhoflandschaft, die einst mit Werkstätten und Schuppen von Kleinstbetrieben besetzt war, gehörte sozusagen als Zugabe dazu. Es wird nur durch das Vorderhaus erschlossen. Hier errichteten die Architekten 2003 ein zweigeschossiges Low-Budget-Haus auf 14 × 5 Metern, im Umriss den Abstandsflächen folgend.
Clever aufgestockt: Staffelgeschoss
Auch das Innere respektierte die Vorschriften: zwei offene, durch einen haus-hohen Luftraum über dem Esstisch verbundene, ungeteilte Ebenen, im Rücken die Brandwand zum Nachbarn, die als fensterloser Funktionsriegel interpretiert wurde. Hier lagen ehemals die Schlafkojen für die beiden kleinen Töchter.Inzwischen wurden die Kinder größer und die Bauordnung geändert. So war es möglich, dem Wohnquader im Garten noch ein Staffelgeschoss aufzusetzen. Dort gibt es nun vollwertige Kinderzimmer, ein Bad und zwei Terrassen.
Wohnen im Einraum-Stil
Außerdem wurde der Garten angelegt, der Eingang überdacht und mit einem Mülltrennsystem ausgestattet. Die Erweiterung setzt das bisherige Konzept fort, sowohl die niedrigen Kuben für Sitzpodeste und Beete im Freien als auch der in Holztafelbauweise addierte Dachaufbau orientieren sich an der vorhandenen Architektur. Selbst die Idee des Einraums wird durch die gemeinsame Terrasse, die die beiden neuen Zimmer hauptsächlich belichtet, zitiert. Attraktion sind die schmalen, bis ins Dach reichenden Fenster, die mit Ausblick und Einblick kokettieren. Das Farbkonzept des Bestands – anthrazitfarbiger Beton und orange lasierte Fenster und Schiebeläden aus Lärchenholz – kehrt sich auf dem Dach um.
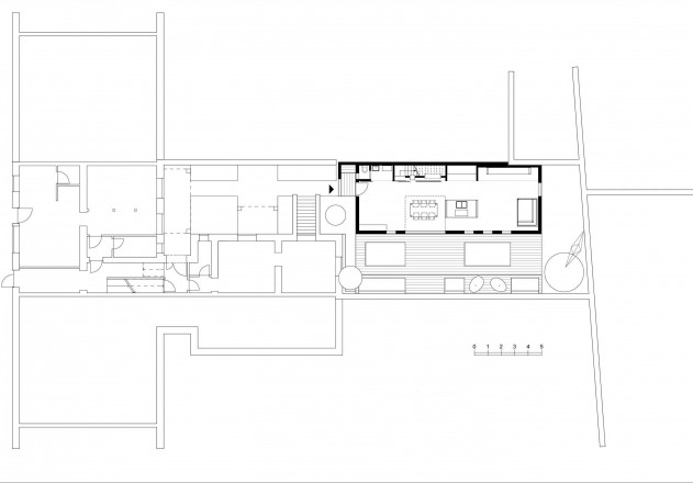
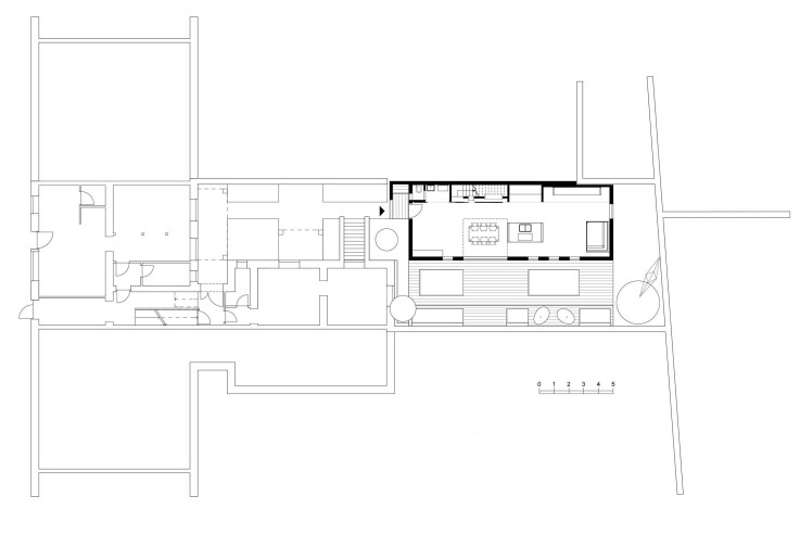
Pläne und Grundrisse:
Architekt: Buddenberg Architekten
Nach sieben Jahren Leben im Hinterhofhaus stellen sich neue Anforderungen an die junge Familie (…), das soziale Experiment ‚Wohnen im Einraum‘ stößt an seine Grenzen.
Gebäudedaten:
- Standort: Düsseldorf
- Grundstücksgröße: 429 m2
- Wohnfläche gesamt: 147 m2 + Terrassen-Erweiterung: 50,2 m2
- Zusätzliche Nutzfläche: 30 m2
- Anzahl der Bewohner: 4
- Bauweise (Erweiterung): Holztafelbau
- Primärenergiebedarf: ca. 95 kWh/m2a
- Baukosten (Erweiterung): 130.000 Euro
- Baukosten je m2 Wohn- und Nutz-fläche (Erweiterung): 2.590 Euro
- Fertigstellung: 2010
Fotos:
Dieses Haus ist erschienen in: “Häuser des Jahres 2011”, Callwey Verlag.