Einfamilienhaus mit Nebengebäude

von LP Architektur

Die Bauherren wünschten sich eine puristische, sinnhafte und funktionale Architektur. LP Architektur gliederten das Haus in einen harmonischen Komplex aus Haupthaus und Nebengebäude.

Die Thematik der Ebene

Zur einen Seite schließt ein Baugebiet mit gültiger Gestaltungssatzung an, zur anderen liegt die Überflutungsfläche der Enns, was eine weitere Bebauung in dieser Richtung ausschloss: Die Gemeinde Radstadt hatte für das Grundstück eine Aufschüttung um 1,70 Meter verlangt.

Aus dieser Auflage entwickelten LP Architektur die Idee, die Geschossebenen und das umliegende Gelände als Räume zu verstehen: ihre Schnittstellen sollten besondere Qualitäten aufweisen und das Haus mit der Umgebung horizontal und vertikal verknüpfen. Der Entwurf folgt ohne besondere Priorität diesen unterschiedlichen Bedingungen aus Gestaltungssatzung, Topografie und vorhandener Bebauung und reduziert sie auf abstrakte Indizien.

Ein Hof als Grenze zum Privaten

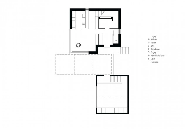
Das Grundstück wird auf Straßenniveau erschlossen. Der Zugang zum Haus liegt allerdings höher. Dadurch inszeniert die Treppe den Eintritt in das Gebäude. Diese Passage wird räumlich durch den Gebäuderücksprung und das flankierende Nebengebäude betont, man bewegt sich in dieser Hofsituation aus dem halböffentlichen in den privaten Raum.

Die Begrenzungen der Räume werden durch Möbel geschaffen, um möglichst viel Stauraum zu erhalten.

Das Nebengebäude als erweiterte Nutzfläche

Das Erdgeschoss bildet das Zentrum des Hauses mit den üblichen Funktionen Kochen, Essen, Wohnen. Die räumliche Ausrichtung und das sparsame Mobiliar strukturieren diese Ebene eindeutig, Rücksprünge in den Wänden ergeben Stauräume, ohne die klaren Linien zu stören.

Der Weg ins eher private Obergeschoss kann durch eine Schiebetür an der Treppe verschlossen werden. Hier gibt es bis auf das WC keine Zimmerteilungen, die Funktionen werden räumlich oder durch Möbel angedeutet. So dient die Fläche zwischen den Schlafräumen als Ankleidebereich. Das Nebengebäude wird als Werkstatt, Hauswirtschaftsraum und Lager genutzt und mit einem großen Falttor zur Einfahrt hin geöffnet.

Gebäudedaten

  • Standort: Radstadt
  • Grundstücksgröße: 661 m2
  • Wohnfläche: 153 m2
  • Zusätzliche Nutzfläche: 56 m2
  • Anzahl der Bewohner: 2
  • Bauweise: Holzmassivbauweise
  • Heizwärmebedarf: 9 kWh/m2a
  • Fertigstellung: 2010

Fotos: Volker Wortmeyer

Dieses Haus ist erschienen in: “Häuser des Jahres 2011”, Callwey Verlag.