von Denzer & Poensgen.
Ein bestehendes Wohnhaus am Ortsrand von Wuppertal-Schöller, erbaut zwischen 1900 und 1910 und zunächst als Jagdhaus genutzt, sollte für eine vierköpfige Familie erweitert werden. Die Ortschaft wird geprägt vom Baumaterial Kalkstein, der aus dem familien-eigenen Steinbruch Oetelshoven kommt. Dadurch ist bis heute ein einheitliches Ortsbild ablesbar.
Das alte Haus hat eine fünfachsige, symmetrische Straßenfassade, die sich im Inneren fortsetzt. Das Satteldach reicht bis zur Decke des Erdgeschosses herunter, was Konsequenzen für den geplanten Anbau bedeutete: Einerseits sollte der Bestand um neuzeitlichen Wohnkomfort erweitert, andererseits eine Balance zwischen dem Vorhandenen und dem Hinzugefügten erreicht werden.
Die Architekten entschlossen sich, eingeschossig an das vorhandene Haus anzuschließen und diesen Zwischentrakt zweigeschossig zum Garten fortzusetzen. Dabei wurden die Fluchten des Altbaus respektiert, sodass von der Straße gesehen seine Präsenz und Anmutung nicht beeinträchtigt wird.
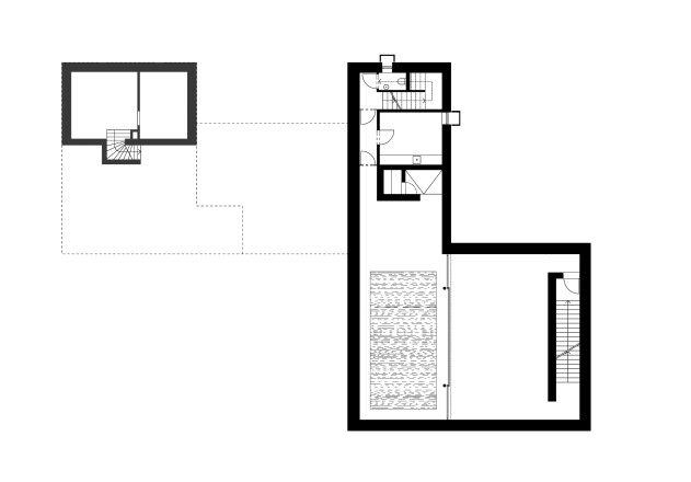
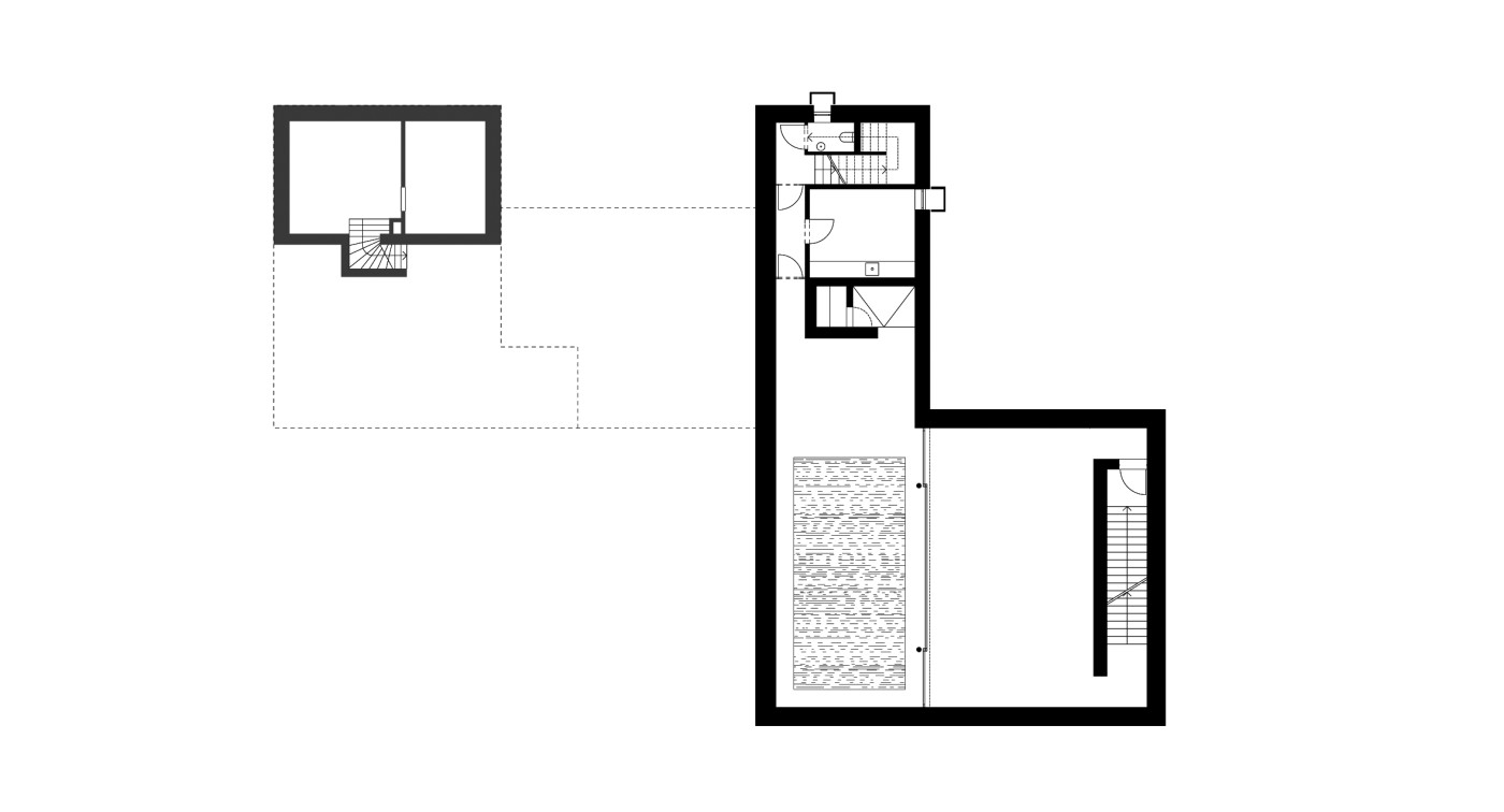
Der innere Weg wird ebenfalls aufgenommen und zum Neubau hin verlängert. Er endet im Obergeschoss mit Weitblick zum Tal und im Untergeschoss mit dem Austritt zum Innenhof, der das dort einge-baute Hallenbad belichtet.
Der kubische Anbau nimmt das Material des alten Hauses auf, wobei dessen bislang noch weiß geschlämmte Fassaden später einmal gereinigt werden sollen, um den Dialog zwischen Alt und Neu noch harmonischer zu gestalten.
Pläne:
Architekt: Denzer & Poensgen
Unsere Aufgabe bestand darin, einerseits das Wohnhaus zu erweitern, andererseits den Bestand mit dem Neubau in Balance zu bringen
Gebäudedaten:
- Standort: Wuppertal, Deutschland
- Wohnfläche: 200 m²
- Grundstücksgröße: 1.800 m²
- Zusätzliche Nutzfläche: 262 m² (Schwimmbad im UG)
- Bauweise: Koventionelle zweischalige Bauweise
- Fertigstellung: 2011
Fotos:
Rainer Mader Fotografie
Dieses Haus ist erschienen in: “Häuser des Jahres 2012”, Callwey Verlag.