Kunst im Bau

von Fabi Architekten

Der 200 Einwohner zählende Ort Blaibach ist seit dem von Peter Haimerl geplanten Konzerthaus auch jenseits von Niederbayern ein Begriff. Für den Neubau des Atelier- und Wohngebäudes für den Künstler Leo Schötz zeichnen Stephan und Nina Fabi aus Regensburg verantwortlich. Zu dem Auftrag kam es, da dem Bauherrn zwei frühere Künstlerateliers des Büros bekannt waren.

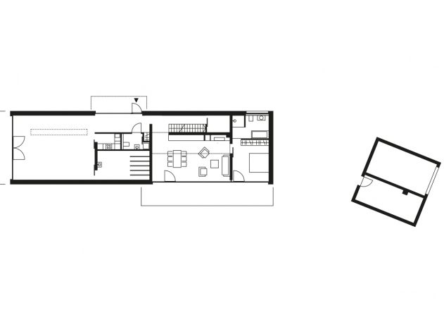
Wiese, Wald, der Fluss Regen und eine Straße waren mit ihren linearen geografischen Strukturen formgebend für den schmalen, langgestreckten Baukörper: Er misst 27 Meter Länge und 7,50 Meter Breite. Sein Satteldach verdankt er der Bautradition des Bayerwald-Bauernhauses ebenso wie die schnörkellosen, aber mit hoher handwerklicher Qualität ausgeführten Details.

Der Besucher wird über einen Fußweg zum Gebäude geleitet, der zum rückwärtig gelegenen Eingang führt. Von dort erreicht er das Atelier, vorbei an einer eingestellten Funktionsbox mit Garderobe, WC, Teeküche und Bilderlager. Außer dem Fenster nach Westen sorgt ein Oberlicht für Helligkeit.

Auf der Ostseite schließt sich der Wohn- und Gästebereich des Malers an. Der zweigeschossige Hauptraum für Kochen, Essen und Wohnen bildet das Zentrum; dahinter befinden sich Schlafraum und Bad. Die Galerie im Obergeschoss wird zum Brückenschlag zwischen Arbeiten und Wohnen.

„Einfachheit ist kein konstruierter Minimalismus, der auf komplexen Details beruht, sondern einfach Wertigkeit.“

Rauer Charme

Vom hohen architektonischen Anspruch kündet die rostrote Haut aus Cortenstahl, die den Baukörper überzieht – vom Dach bis über die Fassaden. Sie entspricht in ihrer Herbheit zudem dem Charakter der ostbayerischen Landschaft, die von wenigen Einschnitten eindrucksvoll gerahmt wird. In den Blick gerückt werden dadurch die Orte Pulling und Blaibach, die Beton-Eisenbahnbrücke über den Fluss Regen von 1927 sowie der Wald.

Rau ist auch der Charme, den das Haus im Inneren entwickelt. Der Innenraum besteht aus einer Kombination von Eiche mit Rohstahl sowie Grobspanplatten mit Sichtbetonoberflächen. Vieles wurde in Eigenleistung erbracht. Denn das Budget war so klein, dass Fabi Architekten anfangs Bedenken hatten, überhaupt ein Haus nach ihren Wünschen realisieren zu können.

Gebäudedaten

Anzahl der Bewohner: 2
Wohnfläche: 127 m²
Grundstücksgröße: 5.524 m²
Zusätzliche Nutzfläche: 125 m² (Atelier)

Standort: Blaibach
Bauweise: massiv
Baukosten: 300.000 Euro (ohne Eigenleistung)
Fertigstellung: 2016

Fotos: Herbert Stolz, Regensburg www.herbertstolz.de

Dieses Haus ist erschienen in: „Häuser des Jahres 2017“, Callwey Verlag