von NORD STUDIO
Die Elbe im Blick
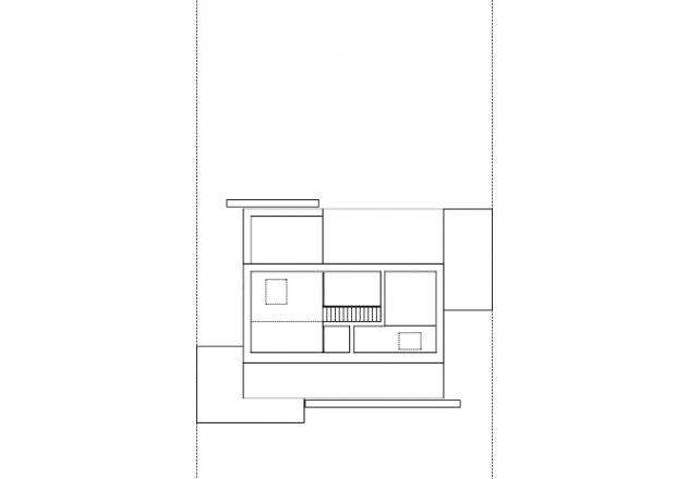
Nebengebäude und Anbauten, Portale oder Gauben am Elbufer von Wedel wurden im Laufe der Jahre immer dichter, der Blick aufs Wasser ist längst verbaut. Das kann auch Fabian Wichers nicht ändern. Doch der Architekt, Jahrgang 1979, gebürtig in Hamburg, der gemeinsam mit dem Kieler Jan Liebe, mit dem er gemeinsam in Mendrisio studiert hat, das Berliner Büro Nord Studio führt – das seinen Namen durchaus auch als Haltung verstehen will – greift die kleinteilige Maßstäblichkeit auf und macht sie zum Konzept: Er entwickelte fünf kleinere Körper, die er so auf dem Grundstück anordnete, dass ihre Zwischenräume in alle Himmelsrichtungen weisen: Im Norden, an der Straße, liegt der leicht erhöhte Eingangsbereich. Von hier öffnet sich der Essbereich, der Morgensonne erhält und gegenüberliegend, im Westen, die Spielecke der Kinder. Und hätten nicht allzu viele Zaungäste allzu neugierig in das einen zu kleinen Altbau ersetzende neue Haus geglotzt, wäre der diagonale Blick aufs Wasser von der Straße auch erhalten geblieben. Heute ist er durch Hecken verstellt.
Fünf Funktionskörper, ein einendes Dach
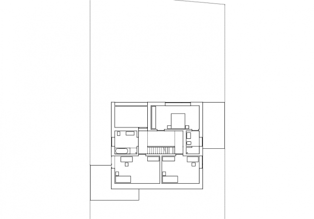
Nach Süden orientiert sich das Wohnzimmer mit Blick über Terrasse, Garten und auf die Elbe. In den beiden Volumen am Eingang befinden sich das Gästebad sowie Hauswirtschaft und Technik. Zwischen Essbereich und Wohnzimmer liegt die Küche, und in einer Nische neben dem Wohnzimmer ist die Bibliothek mit angeschlossenem Arbeits- bzw. Gästezimmer untergebracht. Im mittig platzierten, kleinsten und schmalsten Block versteckt sich die Treppe ins Obergeschoss. Sie erschließt über die zentrale, nach oben offene Diele die zwei Kinderzimmer, das Familienbad, das Zimmer der Eltern und die Dachterrasse mit Blick über den Elbstrand. Eine zweite Treppe führt in ein Spielzimmer unter dem spitzen Giebel, eines der beiden Kinderzimmer nutzt den Raum mit einer Hochebene.
Architects don’t invent anything; they transform reality. – Alvaro Siza
Die fünf Volumen des Erdgeschosses sind aus 42,5 Zentimeter starken Porotonsteinen gemauert und lagern auf einer Grundplatte aus Stahlbeton. Der helle Putz der Wände und die großformatigen Terrazzoplatten auf dem Boden wirken somit wie ein skulpturaler Sockel, auf dem das Dach ruht, das außen mit walzblankem Zink verkleidet wurde.
Gebäudedaten
- Standort: Wedel
- Anzahl der Bewohner: 4
- Wohnfläche: 240 m2
- Grundstücksgröße: 560 m2
- Bauweise: Massivbau in Porenbeton
- Fertigstellung: 12/2018
Text: Katharina Matzig
Fotos: Christoph Rokitta, Berlin www.christophrokitta.de
NORD STUDIO
Brunnenstraße 43
10115 Berlin
www.nord-studio.com
Dieses Haus ist erschienen in: „Häuser des Jahres 2019“, Callwey Verlag