Heustadlsuite

von Meck Architekten.

Heustadl in traditioneller Blockbauweise

Der Name sagt schon, was bei diesem Haus im Salzburger Land zusammentrifft: Die äußere Hülle bilden drei vorhandene Heustadl in traditioneller Pinzgauer Blockbauweise, innen wurde unter die schindelgedeckten Satteldächer ein offener Großraum eingestellt, der allen Komfort für einen Ferienaufenthalt bietet. Die Stadl zeigen die historischen Konstruktionsmerkmale wie Stuhldübel, Kegelwände und Fass-Säulen an den Öffnungen, wo das Heu eingeworfen wurde. An diese Handwerkstechniken schließt der Neubau an, er konterkariert sie allerdings mit einer modernen Holzkonstruktion, die auf Stahlbetonfundamenten bzw. einem betonierten kleinen Keller steht.

Meck Architekten Heustadlsuite Lageplan
Lageplan

Clever: witterungsbeständige Fassadenfarbe

Die Wände und das Dachfaltwerk sind aus Kreuzlagenholz (KLH) hergestellt. Der innenräumlich erlebbare Raumabschluss folgt dabei nicht exakt der Kontur der Äußeren Dächer, sondern begleitet sie im freien Abstand, um die Zäsur zwischen den Giebeln zu mildern. Beide Konstruktionen, der alte Stall und das eingestellte Holzhaus, sind autark. Die Außenseite des Neubaus wurde schwarz gestrichen, um die notwendige Witterungsbeständigkeit zu erreichen. Außerdem verschwimmt der Einbau dadurch hinter den Zwischenräumen der (be-)greifbaren Block-Konstruktion zum abstrakten Hintergrund. Als Wärmeschutz dient eine Holzfaserdämmung, passend zur diffusionsoffenen Konstruktion.

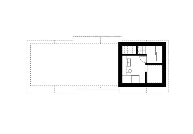
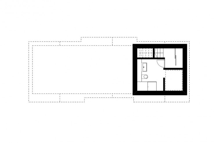
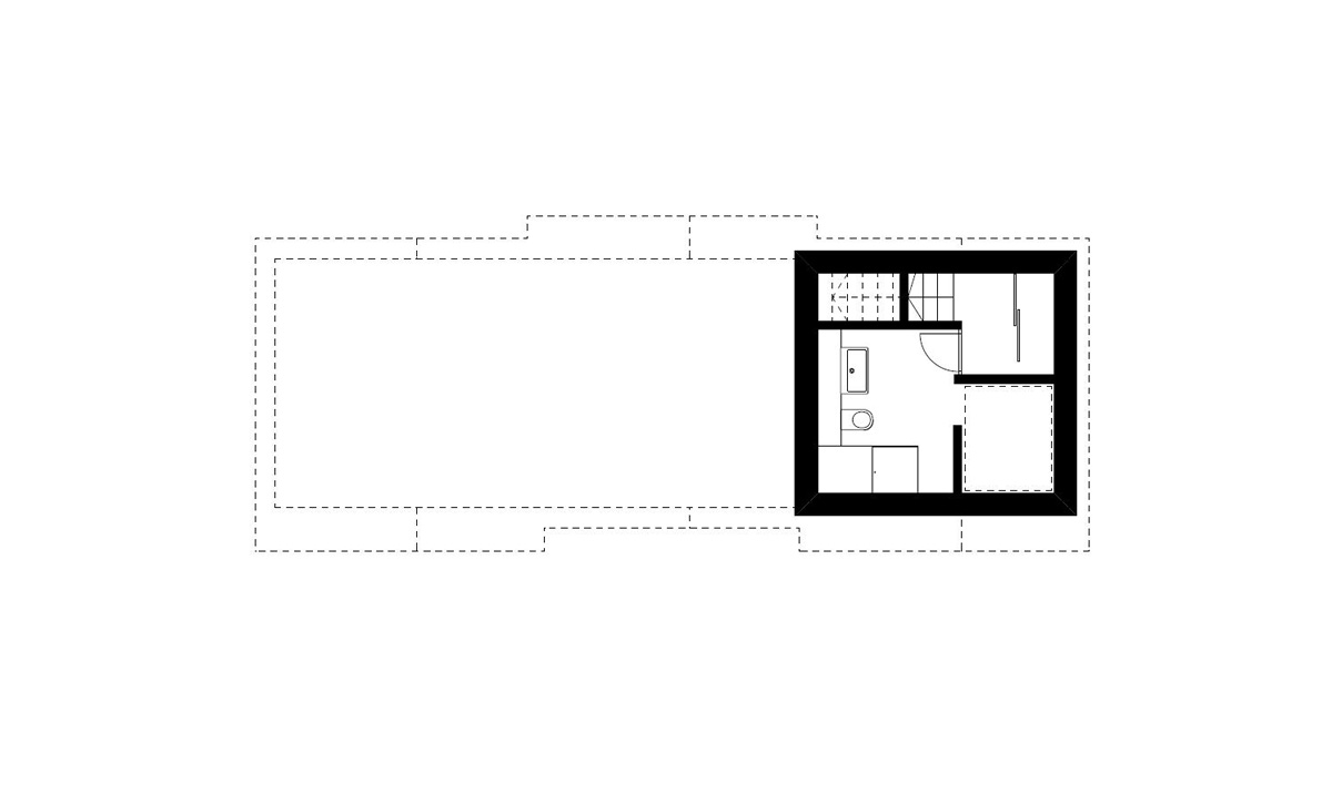
Meck Architekten Heustadlsuite Grundriss Untergeschoss
Grundriss Untergeschoss

Gemütlichkeit durch Fichtenholz und Baden mit Aussicht

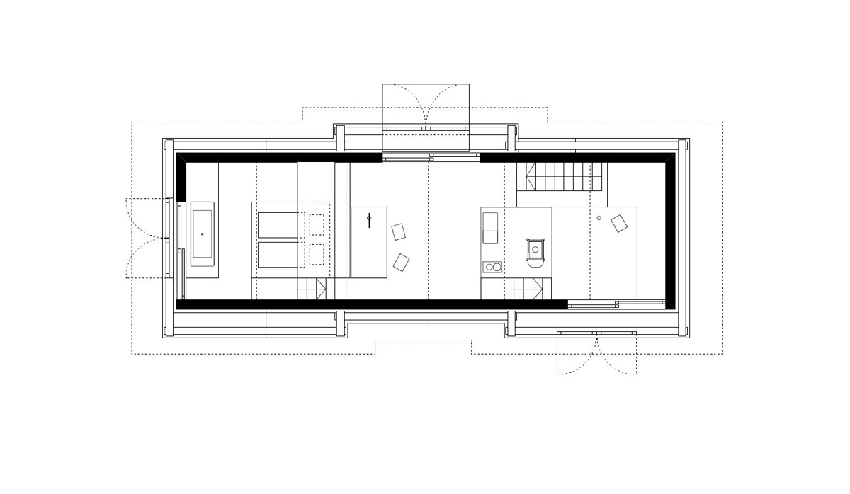
Die innere Holzverschalung an Boden, Wand und Decke besteht aus unbehandelten heimischen Fichtenbrettern. Die Bodendielen wurden lediglich gebürstet, um eine widerstandsfähige Oberfläche zu erhalten. Alle Möbel und Einbauten sind ebenfalls aus Fichtenholz geschreinert, sie gehören zum Gesamtkonzept, das den Innenraum als begehbares Möbel begreift. Die Zentralheizung des benachbarten Taxhofs versorgt das Haus, ein schwarzer Gussofen als Einzelfeuerstätte trägt in der Übergangszeit, oder wenn es sehr kalt ist, mit knisternder Wärme zur Atmosphäre bei. Bis auf die kleine Sauna im Kellergeschoss besteht das Innenleben des Hauses aus einem einzigen Raum. Er folgt in drei Staffeln der Hangneigung. Wie eine Bühne liegt oben der Wohnraum mit einer eingebauten Polsterbank, die große Steinplatte unter dem Ofen dient auf der mittleren Ebene gleichzeitig als Arbeitstresen der Küche, geschlafen wird im kühleren unteren Bereich. Hier ist in den Boden vor den Fenstertüren eine herrschaftliche Wanne eingelassen: Baden mit Aussicht.

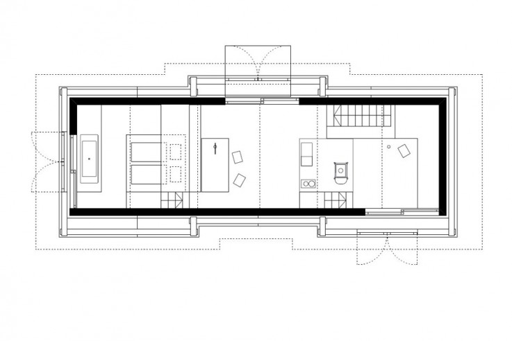
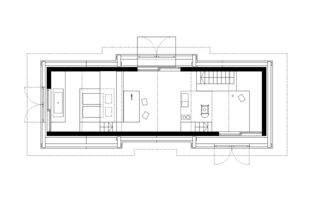
Meck Architekten Heustadlsuite Grundriss Erdgeschoss
Grundriss Erdgeschoss

 

Pläne und Grundrisse:

Architekt: Meck Architekten

(…) Differenzierte Höhen und ein Raumkontinuum. Die Feuerstelle als Mittelpunkt. Baden mit Ausblick. Rückzug. Ruhe.

Gebäudedaten:

  • Standort: Bruck an der Großglocknerstraße (A)
  • Anzahl der Bewohner: 2
  • Wohnfläche: 61 m²
  • Überbaute Fläche: 80 m²
  • Bruttorauminhalt: 525 m²
  • Bauweise: Holzkonstruktion in Blockbauweise
  • Heizwärmebedarf: 102 kWh/m²a
  • Fertigstellung: 06/2011

Fotos:
Michael Heinrich, München

Dieses Haus ist erschienen in: “Häuser des Jahres 2013”, Callwey Verlag.