Im Denkmal leben

von hiendl_schnineis Architekten.

Im historischen Passauer Handwerkerviertel beginnt mit diesem Gebäude ein Ensemble historischer Häuser, für deren Gewerbe die Wasserkraft des direkt unterhalb fließenden Inns genutzt wurde. Als einer der wenigen frei stehenden Bauten am Kirchenvorplatz von St. Gertraud wird es bereits um 1800 erwähnt, ein Stück Stadtmauer im Innern gehört zu seinen geschichtlichen Beweisstücken.

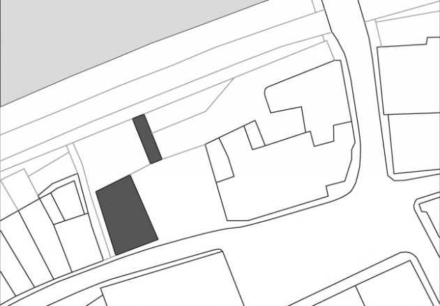
hiendl-schineis-im-denkmal-leben-lageplan
Lageplan

Als die Architekten es 2005 erwarben, bot seine Substanz allerdings eine archäologische Exkursion in die Neuzeit, weil seit 50 Jahren nicht mehr saniert worden war und die darin eingerichteten sechs Kleinwohnungen ohne Bäder und mit primitiven Außentoiletten eine abenteuerliche Aneignung zeigten. Zum Teil hausten hier Studenten in nur 1,70 Meter hohen ungedämmten Räumen, ein durchhängender Dachstuhl und wahlloses Gewerkel hatten das Haus verdorben.

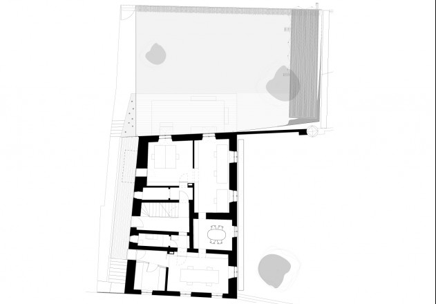
Die Architekten mussten die Substanz freilegen und das erkennbare Gefüge neu interpretieren. Im Erdgeschoss wurden zwei Wohnungen um die Treppe durch schmale Durchgänge miteinander verbunden, hier ist ein Atelier eingerichtet. Auch das hochwassertaugliche Untergeschoss, in dem eine kleine Wohnung vorgesehen ist, wird noch vom Architekturbüro genutzt. Es galt, Fassadenöffnungen in historischen Proportionen wiederherzustellen, Kastenfenster zu ergänzen und Holzböden zu restaurieren.

hiendl-schineis-im-denkmal-leben-grundriss-kellergeschoss
Grundriss Kellergeschoss
hiendl-schineis-im-denkmal-leben-grundriss-erdgeschoss
Grundriss Erdgeschoss

Die mattschwarzen Innenwände zum Treppenhaus treten zurück, die fliehenden Außenwände zeigen lebhafte Putzstrukturen. Auch im Geschoss darüber wurden zwei Wohnungen zusammengelegt und entsprechend aufgearbeitet, mit kräftigen Farben abgesetzte Wände prägen die Atmosphäre. Ein Holzofen trägt ebenso dazu bei, ein kleiner Balkon öffnet den Wohnraum zum Inn. Unter dem neuen Dachstuhl aus in Reihe gesetzten Dreiecksbindern ist eine weitere Wohnung aus leichten Einbauten entstanden, sie bleiben für Veränderungen reversibel, da die mit 30 Zentimeter Holzfasern gedämmten Rahmen ihre Lasten nur auf die Außenwände abtragen.

hiendl-schineis-im-denkmal-leben-grundriss-obergeschoss
Grundriss Obergeschoss

Die charakteristischen Giebel der Innhäuser wurden wiederhergestellt, auch die neuen nach außen öffnenden Fenster sind regionaltypisch. Ein hohes weißes Haus ist wiedererstanden, eine weiße Skulptur mit feinen Details auf der Fassade.

Pläne:

Architekt: Hiendl_Schnineis Architekten

Ein reinweißer Baukörper mit einem dunklen Dach: das Baudenkmal, schwarz und weiß. Gedächtnisspeicher und kulturelles Erbe. Aber auch das Zuhause einer Familie, Arbeitswelt, Lebensort, sozialer Raum.

Gebäudedaten:

  • Standort: Passau
  • Wohnfläche: 235 m²
  • Grundstücksgröße: 405 m²
  • Zusätzliche Nutzfläche: 95 m²
  • Bauweise: Massiv Bestand
  • Fertigstellung: 01/2014


Fotos:

Eckhart Matthäus, Wertingen/Augsburg

Dieses Haus ist erschienen in: “Häuser des Jahres 2014”, Callwey Verlag.