Kleiner Pavillon

von meier architekten

Ein Sommer-Pavillon am Zürichsee

Das Grundstück liegt in einer kleinen Bucht am Zürichsee. Von dieser traumhaften Landschaft inspiriert lag es nahe, Wohnraum und Natur miteinander zu verbinden, wozu sich die Typologie des „Sommerpavillons“ anbot, also eine leichte Architektur, die sich aus horizontalen und vertikalen Flächen nachvollziehbar zusammensetzt.

Meier Architekten kleiner Pavillon Zürichsee Lageplan
Lageplan
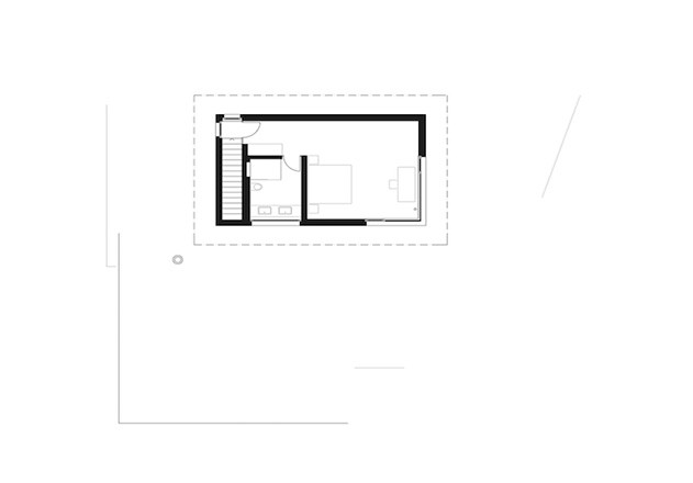
Meier Architekten kleiner Pavillon Zürichsee Grundriss EG
Grundriss Erdgeschoss

Offene Bauweise at it’s best

Die Räume sollten sich nach außen als Elemente einer offenen Bauweise mit einer eindeutigen Ausrichtung abzeichnen. Das Wohnen endet damit nicht an den Außenwänden, sondern kann sich schwellenlos vom Pavillon bis zu einem gedeckten Sitzplatz und einer Liegewiese ausbreiten. Ein harmonisches Bild entsteht, indem sich die Horizontalen des Gartens in der Staffelung der Dachflächen wiederholen. Sie sind über Küche / Speisezimmer durch einen umlaufenden Oberlichtstreifen von den Außenwänden abgelöst, nur gestützt durch die notwendigsten statischen Maßnahmen.

Meier Architekten kleiner Pavillon Zürichsee Grundriss OG
Grundriss Obergeschoss

Im Sommer wird der Wohnbereich zur Terrasse

Der kleine Pavillon besteht aus zwei Hauptvolumen. Wohnen, Essen und Kochen sind in einem einstöckigen Bauteil zu einem großen kommunikativen Lebensraum organisiert. Er öffnet sich lichtdurchflutet nach einem schlichten, niedrigeren Eingangsbereich. Die Seeseite ist zwischen Boden und Decke vollkommen verglast, sodass sich der Innenraum in den gedeckten Außenbereich fortsetzt: Bei aufgeschobener Fensterfront sitzt man im Freien, allerdings geschützt durch das scheinbar schwebende Vordach.

Meier Architekten kleiner Pavillon Zürichsee Schnitt
Schnitt

Platz für privaten Rückzug

Im straßenseitigen zweistöckigen Bauteil befinden sich zwei Schlafzimmer mit separatem Bad und Toilette. Nach oben führen in die Wand eingelassene Stufen, die abstrakt wie ein Kunstwerk wirken. Im Obergeschoss erreicht man ein großzügiges weiteres Schlafzimmer mit einmaliger Aussicht über den See und in die umgebende Landschaft. Durch die verschiedenen Raumhöhen und den Kontrast zwischen dunklem Parkett und elegantem Weiß der Wände entsteht eine räumliche Spannung, die die Balance des kantigen Hauses mit der gewachsenen Natur fortsetzt. Die Annäherung durch einen Torbau, hinter dem seitlich zurückgesetzt der eigentliche Eingang folgt, betont den privaten Rückzug.

Pläne und Grundrisse kleiner Pavillon:

Architekt kleiner Pavillon:

meier architekten

Meine Architektur soll dazu dienen, den Menschen Behaglichkeit und Wohlbefinden sowie ein hohes Maß an Lebensqualität in ihr Leben zu bringen. Die Harmonie zwischen Wohnraum und der umliegenden Landschaft wirkt behütend, zugleich begeistert die Weitläufigkeit durch die Offenheit zum Wasser.

Gebäudedaten kleiner Pavillon:

  • Standort: Zürich
  • Grundstücksgröße: 840 m2
  • Wohnfläche: 162 m2
  • Zusätzliche Nutzfläche: 19 m2
  • Anzahl der Bewohner: 3
  • Bauweise: massiv
  • Fertigstellung: 2009

Fotos kleiner Pavillon:

Hannes Henz, Zürich

Dieses Haus ist erschienen in: “Häuser des Jahres 2012”, Callwey Verlag.