Massiv am Steilhang

von architektur.terminal hackl und klammer.

Wir befinden uns im dichtbesiedelten Vorarlberger Rheintal. An der Landstraße, die von Rankweil mit engen Kehren über das Laternsertal zum Furkajoch führt, steht dieses kleine kompakte Betonhaus. Die Herausforderung bestand darin, mit einem knappen Budget auf einem um 60 Prozent geneigten Baugrundstück zu bauen. Beton als konstruktives Material bot sich für diese besondere Aufgabe an und führte zu keinen höheren Kosten als eine Ausführung mit konventionell wärmegedämmtem Mauerwerk. Die steile Hanglage führte zu einer ungewöhnlichen Geschossaufteilung. Ganz oben auf der Dachebene gibt es neben dem verglasten Eingang nur einen überdeckten Autostellplatz. Das Bauwerk wurde so dicht als möglich an die Straße gerückt, damit man es ebenerdig erreichen kann, die Konstruktion stützt gleichzeitig den Berg. Eine gewendelte Treppe führt nach unten zum Wohnraum mit Küche und Essplatz, der sich – je nach Jahreszeit – um eine große Südterrasse erweitern lässt, sie wird über einem Geviert durch einen flachen Betondeckel geschützt. Von hier führt eine Maueröffnung in den Garten. Von dieser Ebene genießt man den Panoramablick in die Schweizer Berge.

architektur-terminal-hackl-und-klammer-massiv-am-steilhang-lageplan
Lageplan
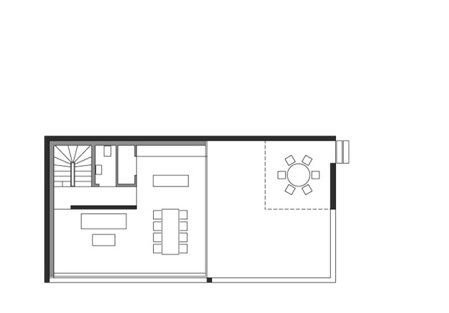
architektur-terminal-hackl-und-klammer-massiv-am-steilhang-grundriss-untergeschoss
Grundriss Untergeschoss

Das Untergeschoss ist wesentlich größer. Es ist bis auf einen seitlichen Ausgang an drei Seiten von massiven Wänden umschlossen, dafür bietet ein Fensterband zur Talseite den Schlaf-, Arbeitsräumen und sogar dem Badezimmer eine unverstellte Aussicht. Die Betonfassade ist mit gängigen Schaltafeln ausgeführt, das ergab eine lebhaft strukturierte, einfache Oberfläche. Im Haus setzt sich die puristische Materialbehandlung fort. Die innen gedämmten Wände sind über einer Gipskartonschale nur gespachtelt, das entspricht der Textur der weiß lasierten Fenster, auch Türen und Einbaumöbel sind mit weißer Farbe behandelt. Die Sichtbetondecken behielten ihren Rohbaucharakter – so entsteht ein spannender Kontrast zum lebhaften Eichen­parkett. Zur Beheizung dient eine Wärmepumpe mit Erdsonde, sie versorgt den Bedarf der Fußbodenheizung übers gesamte Jahr. Die Speicherfähigkeit der tragenden Innenwände und hochgedämmten Gebäudehülle mit Komfortlüftung reduziert den Energieverbrauch. Entstanden ist ein homogener, fest umschlossener Baukörper mit unbezahlbarem Ausblick – aber ohne Einblick.


Pläne:

Architekt: Architektur.Terminal Hackl und Klammer

Die Herausforderung lag in der exponierten Lage mit ca. 60 Prozent Hangneigung und der vorgegebenen Zufahrt von oben. Die Form, die Positionierung und Materialisierung des Baukörpers reagieren darauf – das Haus verortet sich in der steilen Hanglage.


Gebäudedaten:

  • Standort: Batschuns
  • Wohnfläche: 136 m²
  • Zusätzliche Nutzfläche: 56,5 m²
  • Bauweise: Massivbauweise
  • Fertigstellung: 09/2011


Fotos:

Dieter Klammer, Röthis

Dieses Haus ist erschienen in: “Häuser des Jahres 2014”, Callwey Verlag.