Radikaler Umbau

von Osterwold°Schmidt

Osterwold Schmidt radikaler Umbau Lageplan
Lageplan

Immobiles Familienerbstück aus den 60ern

Bei diesem Haus handelt es sich um einen radikalen Umbau, der zu einer völligen Veränderung des Orts und des Wohnens geführt hat. Vorhanden war ein 1956 im Zeitkolorit errichtetes immobiles Familienerbstück. Eine junge vierköpfige Familie, nach Auslandsaufenthalten nach Selb zurückgekehrt, nutzte und bewohnte das Haus aus den 60ern der Großeltern wie vorgefunden – es war zwar renovierungsbedürftig, aber eigentlich intakt – „wie eine Studentenbude“. Der „gutbürgerliche Charakter“, der dem Haus anhaftete, entsprach jedoch nicht mehr ihrem Lebensstil. Sie hatten freie Hand in der Sanierung und Renovierung mit dem Haus, jetzt ließen sich Wünsche realisieren, die die Familie schon gern früher so ähnlich umgesetzt hätte.

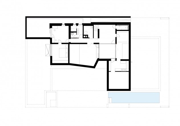
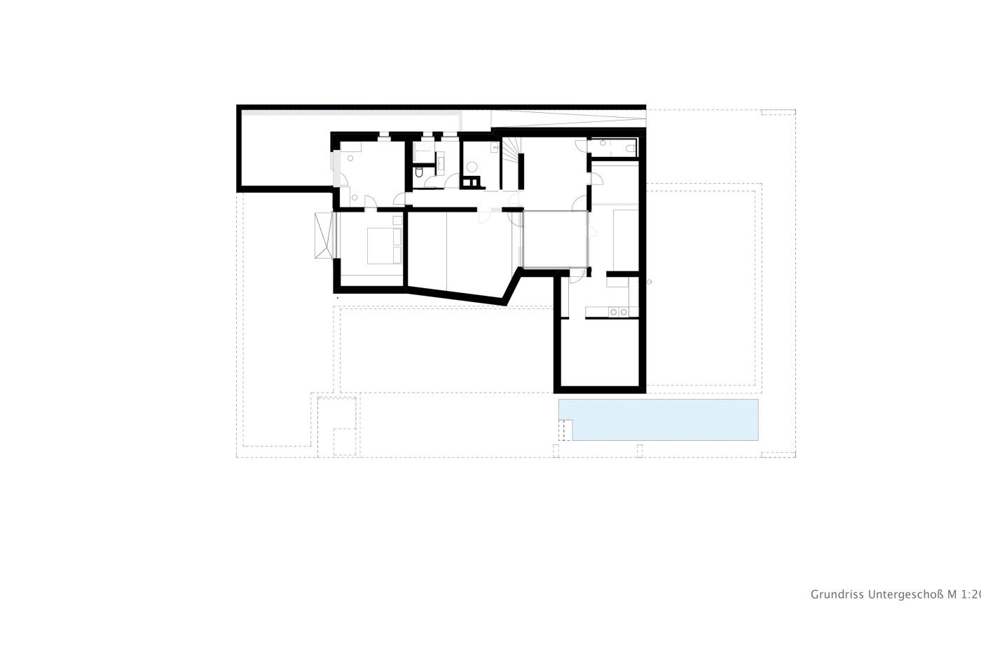
Osterwold Schmidt radikaler Umbau Grundriss Untergeschoss
Grundriss Untergeschoss

Wohnen auf zwei Ebenen

Durch die Vergrößerung des Grundstücks, das großzügig und idyllisch mit dem anschließenden Landschaftsraum des ausklingenden Fichtelgebirges verschmilzt, bot sich die Gelegenheit, Wohnen auf einer Ebene zu organisieren und dabei die Innenräume mit dem Garten zu verbinden und in Beziehung zu setzen. Dazu gehört jetzt auch das Untergeschoss, das mit inneren Höfen (Patios) neue Nutzungsqualitäten für Gäste, Arbeiten und Wellness gewinnt.

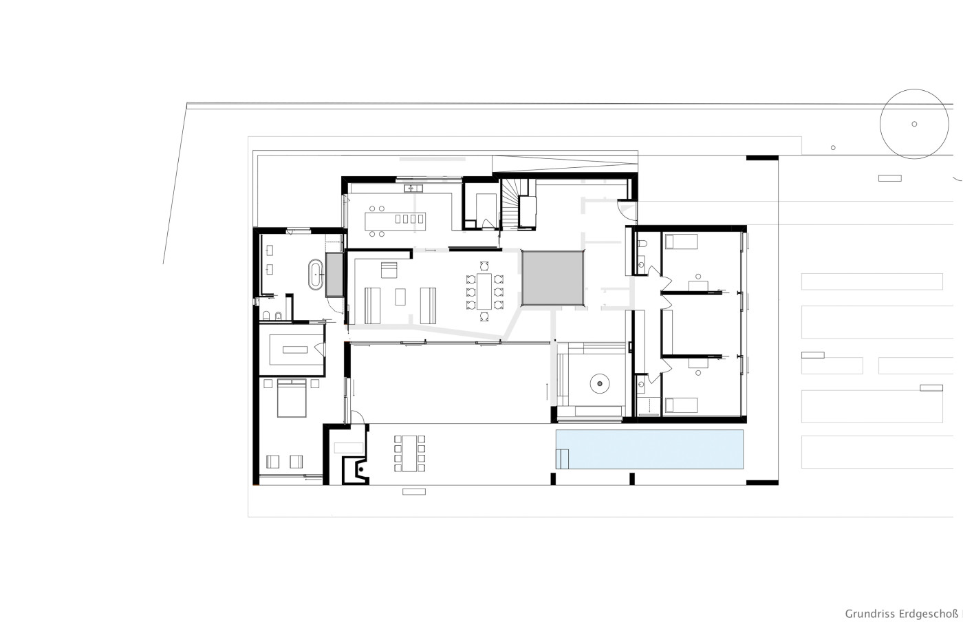
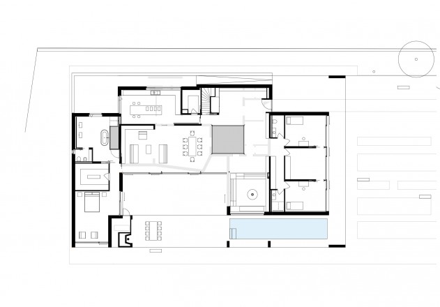
Osterwold Schmidt radikaler Umbau Grundriss Erdgeschoss
Grundriss Erdgeschoss

Patios als Balance zwischen Innen und Außen

Die Höfe spielen für die Gliederung der Wohnebene innen und außen eine entscheidende Rolle, weil dadurch maßgeblich die Funktionen Essen, Wohnen, Eltern- und Kindbereich definiert werden: Sie trennen und verbinden gleichermaßen, sodass eine spannungsvolle Balance zwischen innen und außen entsteht.

Osterwold Schmidt radikaler Umbau Längsschnitt
Längsschnitt

Passiv energetisches Konzept

Das Wohnen orientiert sich vornehmlich nach Süden und Westen, wobei die großen Dachüberstände das passive energetische Konzept unterstützen. Solarkollektoren auf dem neuen Flachdach (ursprünglich war das Haus von einem Walm behütet) sorgen für Wärme. Der freizügige Umgang mit Fläche soll jedoch nicht als verschwenderischer Umgang mit Ressourcen verstanden werden. Es wurden vornehmlich einfache, nachwachsende, natürliche oder recycelfähige Rohstoffe verwendet, die Ausstattung des Hauses ist reduziert, sie konzentriert sich auf das Wesentliche, auf solide Materialien und Wirtschaftlichkeit.

Pläne und Grundrisse Umbau:

Architekt: Osterwold°Schmidt

Mit der Fertigstellung des Umbaus ist eine maßgeschneiderte Hülle für die sich wandelnden Bedürfnisse der Bewohner entstanden – ein neuer Rahmen für das Alte, ein verbindliches Zusammenwachsen und schöne Aussichten.

Gebäudedaten:

  • Standort: Selbe
  • Grundstücksgröße: 3.690 m2
  • Wohnfläche: 550 m2
  • Zusätzliche Nutzfläche: 92 m2
  • Anzahl der Bewohner: 4
  • Bauweise: massiv
  • Heizwärmebedarf: 55 kWh/m2a
  • Primärenergiebedarf: 150 kWh/m2a
  • Baukosten: 721.500 Euro
  • Baukosten je m2 Wohn- und Nutzfläche: 1.124 Euro
  • Fertigstellung: 2008

Fotos:

Matthias Schmidt, Weimar

Dieses Haus ist erschienen in: “Häuser des Jahres 2011”, Callwey Verlag.