von JL Architekten.
Moderner Ziegelbau zwischen alten Kiefern
Das lange, schmale Grundstück liegt in Potsdam an einer Allee, parallel zum Westufer des Glienicker Sees. Alter Baumbestand mit Kiefern und Birken prägt die Umgebung entlang der Seepromenade.
Kompakter Bau mit Pultdach
Das Wohnhaus für eine vierköpfige Familie wurde aus städtebaulichen Überlegungen als einfacher kompakter Baukörper entwickelt. Seine deutlich strukturierte Fassade und das beherrschende Ziegelmaterial, außerdem die Anhebung über das Eingangsniveau geben dem Haus eine gewisse Präsenz gegenüber den Gebäudevolumen der benachbarten Mehrfamilienhäuser. Die Lage am Ufer legte eine eindeutige Orientierung nahe, das auskragende Pultdach unterstreicht diese Ausrichtung, entsprechend haben auch die Fenster zur Straßenseite schmale Formate, während zum See großflächige Glaselemente das Haus öffnen.
Kaminholz vorm Haus
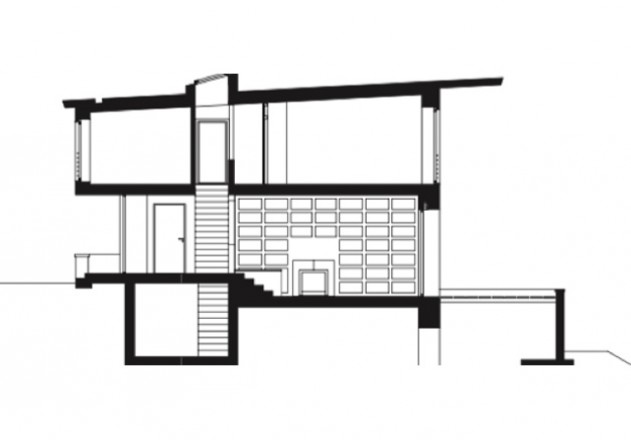
Zur Eingangsseite kragt das Obergeschoss aus, hier kann auch das Kaminholz trocken lagern; zur Seeseite ergibt sich unter dem Dachüberstand eine geschützte Terrasse. Das Erdgeschoss folgt dem abfallenden Gelände, sodass man von der Diele ein paar Stufen tiefer den offenen Wohn-, Ess- und Küchenbereich betritt. Die lichte Raumhöhe wächst damit auf 3,30 Meter und lädt ein, aus dem weitläufig wirkenden Raum über die gesamte Breite und Tiefe des Gebäudes die Landschaft zu erleben. Davon soll auch möglichst kein herumstehendes Mobiliar ablenken, weshalb Schränke, Garderobe und Bücherregal fest eingebaut wurden.
Schlafzimmer mit Blick auf den See
Das Obergeschoss, das ein über die gesamte Hausbreite reichender, geräumiger Flur teilt, ist gleichzeitig als Schrankraum für die zur Seeseite gelegenen Schlafzimmer definiert. Licht kommt von den Seiten und über ein Dachoberlicht bei der Treppe. Zur Straßenseite gehen zwei Bäder und ein Arbeitszimmer.
Die Konstruktion ist solide als zweischaliges Mauerwerk mit Kerndämmung ausgeführt. Dach und Decken sind betoniert, die Fenster dreifach verglast, geheizt wird mit einer Gasbrennwerttherme.
Pläne und Grundrisse moderner Ziegelbau:
Architekt moderner Ziegelbau:
In dem gelb-weiß nuancierten Ziegelmauerwerk fand ich das Material, das mir vorschwebte. Es hat den Farbton des märkischen Sandes, auf den das Haus gebaut wurde, und bezieht sich auf den traditionell gelben Ziegel, so wie er in dieser Region im 19. Jahrhundert verbaut wurde.
Gebäudedaten moderner Ziegelbau:
- Standort: Potsdam
- Grundstücksgröße: 1.397 m2
- Wohnfläche: 214 m2
- Zusätzliche Nutzfläche: 25 m2
- Anzahl der Bewohner: 4
- Bauweise: massiv
- Heizwärmebedarf: 62, 5 kW/m2a
- Primär Energiebedarf: 88,6 kW/m2a
- Baukosten: 474.000 Euro
- Baukosten je Wohn-und Nutzfläche: 2.215 Euro (WF), 1.983 Euro (NF)
- Fertigstellung: 2012
Fotos moderner Ziegelbau:
Andrew Alberts, Berlin
Dieses Haus ist erschienen in: “Häuser des Jahres 2012”, Callwey Verlag.