Graue Eminenz

von e2a Piet Eckert und Wim Eckert Architekten

 

e2a Architekten Sichtbetonbaus Lageplan
Lageplan

Sichtbetonhaus in kultivierter Lage

Das Grundstück mit direktem Seeanstoß ist eine Wiese mit alten Bäumen, die dem Ort eine unverwechselbare Qualität geben. Das neue Haus steht direkt an der Seestraße. Davor gibt es einen Eingangshof, das Sichtbetonhaus selbst liegt quer und lärmgeschützt zur stark befahrenen Straße, der größere Teil des Grundstücks ist nach Südwesten auf das Seeufer orientiert. Seine Bepflanzung führt die vorhandene Vegetation als gärtnerisches Panoptikum der Seewiese fort. Der Baumbestand und der Heckensaum blieben erhalten, wurden ergänzt und sorgfältig weiter kultiviert.

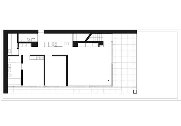
e2a Architekten Sichtbetonbaus Grundriss EG
Grundriss Erdgeschoss

Zum See hin verschwenderisch

Der Baukörper gliedert sich in drei horizontale, zum See hin unterschiedlich weit auskragende Geschosse mit wechselnden Höhen. Zur Straße wirkt die Betonfassade fast geschlossen, erst die Gartenfront öffnet sich verschwenderisch mit einer raumhohen Verglasung. Die Zimmer haben eine Tiefe zwischen 4 und 8 Metern.

e2a Architekten Sichtbetonbaus Grundriss OG
Grundriss Obergeschoss

Doppelte Erschließung

Eine Besonderheit bedeutet die doppelte Erschließung, die sowohl einer Familie eine großzügige Nutzfläche bietet, als auch im 2. Obergeschoss eine separate Wohnung für einen Einlieger ermöglicht. Dazu hat das Haus zwei Eingänge zu beiden Seiten der sich als Schräge grafisch abzeichnenden Treppenkaskade. Rechts erreicht man über eine Steintreppe (vorbei am fallweise verschlossenen 1. Geschoss) das 2. Geschoss, links betritt man die Diele, von der Holzstufen in einem eigenen Treppenhaus weiter nach oben und unten führen.

e2a Architekten Sichtbetonbaus Grundriss Dachgeschoss
Grundriss Dachgeschoss
e2a Architekten Sichtbetonbaus  Schnitt
Schnitt

Flexible Nutzung mit einer oder zwei Wohnungen

Im Erdgeschoss und nur durch Schiebetüren abgetrennt liegen ein Arbeitszimmer, die Küche und der Essplatz im Wohnraum. Darüber sind zwei Kinderzimmer mit gemeinsamer Nasszelle und das Elternzimmer mit großem Bad und Ankleidebereich angeordnet. Die Ebene darüber wird zur Zeit von der Familie als zweiter Wohnbereich angenommen, kann aber dank eigener Küche und Bädern auch autonom genutzt werden. Eine seitliche Dachterrasse setzt sich als Balkonsteg vor den Fenstern zur Seeseite fort.

Gestaffelte, homogene Volumen

Von Aussen zeigt sich das Haus als materieller einheitlicher Baukörper in weißem Sichtbeton ohne horizontale Schalungsfugen. In diese gestaffelten, homogenen Volumen sind die leicht verspiegelten, fassadenbündigen Glasflächen mit filigranen Rahmen eingeschnitten.

 

Pläne und Grundrisse Sichtbetonhaus:

Architekt Sichtbetonhaus:

e2a Piet Eckert und Wim Eckert Architekten

Jede der drei übereinander gestapelten, unterschiedlich großen Boxen aus weiß pigmentiertem Sichtbeton nimmt einen anderen Teil des Programms auf. Verbunden über zwei voneinander unabhängige Treppenkaskaden, ergeben sie zusammen ein klar strukturiertes Ensemble, welches das knappe Grundstück optimal nutzt und sich zum See hin maximal öffnet.

Gebäudedaten Sichtbetonhaus:

  • Standort: Zürichsee
  • Grundstücksfläche: 1.500 m2
  • Wohnfläche: 550 m2
  • Bauweise: massiv, Beton
  • Heizwärmebedarf und Primärenergiebedarf entsprechen Minergie-Standard
  • Fertigstellung: 2010

Fotos Sichtbetonhaus:

Radek Brunecky, Zürich & Dominique Marc Wehrli, Regensdorf

Dieses Haus ist erschienen in: “Häuser des Jahres 2012”, Callwey Verlag.