Villa als bewohnbare Skulptur

von Bembé Dellinger Architekten.

Der Neubau inszeniert das volle Panorama

Ein Haus als bewohnbare Skulptur, ein Betonwinkel, der mit seinen Schenkeln in das Grundstück ausgreift. Ein früheres Gebäude auf dem Grundstück hatte sich bereits mit der besonderen Lage auseinandergesetzt, der Neubau inszeniert nun das volle Panorama. Der Blick zum Ammersee gibt die entscheidende Orientierung, die abgewandten Seiten blenden bewusst die durchschnittlich dörflich bebaute Umgebung aus. Dazu wurden in die Außenwände 380 Acrylglaszylinder als runde Perforierung eingelassen; sie filtern das Öffentliche vom Privaten. Von außen wirken sie wie eine vertiefte rätselhafte Braille-Schrift, die die hermetische Fassade nicht vollständig abschließen möchte, von innen spiegeln die glänzenden, mit der Putzfläche bündigen Glaspunkte wie helle Lichter, die mit dem Sonnenstand die Wände pointillistisch verzaubern.

Bembe Dillinger Architekten Villa als bewohnbare Skulptur Lageplan
Lageplan
Bembe Dillinger Architekten Villa als bewohnbare Skulptur Grundriss Villa Hanggeschoss
Grundriss Hanggeschoss

Den See immer im Blick

Das Erdgeschoss sehnt sich mit seinem abgesenkten Wohnbereich geradezu nach dem See, wendet sich dem gegenüberliegenden Kloster und den Bergen zu. Eine holzbelegte Freitreppe, die sich wie eine Promenade, mit der Höhe breiter werdend, an die Außenwand schmiegt, führt ins Obergeschoss. Je höher man kommt, umso freier wird der Blick. Hier oben gibt es für die beiden Bewohner einen Schlafraum mit Ankleide und Bad, außerdem eine große Dachterrasse, die sich ebenfalls zur Seeseite orientiert. Durch große Schiebetüren lassen sich diese Bereiche als eigene Kabinette oder als Großraum erleben. Der See bleibt immer im Blick.

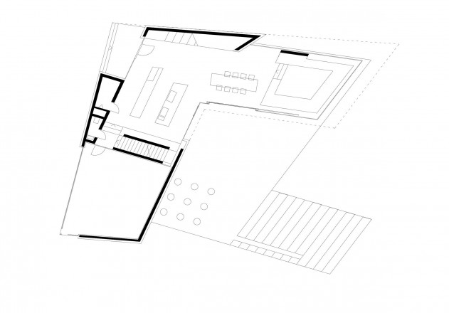
Bembe Dillinger Architekten Villa als bewohnbare Skulptur Grundriss Erdgeschoss
Grundriss Erdgeschoss
Bembe Dillinger Architekten Villa als bewohnbare Skulptur Grundriss Obergeschoss
Grundriss Obergeschoss

Räumliche Erlebnisse durch Schiefwinkligkeit

Im Untergeschoss, zum Teil im Hang versteckt, folgen Räume für Wellness, Arbeiten und Gäste.Die Innenausstattung mit einem einfachen Materialkanon, wie den breiten, bis 13 Meter langen Eichenholzdielen, setzt die äußere Körperhaftigkeit plastisch fort, die Schiefwinkligkeit des Grundrisses macht jeden Weg zu einem räumlichen Erlebnis.

Pläne und Grundrisse Villa:

Architekt: Bembé Dellinger Architekten

Eine Villa für ein unternehmerisches Paar mit Gestaltungskompetenz, Neugier und Mut. Ein Haus mit komplexen Funktionsabläufen.

Gebäudedaten:

  • Standort: Ammersee
  • Grundstücksgröße: 1.100 m2
  • Wohnfläche: 315 m2
  • Zusätzliche Nutzfläche: 310 m2
  • Anzahl der Bewohner: 2
  • Bauweise: massiv (Beton)
  • Heizwärmebedarf: 50,6 kWh/m2a
  • Primärenergiebedarf: 64,4 kWh/m2a
  • Fertigstellung: 2009

Fotos:

Christian Hacker, München

Dieses Haus ist erschienen in: “Häuser des Jahres 2011”, Callwey Verlag.