Villa am Weinberg

von UNStudio.

Futuristisch und luxuriös wohnen am Weinberg

Schon bei früheren Projekten – darunter das in den 1990er Jahren entstandene Möbius-Haus – haben sich die Architekten UN Studio mit dem Verhältnis von Raumprogramm, Bewegungslinien und konstruktiver Struktur auseinandergesetzt. Wenn Ben van Berkel zu dieser Villa am Weinberg, seiner neuen skulpturalen Schöpfung erläutert: „Die Organisation der Villa, die Anordnung der Bewegungsabläufe und der Ausblicke sind so konzipiert, dass sie die Schichten der umgebenden Landschaft nachbilden“, dann befriedigt das zunächst die Neugier für dieses Energiesparhaus, das in einer von architektonischen Auffälligkeiten unbelasteten Umgebung steht.

Un Studio Haus am Weinberg Stuttgart Lageplan
Lageplan
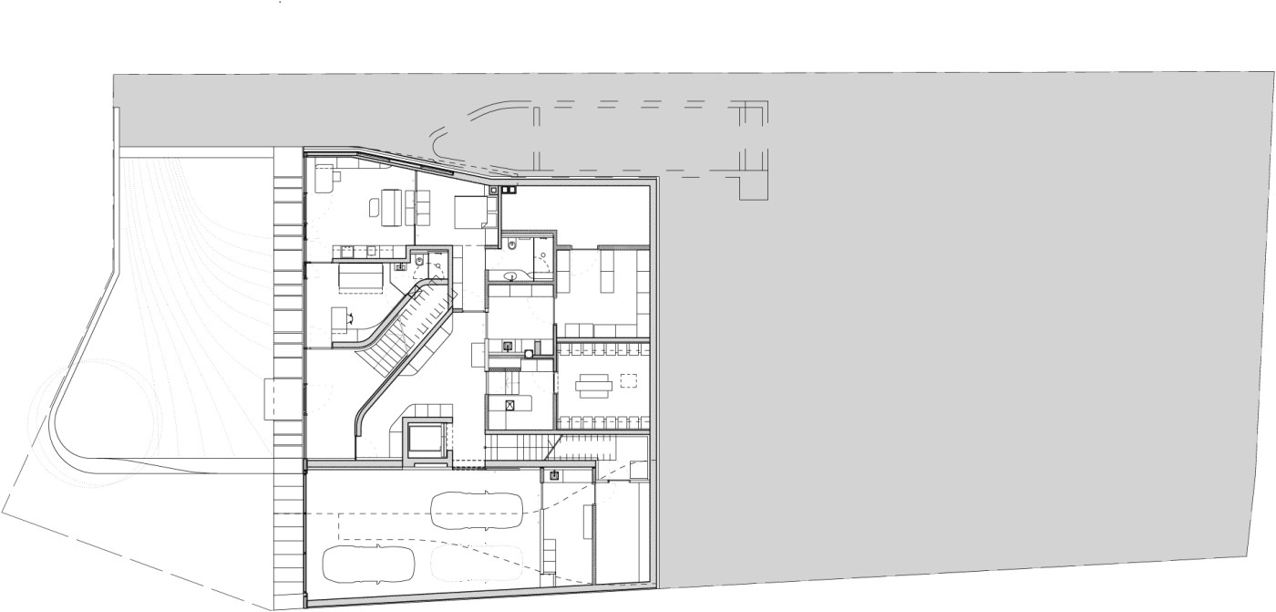
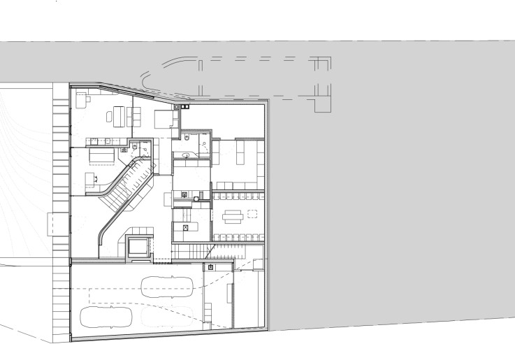
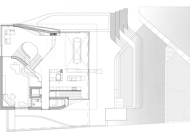
Un Studio Haus am Weinberg Grundriss Erdgeschoss
Grundriss Erdgeschoss

Raumanordnung orientiert sich am Sonnenstand

Viel aufschlussreicher ist allerdings der Blick nach innen. Die Erschließung, die Wegeführung und die Ausblicke folgen einer einzigen Geste – dem „Twist“, dem Dreh um die Treppe der beiden Obergeschosse. Während der Begriff des fließenden Raums inflationär für alle gängigen Grundrisse mit offenen Türen verwendet wird, ist hier eine gebärdenhafte Skulptur entstanden, die selbst bei über 900 Quadratmetern Wohnfläche noch verschwenderisch mit der dritten Dimension kokettiert. Die Anordnung der Räume folgt dem Sonnenstand. Ermöglicht wird das durch eine auf ein Minimum reduzierte Betonkonstruktion. Die Last von Dach und Decken wird nur vom Aufzugskern, von zwei Stützen und einer inneren Säule abgetragen. Durch die großen Spannweiten der auskragenden Decken sind alle vier Ecken des Hauses stützenfrei verglast, sodass Aus­blicken (und Einblicken) nichts im Weg steht.

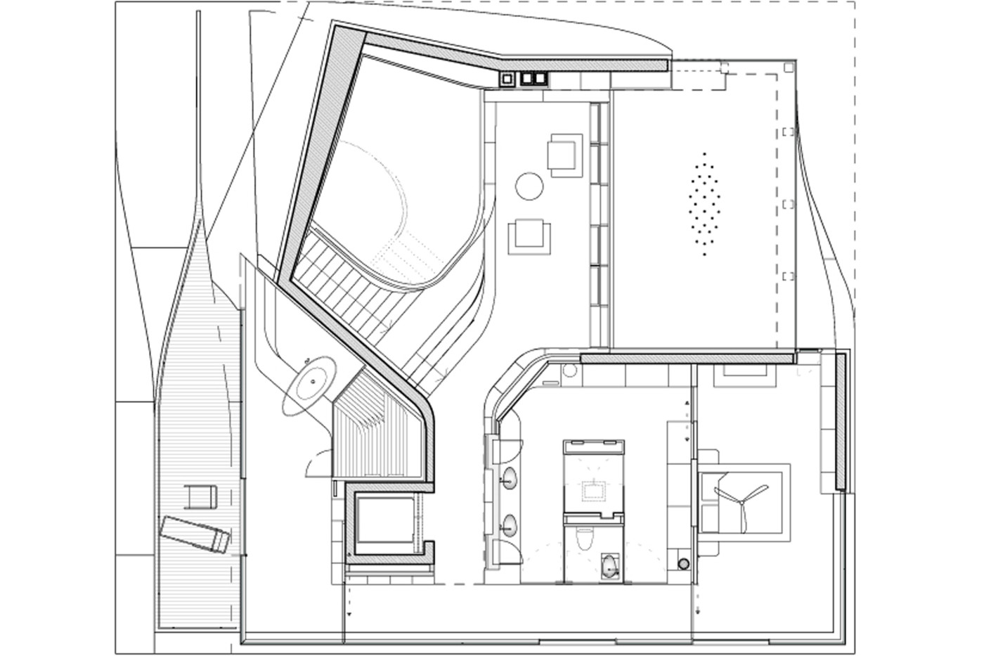
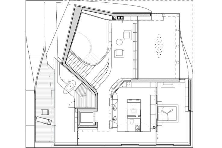
Un Studio Haus am Weinberg Grundriss 1. Obergeschoss
Grundriss 1. Obergeschoss
Un Studio Haus am Weinberg Grundriss 2. Obergeschoss
Grundriss 2. Obergeschoss

Einliegerwohnung, Weinkeller und Galerie auf 900 qm² Wohnfläche

Im Erdgeschoss beginnt der Aufstieg noch mit einem geraden Treppenlauf (oder Lift). Hier liegen außerdem eine Gäste- bzw. Einliegerwohnung sowie Weinkeller mit Probiertheke, Stauräume und Garage. Die Wohnebene erfährt durch Stufen und doppelte Raumhöhen den Luxus unterschiedlicher Atmosphären, die Küche mit einem eigenen Kellerabgang wird nur von einem plastischen Tresen, der sich auf der Terrasse fortsetzt, separiert. Während das Tageslicht verschwenderisch dieses helle Raumkontinuum modelliert, bleibt als ironischer Aperçu ein schwarzer „Darkroom“, der mit Jagdtrophäen, Büchern und Konzertflügel der „männlichen Geselligkeit “ vorbehalten ist. Die verheißungsvolle Treppe nach oben erschließt eine Galerie, dann Schlafraum, Ankleide, Bad und ein Wellnesskabinett mit Terrasse. Eichenparkett, Naturstein und helle Stuckwände, außerdem eine Vielzahl maßgeschneiderter Besonderheiten, veredeln die Räume.

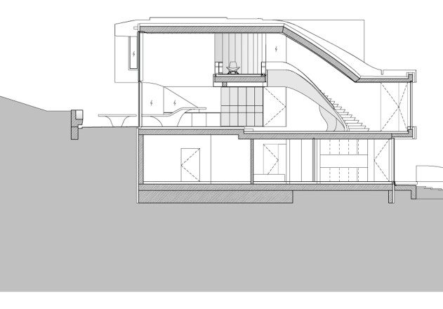
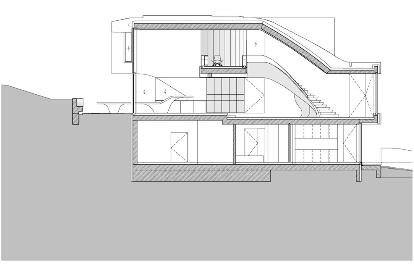
Un Studio Haus am Weinberg Schnitt Weinbergterrasse
Schnitt

Pläne:


Architekt:
UNStudio

Die Anordnung der Villa und der Bewegungen und Aussichten imitieren die umliegende Landschaft.

Gebäudedaten:

  • Standort: Stuttgart
  • Wohnfläche: 920 m²
  • Grundstücksgröße: 1.280 m²
  • Zusätzliche Nutzfläche: 618 m²
  • Bauweise: Massivbauweise
  • Fertigstellung: 11/2011

Fotos:

Iwan Baan, Amsterdam
Christian Richters, Berlin

Dieses Haus ist erschienen in: “Häuser des Jahres 2014”, Callwey Verlag.