von Axel Steudel.
Symmetrie und Repäsentation
Die Bauherren orientierten sich mit ihren Wohnwünschen an den Merkmalen traditioneller Häuser. Dazu gehörte ein symmetrisch angelegter Baukörper mit einer zweigeschossigen Eingangshalle und einer klaren Raumfolge mit entsprechender Innenausstattung. Darauf versucht das Haus, eine zeitgemäße Antwort ohne nostalgische Dekoration zu geben. Vorbilder werden zwar konkret, aber im Detail abstrakt zitiert.
In der richtigen Himmelsrichtung wohnen
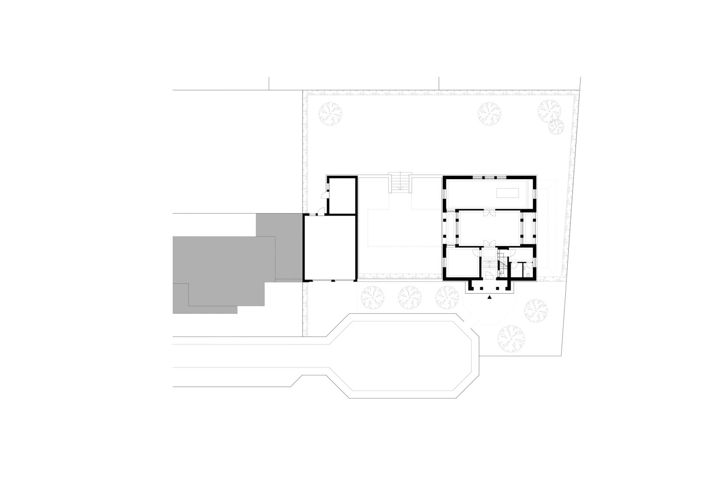
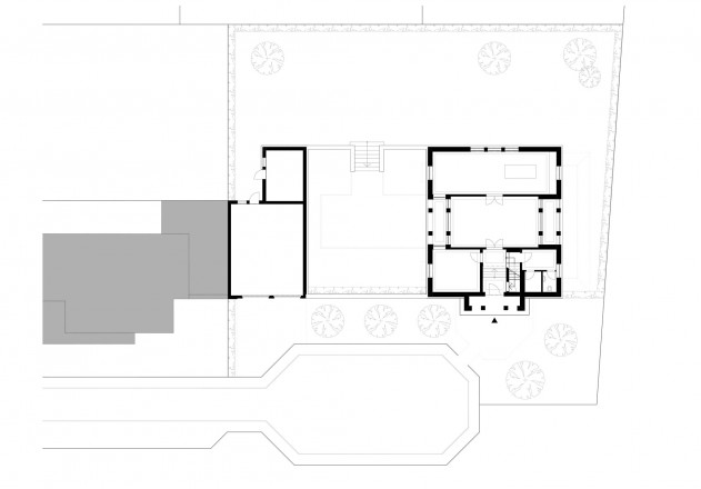
Die Lage des Hauses und die Anordnung der Räume orientieren sich trotz der hierarchisch wirkenden Räson zunächst an der Himmelsrichtung. Das Massivhaus steht an der Ostseite des Grundstücks, sodass sich nach Westen eine Gartenterrasse ergibt, die von einer an die Nachbarbebauung anschließenden Garage begrenzt wird. Ein gemeinsamer Sockel verbindet die Anlage und, klassischen Beispielen folgend, hebt das Anwesen aus seiner Umgebung. Das Erdgeschoss liegt etwa 1 Meter über dem Gelände und erlaubt eine gute Belichtung der Räume im Untergeschoss sowie eine Separierung der Terrasse vom tiefer liegenden Garten.
Großzügigkeit in allen Räumen
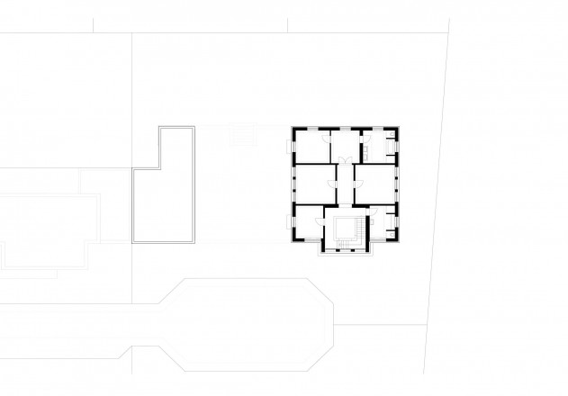
Beherrschend im Erdgeschoss ist der Wohnraum. Zwei kleine Loggien nach Osten und Westen dämpfen den Lichteinfall und tragen zu einem Gefühl der Geborgenheit bei. Küche, Essbereich, Arbeitszimmer und Garderobe flankieren diesen Zentralraum. Im Obergeschoss erreicht man Schlaf-, Kinder- und Gästezimmer mit ihren großzügigen Bädern und Ankleiden.
Grundidee: Dauer und Beständigkeit
Das Haus ist als Massivbau mit hoch dämmenden, einschaligen Ziegelmauern mit mineralischem Kratzputz ausgeführt. Der Sockel ist mit Klinkern verblendet, sie setzen sich als Belag im Eingang und in den Loggien fort. Innen liegen Eichendielen oder Schiefer auf den Böden, sie gehören zum Konzept, nur wenige, natürliche Materialien zu verwenden. Türen, Geländer und Fenster sind weiß lackiert. Alles ist auf Dauer und Beständigkeit angelegt, nicht nur formal.
Pläne und Grundrisse:
Architekt: Axel Steudel
DANK DER AUSWAHL UND VERARBEITUNG DER MATERIALIEN UND BAUTEILE LÄSST SICH DAS HAUS MIT VERTRETBAREM, WIRTSCHAFTLICHEM AUFWAND DAUERHAFT UNTERHALTEN.
Gebäudedaten:
- Standort: Köln
- Grundstücksgröße: 1.088 m2
- Wohnfläche: 279 m2
- Zusätzliche Nutzfläche: 164 m2
- Anzahl der Bewohner: 4
- Bauweise: massiv
- Heizwärmebedarf: 50,14 kWh/m2a
- Primärenergiebedarf: 53,26 kWh/m2a
- Fertigstellung: 2009
Fotos:
Dieses Haus ist erschienen in: “Häuser des Jahres 2011”, Callwey Verlag.