Zwei Häuser für zwei Schwestern

von Alexander Brenner Architekten.

Alexander Brenner Architekten zwei Einfamilienhaeuser Lageplan
Lageplan

Was der Architekt nicht planen kann

Wenn ein Bauherr einen Architekten mit der Planung seines Hauses beauftragt, erhält er im glücklichen Fall genau das, was er sich vorgestellt hat. Worauf der Architekt keinen Einfluss hat, ist die Umgebung, die vorhandenen oder später in unmittelbarer Nachbarschaft entstehenden Gebäude. Sie beeinträchtigen nicht nur unwillkürlich die Wohnqualität, weil der ambitionierte Bauherr ihre vielleicht grobe Durchschnittlichkeit immer im Blick haben muss, sondern schmälern auch den Wert seines Domizils.

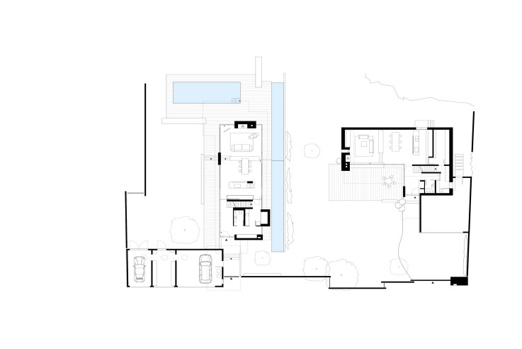
Alexander Brenner Architekten zwei Einfamilienhäuser Grundriss Erdgeschoss
Grundriss Erdgeschoss

Zwei Einfamilienhäuser und eine Mauer

Was für ein Glück also, wenn es etwas mehr sein darf, wenn der Architekt wie hier in Kirchheim gleich zwei Häuser nebeneinander bauen kann. Die Bauherrschaft sind die Familien zweier Schwestern, für
die benachbart auf einem 1800 Quadratmeter großen Grundstück diese beiden Einfamilienhäuser errichtet wurden. Da sie an einer lauten Straße liegen und die heterogene Nachbarbebauung ausgeblendet werden sollte, orientierte sich der Architekt am Motiv einer „klösterlichen Anlage“. Dazu umfriedete er die beiden Häuser mit einer Mauer, die aber nicht fremd und hermetisch das Grundstück abschließt, sondern durch ihre Staffelung die körperhaft verschränkte Hausarchitektur vorwegnimmt.

Alexander Brenner Architekten zwei Einfamilienhäuser Grundriss Obergeschoss
Grundriss Obergeschoss

So gleich und doch verschiedenen

Auch zwischen den beiden Gebäuden trennt eine Mauer, hier von einem Wasserbecken begleitet, als landschaftliche Zäsur die privaten Gärten der beiden Familien. Und obwohl ihre Häuser sich durch Kubatur und Ausrichtung unterscheiden, um jeweils ein unverwechselbares Zuhause zu umschreiben, spielen die innere Organisation und die außen ablesbare Tektonik mit den gleichen Elementen, die eine strukturelle Verwandtschaft der Bauwerke zeigen. Sie bilden ein Ensemble, sie gehören zusammen, so wie die beiden Familien, wenn sie mögen, auf dem straßenseitig gelegenen Hof sich begegnen und gemeinsam etwas unternehmen können.

Funktionale Anmut in Weiß

Die beiden weißen Häuser, zweifellos einer klassischen Moderne zuzurechnen, lassen sich als Skulpturen lesen, als grafisch modellierte Zweckbauten, die erlebt und bewohnt werden wollen. Was sich außen durch die sichtbaren Fugen zwischen den einzelnen Baukörpern und Elementen zeigt und wie bei einem Steckspiel eine scheinbar reversible Fügung statt unauflösbarer Schwere andeutet, setzt sich innen durch die offenen, durch Stufen oder Deckenaussparungen modellierten Grundrisse fort: funktionale Anmut.

Pläne und Grundrisse Massivhaus:

Architekt: Alexander Brenner Architekten

Die ruhigen, ungestörten Oberflächen im Innenraum, die klaren Formen und die Überlagerung der einzelnen Körper sowie die Außenform sind das Ergebnis einer büroeigenen ‚Denkkultur‘, die Architektur, Innenraum-, Möbel- und Lichtplanung bis hin zur Gartengestaltung als Ganzheit betrachtet 

Gebäudedaten (rechtes Haus):

  • Standort: Kirchheim
  • Grundstücksgröße: 746 m2
  • Wohnfläche: 230 m2
  • Zusätzliche Nutzfläche: 102 m2
  • Anzahl der Bewohner: 3
  • Bauweise: massiv (Beton / Ziegelmauerwerk)
  • Heizwärmebedarf: 21 kWh/m2a
  • Primärenergiebedarf: 33 kWh/m2a
  • Baukosten: 540.000 Euro
  • Baukosten je m2 Wohn-und Nutzfläche: 1.626 Euro
  • Fertigstellung: 2009

Fotos: Zooey Braun, Stuttgart

Dieses Haus ist erschienen in: “Häuser des Jahres 2011”, Callwey Verlag.