Atelier mit Aussicht

von Albertin Partner Architekten

Panorama-Architektur: Das Wohnhaus von Albertin Partner Architekten inszeniert Ausblicke auf das Churer Rheintal – die Ausrichtung in alle vier Himmelsrichtungen verleiht jedem Raum einen individuellen Charakter.

Zum Raumprogramm des Hauses gehörte eine 4 ½- Zimmer-Wohnung und ein Atelier, das sich auch als 2 ½-Zimmer- Wohnung abtrennen lässt.

Maßgebend für den Entwurf war, dass jeder Raum eine besondere Aussicht erhält: Das Untergeschoss reagiert auf den Höhenversatz zur Straße und bildet einen Sockel mit Garage, Keller und zwei Eingängen. Hier befindet sich auch das Atelier – direkt vor einem gewachsenen Felsen, der abends den Sonnenuntergang ins Haus reflektiert.

Diese Hangsicherung war dem schwierigen Baugrund geschuldet. Sie verankert das Gebäude im Gelände und ergibt ein breiteres Erdgeschossplateau.

Flexibles Raumkonzept

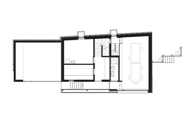
Das Geschoss darüber birgt den eigentlichen Wohnraum mit Küche und Esszimmer, hier genießt man die Aussicht nach Süden in die Berge, das Dorf und die Stadt Chur. Durch die Aufnahme der Hangneigung geht es jeweils eine bzw. zwei Stufen tiefer, vom Küchentresen über den Essplatz zum Wohnraum, den der von zwei Seiten zu befeuernde Kamin abtrennt. Ein weiterer Büroraum wird über eine eigene Treppe erschlossen, was für eine spätere fremde Nutzung vorteilhaft ist.

Offene Geschosse

Im Dachgeschoss befinden sich drei Schlafzimmer – vom Treppenflur bleibt man durch eine galerieartige Aussparung mit dem Wohngeschoss in Verbindung. Balkone unter beiden Giebeln inszenieren die Aussicht.

Mich faszinierte die Lage des Grundstücks mit der schönen Aussicht und der Nähe zum Dorf. Die räumliche Umsetzung der vier Himmelsrichtungen im Projekt interessierten mich; so entstanden Räume mit unterschiedlichen Qualitäten

Holzelementbauweise trifft auf Betonsockel

Gebaut ist das Haus oberhalb des betonierten Untergeschosses aus vorgefertigten Holzbauelementen (CLT), die als geschosshohe Brettsperrholzscheiben zur Baustelle gebracht wurden. Das zur Talseite fensterlose Obergeschoss ist als Überzug des Tragwerks konstruiert. Indem die die Lasten auf die Giebelwände im Erdgeschoss abgetragen werden, ergibt sich eine stützenfreie Fassade mit Aussichtsverglasung.

Durch die herausragende Lage und die Nachbarschaft zu einem alten Holz-Chalet entschieden sich Albertin Partner Architekten sich für eine zurückhaltende Farbgebung: Die anthrazitfarbene Hülle legt sich wie eine Kappe über das Gebäude.

Das Haus erfüllt den Minergie-Eco Standard, das heißt Passivhausanforderungen mit hohen gesundheitlichen und ökologischen Qualitäten.

Gebäudedaten

  • Standort: Haldenstein (CH)
  • Anzahl der Bewohner: 3 (Wohnung), 4 (Atelier)
  • Wohnfläche: 183 m²
  • Grundstücksgröße: 615 m²
  • Zusätzliche Nutzfläche: 44 m²
  • Bauweise: Holzelement-Konstruktion mit Betonsockel
  • Primärenergiebedarf: 3,8 kWh/m²a
  • Baukosten: 820.000 CHF
  • Baukosten je m² Wohn- und Nutzfläche: 3.110 CHF
  • Fertigstellung: 2009

Fotos: Ralph Feiner Architekturfotografie, Malans

 

Dieses Haus ist erschienen in: “Häuser des Jahres 2012“, Callwey Verlag.