Betonhaus in den Bergen

von Hurst Song Architekten.

Hurst Song Architekten Betonhaus in den Bergen Lageplan
Lageplan

Beton trifft auf dörflichen Baustil

Das aus Dämmbeton errichtete Massivhaus schafft beides: es fügt sich in die Struktur der alten dörflichen Bebauung, wirkt gleichzeitig als erratischer, felsiger Block – und bietet andererseits die Annehmlichkeiten zeitgemäßen Wohnens mit großartigen Ausblicken aus herzhaft eingeschnittenen Fensteröffnungen.

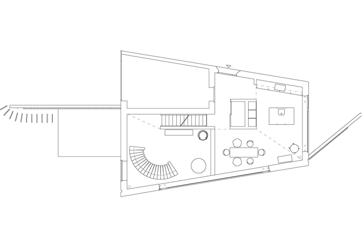
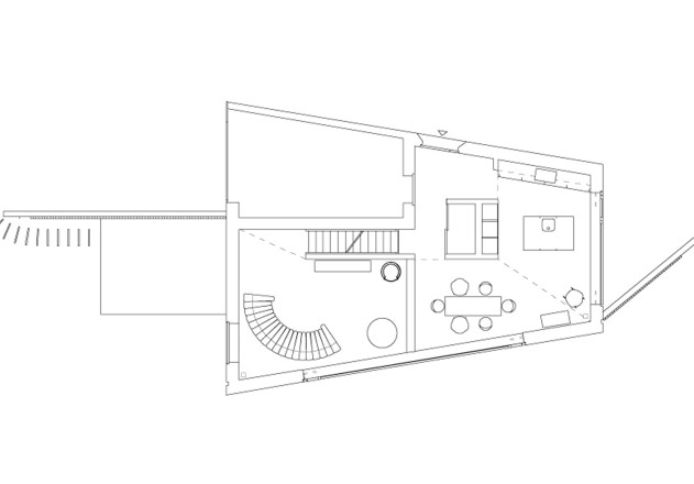
Hurst Song Architekten Betonhaus in den Bergen Grundriss Untergeschoss
Grundriss Untergeschoss

Ein besonderes Satteldach

Sie schließen außen bündig ab und verbergen die Konstruktionsstärke der Laibung, was die monolithische Anmutung des prismatischen Baukörpers verstärkt. Ihre Eichenholzrahmen und Öffnungsflügel sind mit schwarz eloxiertem Aluminium verkleidet, man könnte sie als mineralische Einschlüsse im Beton interpretieren. Eine Besonderheit zeigt auch das Satteldach. Es ist aus Zellulose-gedämmten Holzelementen aufgebaut und mit horizontal gefalzten Edelstahlbahnen witterungsfest geschlossen. Die Falze mit ihrem ungewöhnlichen Verlauf dienen als Schneefanggitter, zur Entwässerung sind sie versetzt flach geklopft.

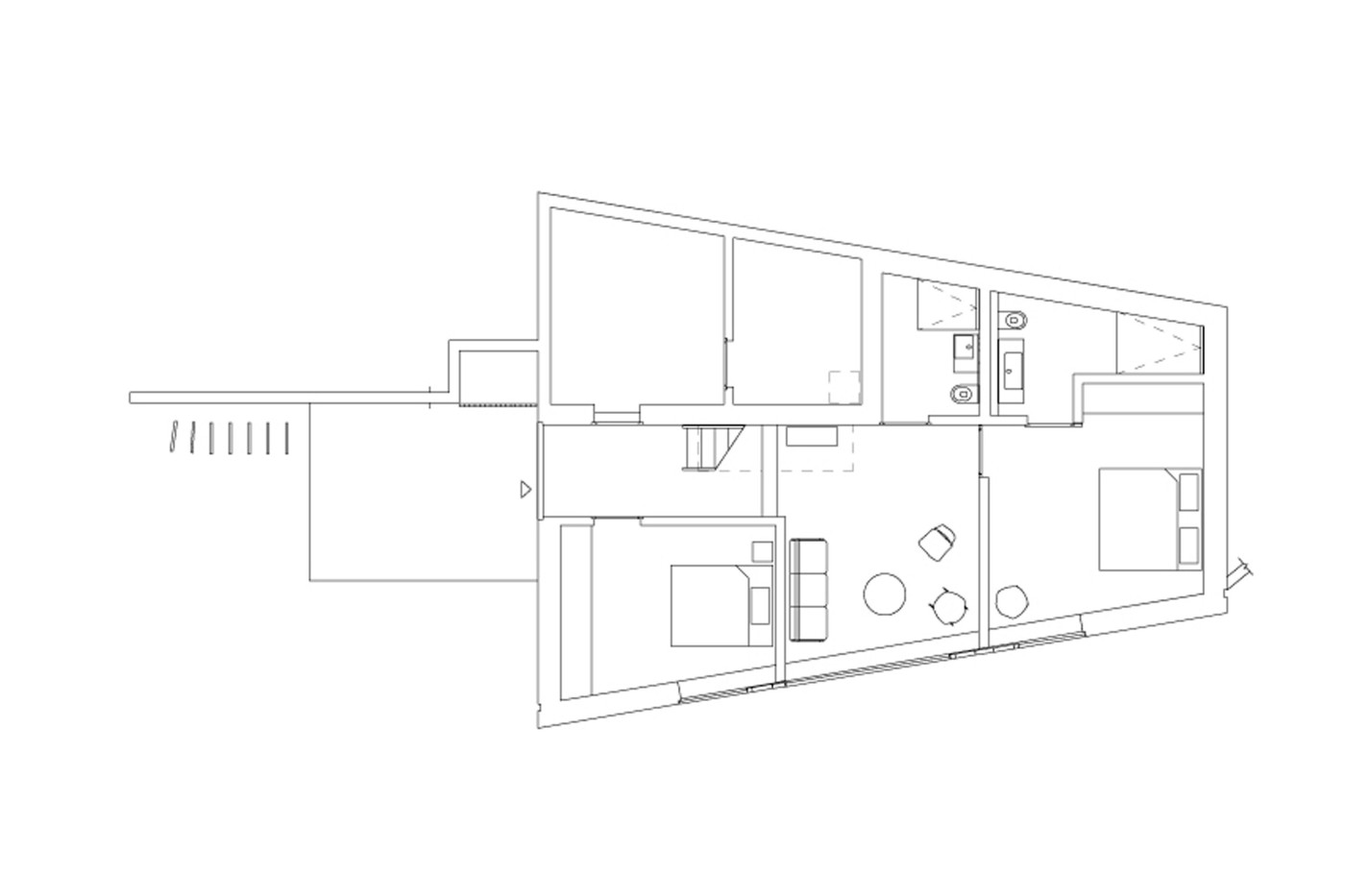
Hurst Song Architekten Betonhaus in den Bergen Grundriss Erdgeschoss
Grundriss Erdgeschoss
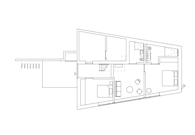
Hurst Song Architekten Betonhaus in den Bergen Grundriss Obergeschoss
Grundriss Obergeschoss

Vom Betonhaus zum Fels

Mit der Zeit wird die patinierte Schräge die Farbe des Betons annehmen und das Massivhaus immer mehr zum Felsen werden lassen. Auch innen bleibt der archaische Steincharakter nicht verborgen. Statt schichtenweiser Aufbauten zeigen die Wände und der geschliffene Betonboden, wo man zu Hause ist. Die tiefen Laibungen und Gesimse dienen als Abstellflächen oder laden zum Sitzen ein. Die der Topografie und dem Grundstückszuschnitt folgende Kubatur mit trapezförmigem Umriss lässt sich innen wie eine abstrakte Wohnhöhle er­leben. Man betritt sie auf einer mittleren Ebene, hat nach einem Garderobenblock Küche und Essplatz im Blick, woran sich durch raumbreite Stufen zoniert der Wohnraum anschließt. Er reicht bis unter das holzverschalte Dach. Dorthin führt eine Treppe zu einem Sauna- und Badebereich, aus dem man über verschiedene Dachflächenfenster unbeeinträchtigt in den Himmel und die Berge schauen kann.

Hurst Song Architekten Betonhaus in den Bergen Laengsschnitt
Längsschnitt

Ein Holzofen sorgt für Gemütlichkeit

Im Untergeschoss liegen zwei Schlafzimmer mit Bädern und ein kleiner Leseraum, zum dunklen Berg hin Keller und ein Technikabteil. Hier arbeitet eine Sole-Wasser-Wärmepumpe, deren niedrige Vorlauftemperatur auf die hohe Speicherfähigkeit der massiven Konstruktion abgestimmt ist. Die Trägheit des Systems lässt sich bei Abwesenheit ferngesteuert kompensieren, an heißen Tagen dient es im Gegenbetrieb zur Kühlung. Sichtbar ist dagegen im Wohnraum ein veritabler schwarzer Holzofen, der gemütlich knisternd heizt und auch zum Backen genutzt wird.

Pläne und Grundrisse:

Architekt: Hurst Song Architekten

„Die Architektur wird vom Giebeldach und der Trapezform im Grundriss bestimmt (…)“

Gebäudedaten:

  • Standort: Vignogn (CH)
  • Anzahl der Bewohner: 3
  • Wohnfläche: 160 m²
  • Grundstücksgröße: 676 m²
  • Zusätzliche Nutzfläche: 60 m² (inkl. Garage)
  • Bauweise: Massivbau aus Dämmbeton, Dach aus Holzelementen
  • Baukosten gesamt: 910.000 CHF
  • Fertigstellung: 02/2013

Fotos:

Alex Hurst, Zürich
Gaelle de Boulicaut, Vannes

Dieses Haus ist erschienen in: “Häuser des Jahres 2014”, Callwey Verlag.