Die Quadratur des Kreises

von Philipp Architekten BDA

011-PhilippArchitekten-VillaHulliger-Aussenansicht-NordWestWEB

Form follows situation

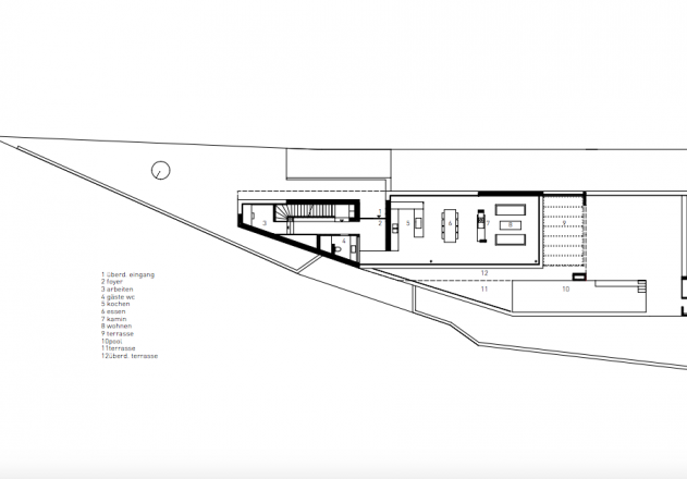
Die Architektin Anna Philipp, die in Frankfurt und Waldenburg ein Architekturbüro betreibt – in fünfter Familiengeneration – lange jedoch auch in der Schweiz gearbeitet hat, spricht von der Quadratur des Kreises, das Wohnhaus so zu positionieren, dass das Raumprogramm für die Familie ebenso angenehmen und großzügigen Platz findet wie ein Garten mit Pool. Der Grundriss des schmalen, lang gestreckten Baukörpers folgt den Grundstücksgrenzen. Von kleinen Siedlungsstraßen umsäumt präsentiert sich das Gebäude zur Bergseite hin verschlossen und bildet dessen Rücken. Hier betritt der Besucher das Haus im Erdgeschoss, der mittleren von drei Ebenen. Es besteht zum Großteil aus einem loftartigen Raum, der den Lebensmittelpunkt der Familie bildet: Kochen, Essen und Wohnen, zoniert durch einen freistehenden Kamin. Der rundum verglaste Raum ist den ganzen Tag lichtdurchflutet, er öffnen sich zur Aussicht und zum angrenzenden Pool und den Terrassen.

Schönheit ist ein Ort, den man nicht verlassen möchte.

Ein stolzer Turm

In der Hausspitze ist ein kleiner Arbeitsplatz untergebracht, der gleich einer Warte den Blick auf das Geschehen vor dem Haus freigibt. Auch die einläufige Treppe findet hier Platz. Von außen betrachtet wirkt die Schmalseite des Gebäudes fast wie ein standhafter Turm, der sich stolz in die Höhe reckt und sich seiner imposanten Wirkung durchaus bewusst ist.

001-PhilippArchitekten-VillaHulliger-Aussenansicht-NordOstWEB
009-PhilippArchitekten-VillaHulliger-TreppenhausWEB

Verglaste Rückzugsräume

Im Gegensatz dazu zeigt sich die dem Tal zugewandte Längsseite des Hauses einladend und offen, dem Grundstück entsprechend geknickt. Eine großzügige Garage, Technik-, Abstell- und Hauswirtschaftsräume verschwinden im Berg, auch ein Fitnessraum ist auf dieser Ebene untergebracht. Auch die im Obergeschoss untergebrachten Rückzugsräume der Familie sind komplett verglast und gestatten Ausblick auf die weitläufige, am Horizont von Bergen gesäumte Landschaft. Eine überdachte Terrasse ist dem Elternschlafzimmer vorgelagert und vermittelt zwischen Innen und Außen.

Gebäudedaten

  • Standort: Aarwangen (CH)
  • Anzahl der Bewohner: 3
  • Wohnfläche: 322 m2
  • Grundstücksgröße: 685 m2
  • Bauweise: Massivbau
  • Fertigstellung: 07/2016

Text: Katharina Matzig
Fotos: José Campos, Porto www.josecamposphotography.com

Philipp Architekten BDA
Schloßstraße 16
74368 Waldenburg
www.philipparchitekten.de

Dieses Haus ist erschienen in: „Häuser des Jahres 2019“, Callwey Verlag