Ein Mehrgenerationenhaus

von Christine Remensperger.

Christine Remensperger ein Mehrgenerationenhaus Lageplan
Lageplan
Christine Remensperger ein Mehrgenerationenhaus Grundriss Erdgeschoss
Grundriss Erdgeschoss

Neubau ersetzt Fachwerkhaus

Das Grundstück im Stuttgarter Stadtteil Rotenberg, ein dörfliches Ensemble historischer Wohnhäuser, brachte besondere Auflagen mit. Der Neubau ersetzt ein altes Fachwerkhaus, hier galt es, sich in die vom Denkmalamt geforderte Kulisse einzufügen, ohne das Entstehungsjahr des Hauses zu verleugnen. Eine zusätzliche Schwierigkeit bot das kleine Grundstück, das fast exakt der Erdgeschossfläche entspricht. Rückwärtig wurde an eine Nachbargarage angebaut, hier betont an dem traditionellen, von einem Satteldach abgeschlossenen Baukörper ein kleiner Vorbau mit Balkon den Eingang. Alle übrigen angrenzenden Flächen sind öffentlich.

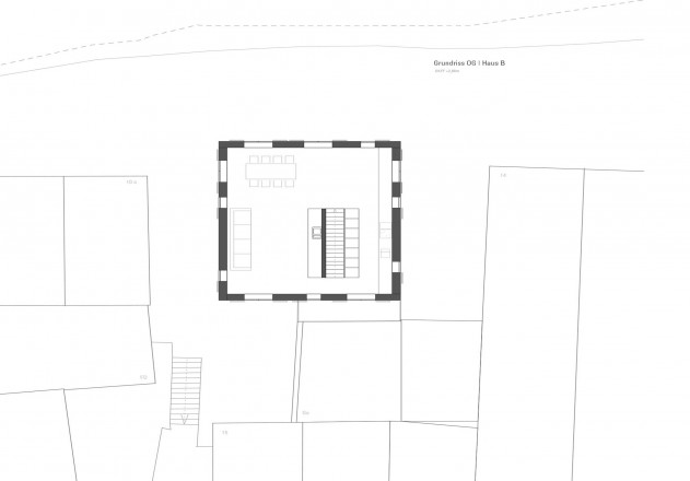
Christine Remensperger ein Mehrgenerationenhaus Grundriss Obergeschoss
Grundriss Obergeschoss
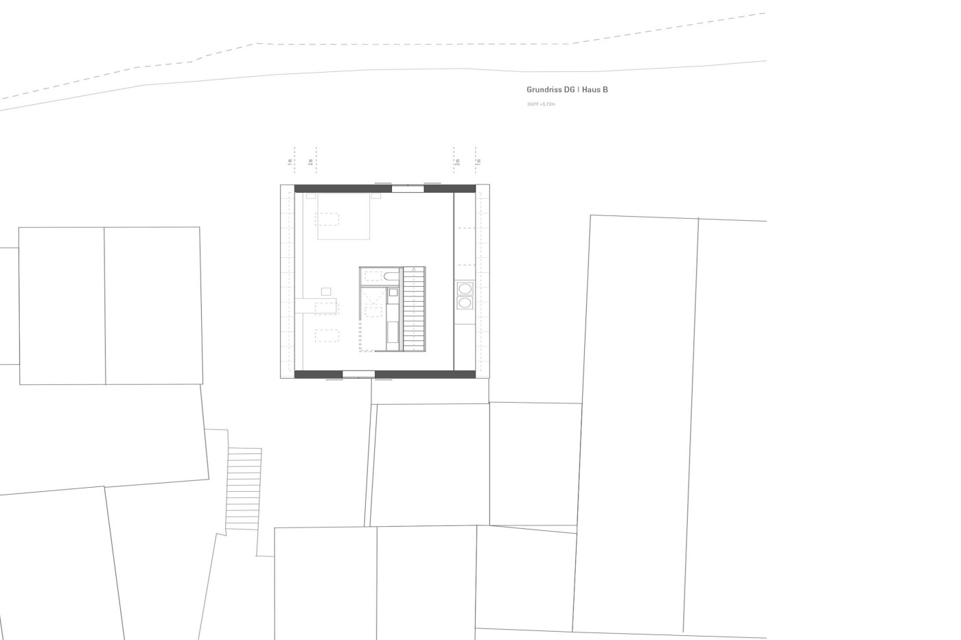
Christine Remensperger ein Mehrgenerationenhaus Grundriss Dachgeschoss
Grundriss Dachgeschoss

Wie eine feste Membran

Die Außenwände samt den weißen Läden mit ihrem traditionellen Ornament und den flächenbündig eingebauten Fenstern gleicher Größe umspannen das Haus wie eine feste Membran. Dazu passen der unauffällige Ortgang des Sparrendachs und die knappe Traufe. Sie zeigen, dass es sich um einen Neuzugang in Rotenberg handelt, der sich nicht wichtig macht, aber sich auch nicht hinter Gemütlichkeitsmotiven versteckt. Dazu gehörte, jedes Material mit handwerklicher Qualität und mit seinen natürlichen Oberflächen einzubauen.

Christine Remensperger ein Mehrgenerationenhaus Schnitt
Schnitt

Maximale Ausnutzung der Fläche

Die Grundrisse bieten eine maximale Ausnutzung der Wohnfläche. Im Erdgeschoss liegen jetzt die Kinderzimmer, hier lässt sich später eine Einliegerwohnung abtrennen. Nach oben begleitet als innerer Kern eine dunkle Nussbaumholzvertäfelung, die als Brüstung, Wand, Raumteiler oder Schrank fungiert. Das Mobiliar übernimmt das Thema wie ein Aperçu. Im Obergeschoss steht mittig eine betonierte Kaminwand, an der Außenwand ist in der sonst ungeteilten Ebene eine lange Küchenzeile eingebaut. Im Dachgeschoss schließt sich die Holzwand zu einer Box für das Badezimmer, durch das Satteldach entsteht ein Haus-im-Haus-Motiv als Betonung des Privaten. Als Bodenbelag wurde durchweg ein rau geschliffener Anhydridestrich gegossen.

Optimales Energiekonzept

Das um 50 Grad geneigte Dach ist mit naturroten Biberschwanzziegeln gedeckt, die Fassaden über dem 36,5 Zentimeter starken Ziegelmauerwerk sind mit einem atmungsaktiven Rotkalk geputzt. Die offenporige Bauweise bietet ein hervorragendes Raumklima. Eine effektive Brennwerttechnik unterm Dach ergänzt das Energiekonzept, das ohne Wärmedämmverbundsystem KfW-60-Standard erreicht.

 

Pläne und Grundrisse Mehrgenerationenhaus:


Architekt: Christine Remensperger

Jedes Material sollte in seiner handwerklichen Qualität optimiert und aufs Genaueste angemessen ausgearbeitet werden.

Gebäudedaten:

  • Standort: Stuttgart
  • Grundstücksgröße: 86 m2
  • Wohnfläche: 180 m2
  • Zusätzliche Nutzfläche: 45 m2
  • Anzahl der Bewohner: 3
  • Bauweise: massiv (Ziegel)
  • Heizwärmebedarf: 28,81 kWh/m2a
  • Primärenergiebedarf: 63,82 kWh/m2a
  • Fertigstellung: 2009

Fotos:

Antje Quiram, Stuttgart

Dieses Haus ist erschienen in: “Häuser des Jahres 2011”, Callwey Verlag.