Familienwohnhaus

von Gohm & Hiessberger Architekten.

Ein Mehrgenerationenhaus

Ein ungewöhnliches Familienwohnhaus mit über 1.000 Quadratmetern Wohnfläche und zusätzlich 600 Quadratmetern Nutzfläche. Ebenso nicht alltäglich ist, dass eine Familie – eine Mutter mit drei Kindern und einigen Enkeln – ein gemeinsames Holzhaus, besser: eine Wohnanlage mit zwei zusätz­lichen Gästewohnungen, über einen Wettbewerb entwickeln lässt. Das große Haus zeigt nach außen die Gemeinsamkeiten als rationaler Baukörper, der in drei kantigen Volumen mit entsprechenden Zwischenräumen die individuellen, klar begrenzten Haushalte der Bewohner umschreibt.

Gohm Hiessberger Architekten Familienwohnhaus Lageplan
Lageplan

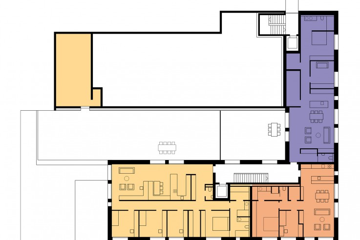
Gohm Hiessberger Architekten Familienwohnhaus Grundriss Erdgeschoss
Grundriss Erdgeschoss

Bewusst reduzierter Innenausbau

Wie aus Spielzeugbausteinen gestapelt addieren sich die Kompartimente, verbinden sich talseitig zu einem Riegel und enden in der Höhe mit unterschiedlichen turmartigen Volumen. Dazwischen bleibt Freiraum für Gärten und Höfe. Die Außenansicht wird von einer deutlichen Fassadengrafik bestimmt. Auf einem flächig wirkenden, abgetreppten Betonsockel steht ein reiner Holzbau mit kräftigen Pfosten und lagernden Decken, beide sind mit einer hellgrauen Glimmerlasur beschichtet und ließen von Weitem ein Betonskelett vermuten. Die Felder dazwischen sind von senk­rechten Latten oder horizontalen Jalousien schraffiert, hinter denen geschosshohe, nur manchmal von einem Öffnungsflügel geteilte Fensterflächen liegen. Die Holzelemente in diesem Energiesparhaus wurden vorgefertigt, aussteifend wirken die betonierten Treppen- und Liftkerne. Zwischen den tragenden 50 Zentimeter dicken Außenwandelementen aus verleimten Holztafeln spannen Brettstapeldecken, die innen sichtbar belassen wurden.

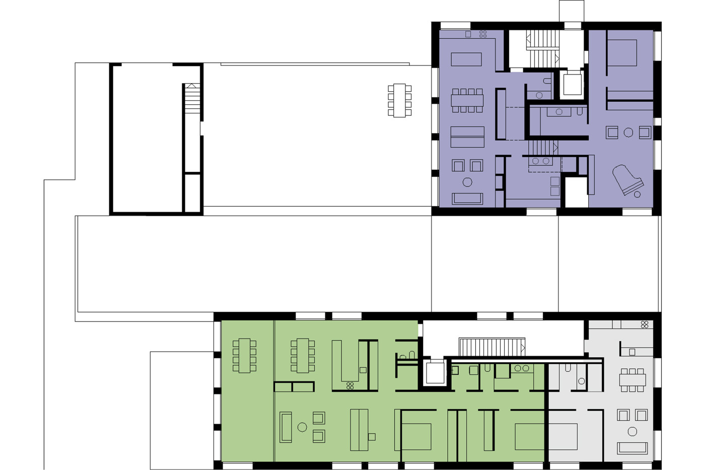
Gohm Hiessberger Architekten Familienwohnhaus Grundriss  Obergeschoss
Grundriss Obergeschoss

Gohm Hiessberger Architekten Familienwohnhaus Grundriss  zweites Obergeschoss
Grundriss 2. Obergeschoss

Ein Passivhaus für die ganze Familie

Die Innenwände aus Fichte-Verbundplatten zeigen ebenfalls das Material, der versiegelte Estrich antwortet mit dunkelgrauer Neutralität. Die Holz-Alufenster sind dreifach verglast. Die Wohnungen liegen auf einer oder zwei Ebenen, erreichen zum Teil übergroße Raumhöhen, extern gehören ein Büro, Musik- und Werkstattraum dazu. Ansonsten sind sie ähnlich organisiert und unterscheiden sich vor allem darin, wie der Wohnraum mit Essplatz und Küche von den übrigen Zimmern abgetrennt ist. Es gibt zwei Zugänge, deren Stiegenhäuser im Untergeschoss verbunden sind. Das Familienwohnhaus ist im Passivhausstandard ausgeführt. Was zunächst wie ein Tragskelett wirkt, reduziert sich auf eine gliedernde Struktur, ein silbernes Architekturgerüst, das die Familie zusammenhält.

Gohm Hiessberger Architekten Familienwohnhaus Grundriss Schnitt
Schnitt

 

Pläne und Grundrisse Familienwohnhaus:

Architekt: Gohm & Hiessberger Architekten

Das Projekt weist eine (…) Raumgestaltung auf, die alle Einheiten mit gleich hoher Wohnqualität ausstattet und doch individuelle Räume zulässt.


Gebäudedaten:

  • Standort: Mauren (Liechtenstein)
  • Grundstücksgröße: 3.113 m2
  • Wohnfläche: 1.040 m²
  • Zusätzliche Nutzfläche: 600 m²
  • Anzahl der Bewohner: 4 Wohneinheiten für 3 Geschwister und Eltern,
  • 6 Wohneinheiten zur Vermietung
  • Bauweise: vorgefertigte Holz­elemente
  • Primärenergiebedarf B: 28 kWh/m2a, C: 25 kWh/m2a
  • Baukosten gesamt: ca. 4 Mio. Euro
  • Baukosten je m² Wohn-und Nutz­fläche: 2.439 Euro
  • Fertigstellung: 08/2012


Fotos:

Bruno Klomfar, Wien
Christian Grass, Dornbirn

Dieses Haus ist erschienen in: „Häuser des Jahres 2013„, Callwey Verlag.