Holzhaus mit Hof

von Kühnlein Architektur.

Kühnlein Architektur Holzhaus mit Hof Lageplan
Lageplan

Highlight: windgeschützter Hof

Ein Wohngebäude, das sich an den Umrissen der umgebenden bäuerlichen Besiedlung zu orientieren scheint. Es imitiert allerdings nicht romantisch Gehöftformen, sondern übersetzt sie in eine abstrakte Skulptur. Nach außen verschließt sich die Architektur hinter einer Schraffur aus unbehandelten Lärchenleisten und gibt keinen Anhaltspunkt für ihre Dimension, erst zur Südflanke und zum rückwärtigen, windgeschützten Hof zeigt sich die Fassade mit einer großzügigen Befensterung. Der Grundriss bildet in etwa eine H-Form. Über die Öffnung zwischen den beiden Schenkeln zur Straße setzt sich die Lattenfassade fort, sie schließt einen Vorhof.

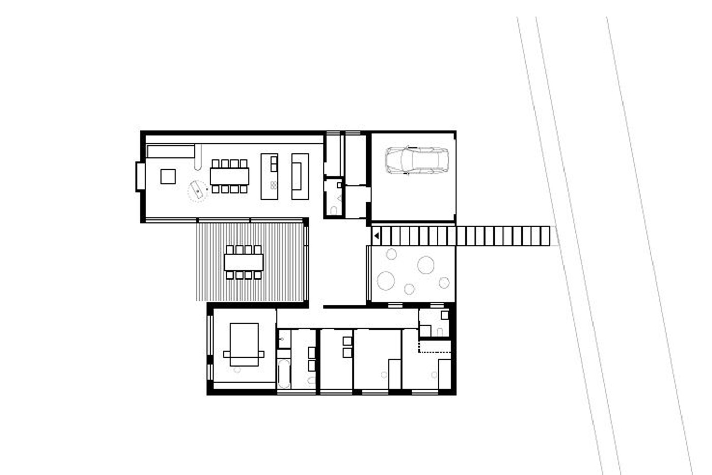
Kühnlein Architektur Holzhaus Grundriss
Grundriss

Außen Holz, innen Kupfer

Dahinter liegt ein flach gedeckter Mittelbau, der zwischen den beiden spitzgiebeligen Haupthäusern eine einladende Diele bildet. Hier teilt sich der barrierefreie, eingeschossige Grundriss in zwei funktionale Hälften. Nach einem Versorgungsblock erreicht man in dem längeren Trakt einen einzigen bis unter den First reichenden Großraum, in dessen Mitte zwischen Küchentresen und Wohnpolstern der Esstisch steht. Mit den aus dem Deckenscheitel stoßenden Kupferstäben der Leuchten erinnert er ein wenig an eine Kapelle. Auch alle Schalter und Steckdosen in diesem Holzhaus sind aus Kupferblöcken gefräst; diese zusammen mit dem Bauherrn entwickelten Installationen verlaufen sichtbar auf den raumprägenden Brettsperrholzelementen. Sie sind damit gut zugänglich, auf Schlitze und Bohrungen konnte verzichtet werden. Das Mobiliar setzt die geradlinige Sperrholzkonstruktion der Architektur fort. Zur anderen Hofseite folgt quer hinter einem schmalen Durchgang ein Flur, an den sich Elternzimmer, Hauswirtschaftsraum, Kinderzimmer und Bäder reihen.

Kühnlein Architektur Schnitt durchs Holzhaus
Schnitt

Flächenkollektoren sorgen für Wärme

Die Kinder erhalten jeweils eine Galerie unter dem hohen Dach. Eine wirtschaftliche Konstruktion war mit 10-12 Zentimeter dicken Fichtensperrholztafeln möglich, sie spannen in dem 16 Meter langen Wohnen-Essen-Kochen-Bereich ohne Pfetten, Sparren oder Stahlbauteile das Steildach auf. Durch die schwimmende Gründung einer Stahlbetonplatte auf Glasschaumschotter konnte auf Fundamente und Frostriegel verzichtet werden. Flächenkollektoren versorgen die Fußboden- und Wandheizungen, ein drehbarer Holzofen im Wohnbereich spendet Behaglichkeit im Holzhaus.

 

Pläne und Grundrisse Holzhaus:


Architekt: Kühnlein Architektur

Ein Haus (…) mit ehrlichen Materialien, außen- und innenräumlichen Qualitäten, eingepasst in den dörflichen Kontext.


Gebäudedaten:

  • Standort: Neumarkt in der Oberpfalz
  • Anzahl der Bewohner: 4
  • Wohnfläche: 210 m²
  • Grundstücksgröße: 1.703 m²
  • Zusätzliche Nutzfläche: 60 m2
  • Bauweise: Massivholzbauweise
  • Baukosten: 500.000 EUR
  • Heizwärmebedarf: 47,21 kWh/m2a
  • Primärenergiebedarf: 43,36 kWh/m2a
  • Energiestandard: KfW 55
  • Fertigstellung: 10/2014


Fotos:

Erich Spahn, Regensburg

Dieses Haus ist erschienen in: “Häuser des Jahres 2015”, Callwey Verlag.