Leben am Hang

von miss_vdr architektur.

Wohnen im zeitgemäßen Massivhaus

Dieses Massivhaus aus Holz und Beton ist in mehreren Epochen zu Hause. Von außen wirkt es mit  seiner verwitternden Trapezblechfassade und seiner wie aus einem Baukasten aufgestellten Kubatur wie die funktionalistischen Gebäude, mit denen die Moderne mit dem Wohnen experimentierte. Aber dann entdeckt man die Dreifachverglasung der großen Fensterfronten und in den Innenräumen die sichtbar belassenen tragenden Kreuzlagenhölzer der Decken sowie den rohen Estrich auf dem Boden. Jetzt versteht man, dass hier ein sehr zeitgemäßes Haus entstanden ist.

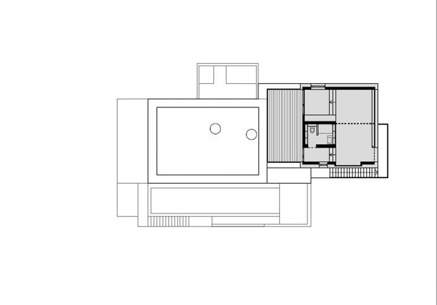
Miss vdr Leben am Hang Grundriss Erdgeschoss
Grundriss Erdgeschoss
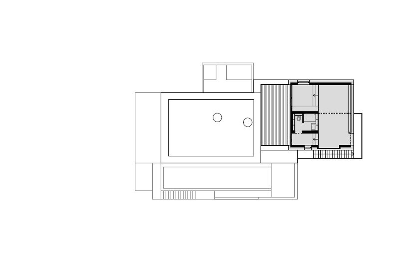
Miss vdr Leben am Hang Grundriss Hanggeschoss
Grundriss Hanggeschoss

Perfekt angepasst an Topografie des Orts

Die wie große Schubladen verschobenen, in den Freiraum greifenden drei Ebenen folgen dem flach geneigten Grundstück. Den Architektinnen ging es darum, die Landschaft für ein „Leben am Hang“ in den höhenversetzten Räumen in das Haus einzubauen. Die Bewohner bewegen sich also täglich spürbar auf der unverwechselbaren Topografie des Orts, wozu auch die definierten Sichtbezüge in Richtung Bodensee beitragen. Dazu gehört auch, dass das Haus nicht eindeutig im Garten endet, sondern sich mit Terrassen, Treppen, Stegen, Stellagen und Betonscheiben schließlich einem trogartigen Pool nach draußen fortsetzt.

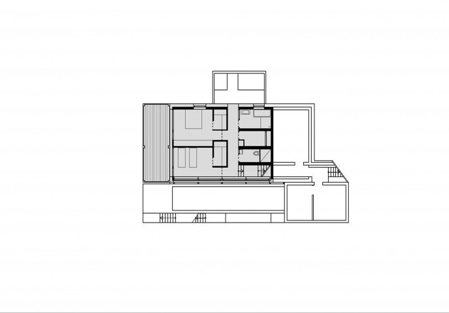
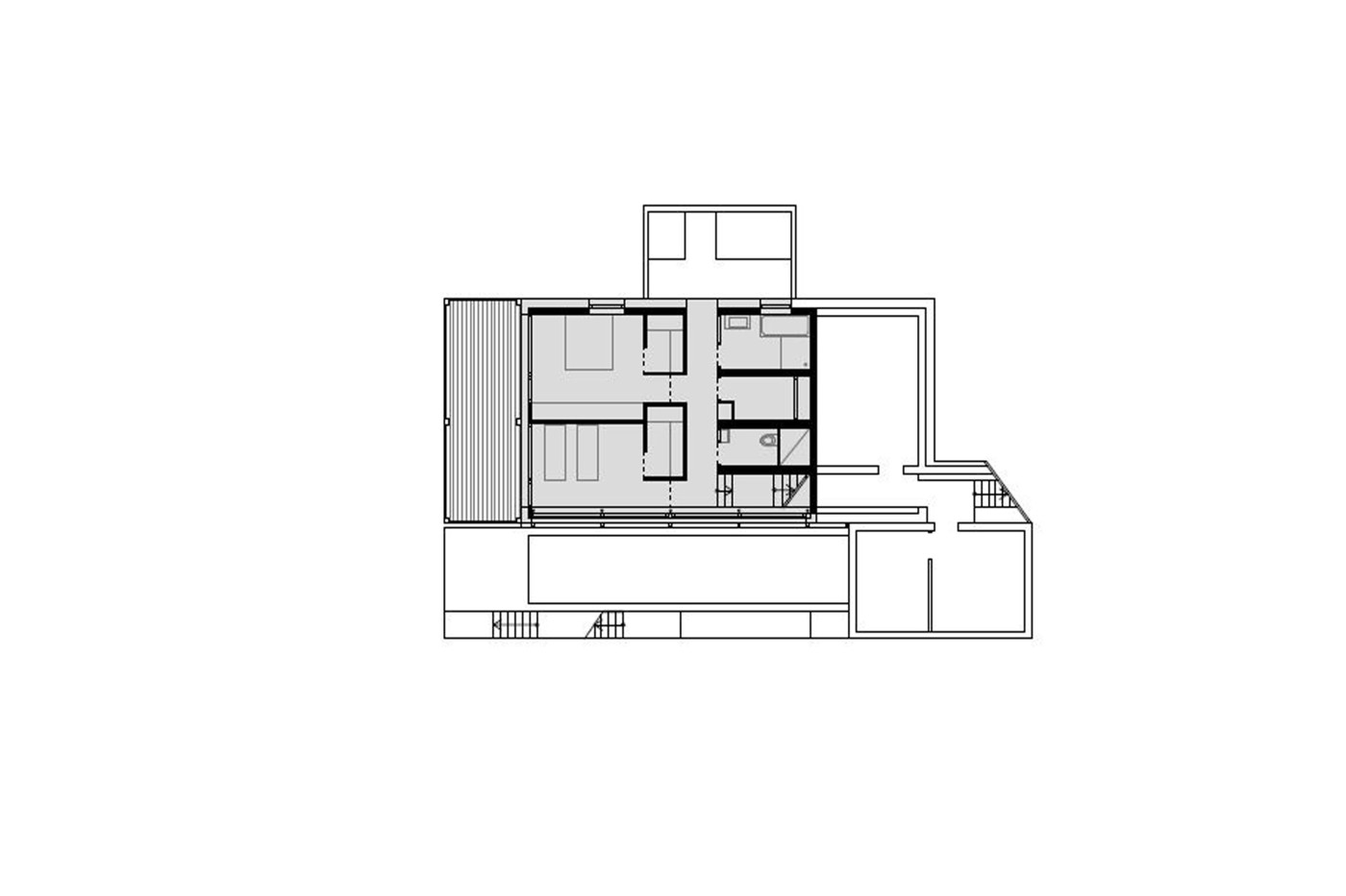
Miss vdr Leben am Hang Grundriss Obergeschoss
Grundriss Obergeschoss
Miss vdr Leben am Hang Laengsschnitt
Längsschnitt

Faltwände für schnelle Änderungen im Low Budget Haus

Die aussteifenden Betonkerne werden als Nasszellen und Stauräume genutzt, im Hanggeschoss lässt sich damit bergseitig die gesamte Technik unterbringen, die von Solarkollektoren unterstützte Wärmepumpe und Aggregate für die kontrollierte Be- und Entlüftung. Die technische Anmutung der Fassade setzt sich im Innern fort. Hier zeigen blechbeplankte Faltwände, dass das Wohnen kein irreversibler Zustand ist, sondern das Haus auch kurzfristig auf sich verändernde Lebensumstände und  Familienstrukturen reagieren kann. Aktuell sind im Hanggeschoss die Schlafräume mit anschließender Sauna eingerichtet, im Erdgeschoss liegen ein offener Wohnraum und zwei Arbeits- oder Kinderzimmer, die sich eine Nasszellenbox teilen, im Obergeschoss erreicht der Besucher über einen eigenen Eingang eine Einliegerwohnung.

Miss vdr Leben am Hang Querschnitt
Querschnitt

 

Pläne und Grundrisse:

 

Architekten: miss_vdr

Der metallische Baukörper (…) ist natürlicher Verwitterung ausgesetzt. Die Veränderung der Oberfläche durch die Einwirkung der Elemente ist erwünscht. So fügt er sich in seine Umgebung ein

 

Gebäudedaten:

  • Standort: Sulz (A)
  • Wohnfläche: 250 m²
  • Grundstücksgröße: 1.613 m²
  • Zusätzliche Nutzfläche: 20 m²
  • Bauweise: Massivhaus-Bauweise
  • Fertigstellung: 01/2013

 

Fotos:

Severin Wurning Photography, Wien

Dieses Haus ist erschienen in: “Häuser des Jahres 2014“, Callwey Verlag.