Mehrgenerationen-Villa am See

von Tillmann Wagner Architekten BDA.

Tillmann Wagner Architekten Mehrgenerationen-Villa am See Lageplan
Lageplan

Weder aristrokratisch noch postmodern

Nur selten ergibt sich die Aufgabe, für eine Großfamilie zu bauen. Doch braucht sich ein Haus für drei Generationen weder an aristrokratischen Residenzen noch an pusseligen, postmodernen Stadtvillen zu orientieren. Das Leitmotiv für das Haus auf dem schmalen Grundstück am Krampnitzsee bei Potsdam fand der Architekt in der Kunst: den bildhaften, räumlichen und kontemplativen Bezug zum See und seinen „Witterungsschleiern“ (August Endell), materialisiert in einem Baukörper, zu dem ein Bild Alexander Rodtschenkos („Die Brandung“) angeregt hat.

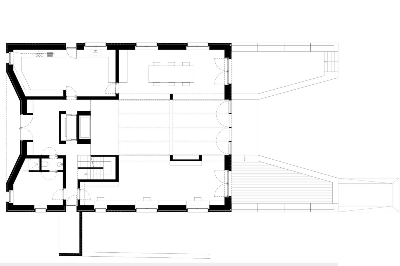
Tillmann Wagner Architekten Mehrgenerationen-Villa am See Grundriss Untergeschoss
Grundriss Untergeschoss

Hauptsache Helligkeit

Hieraus ergab sich die zum Ufer führende große „Haustreppe“. Ihre Vormauerschale besteht aus weiß überkalkten, hellen Handstrichziegeln, die in einem leicht profilierten Muster vermauert sind und von Weitem wie ein rau rechts gestrickter Pullover wirken. Die Verfugung und die Betonwerksteine für Abdeckungen, Stürze und Bänke ergeben eine Monochromie, die die Atmosphäre des weißlichen Seedunstes mit der Gebäudehülle interpretiert. Auch im Innenraum bleibt man im Hellen: weiß geseifte Eichendielen, Travertin und hell gespachtelte Oberflächen tragen die Aura des Orts.

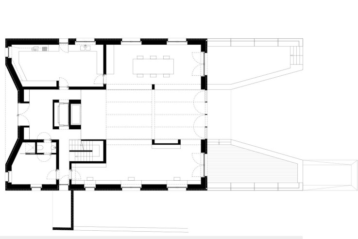
Tillmann Wagner Architekten Mehrgenerationen-Villa am See Grundriss Erdgeschoss
Grundriss Erdgeschoss

Überall: Blick auf den See

Zur Straße hin empfängt das hoch aufragende Beäude mit einem trichterförmigen Haupteingang und einer zweigeschossigen Loggia. Von hier treppt es sich seewärts ab, so dass aus allen Räumen ein Ausblick auf das Wasser möglich ist. Jedes Apartment verfügt außerdem über eine eigene Terrasse. Zwischen den beiden ausgreifenden Flanken liegt im Erdgeschoss der gemeinschaftlich genutzte, überglaste Gartensaal als Mitte des Hauses. Hier schließen sich Bibliothek und Esszimmer an, die sich ebenfalls zu großen Gartenterrassen öffnen. Eine Wiesenrampe führt direkt zum See.

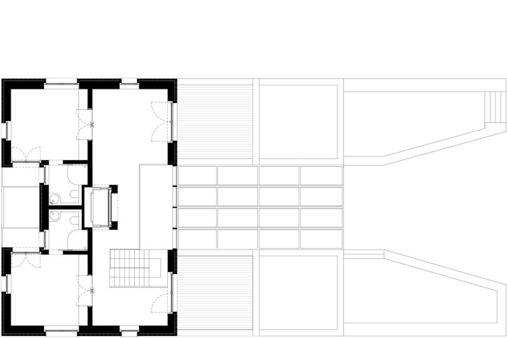
Tillmann Wagner Architekten Mehrgenerationen-Villa am See Grundriss erstes Obergeschoss
Grundriss 1. Obergeschoss

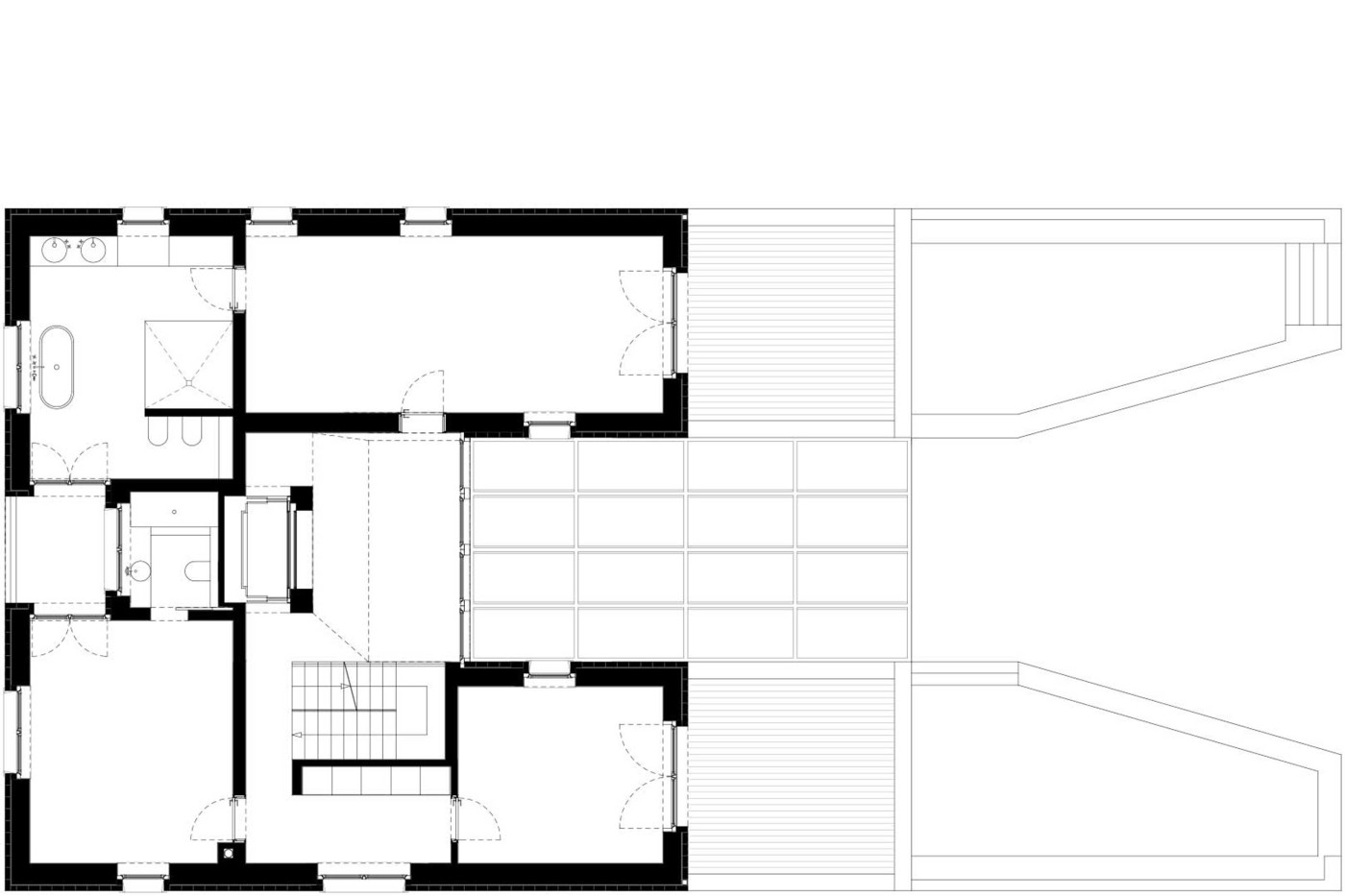
Tillmann Wagner Architekten Mehrgenerationen-Villa am See Grundriss zweites Obergeschoss
Grundriss 2. Obergeschoss

Wellnessbereich mit See-Blick

Über den Schlafräumen im zweiten Obergeschoss folgt mit einer Skylobby ein eher intimer Gemeinschaftsbereich. Im Untergeschoss ist ein großzügiger Wellnessbereich die Attraktion, darin ein Pool. Seine konische Form erlaubt mit einer Gegenstromanlage das Schwimmen mit Blick auf den See

Tillmann Wagner Architekten Mehrgenerationen-Villa am See Schnitt
Schnitt

 

Pläne und Grundrisse Mehrgenerationen-Villa:

 

Architekt: Tillmann Wagner Architekten BDA

Leitmotiv der Villa auf dem schmalen Seegrundstück ist ihr intensiver, räumlicher und kontemplativer Bezug zum See (…)

 

Gebäudedaten:

  • Standort: Potsdam
  • Grundstücksgröße: 2.350 m²
  • Wohnfläche: 514 m²
  • Zusätzliche Nutzfläche: 262 m²
  • Anzahl der Bewohner: 8
  • Bauweise: massiv
  • Heizwärmebedarf: 46,1 kWh/m²a
  • Primärenergiebedarf: 39,4 kWh/m²a
  • Baukosten: 1,2 Mio. Euro
  • Baukosten je m² Wohn- und Nutzfläche: 1.546 Euro
  • Fertigstellung: 2009

 

Fotos:

Büro Tillman Wagner Architekten

Dieses Haus ist erschienen in: “Häuser des Jahres 2011”, Callwey Verlag.