Puristisches Penthouse

von Heym Göggel Heym Architekten.

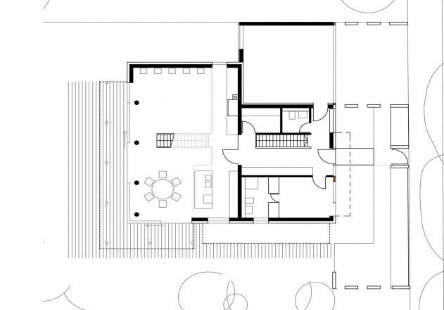
Heym Goeggel Heym Architekten Lageplan
Lageplan

Ein Penthouse unter Kastanien

Das Haus steht in einem älteren gewachsenen Stadtviertel in München-Berg am Laim. Es ersetzt ein eingeschossiges Massivhaus mit Walmdach von 1962. Die Umgebung ist geprägt von einer Kastanienallee und den Bäumen auf dem großzügigen Gartengrundstück. Darauf reagiert der Entwurf mit seinen im Wohnbereich über zwei Geschosse reichenden Glasfassaden, selbst aus dem zurückgesetzten Penthouse lassen sich die Baumkronen noch erleben.

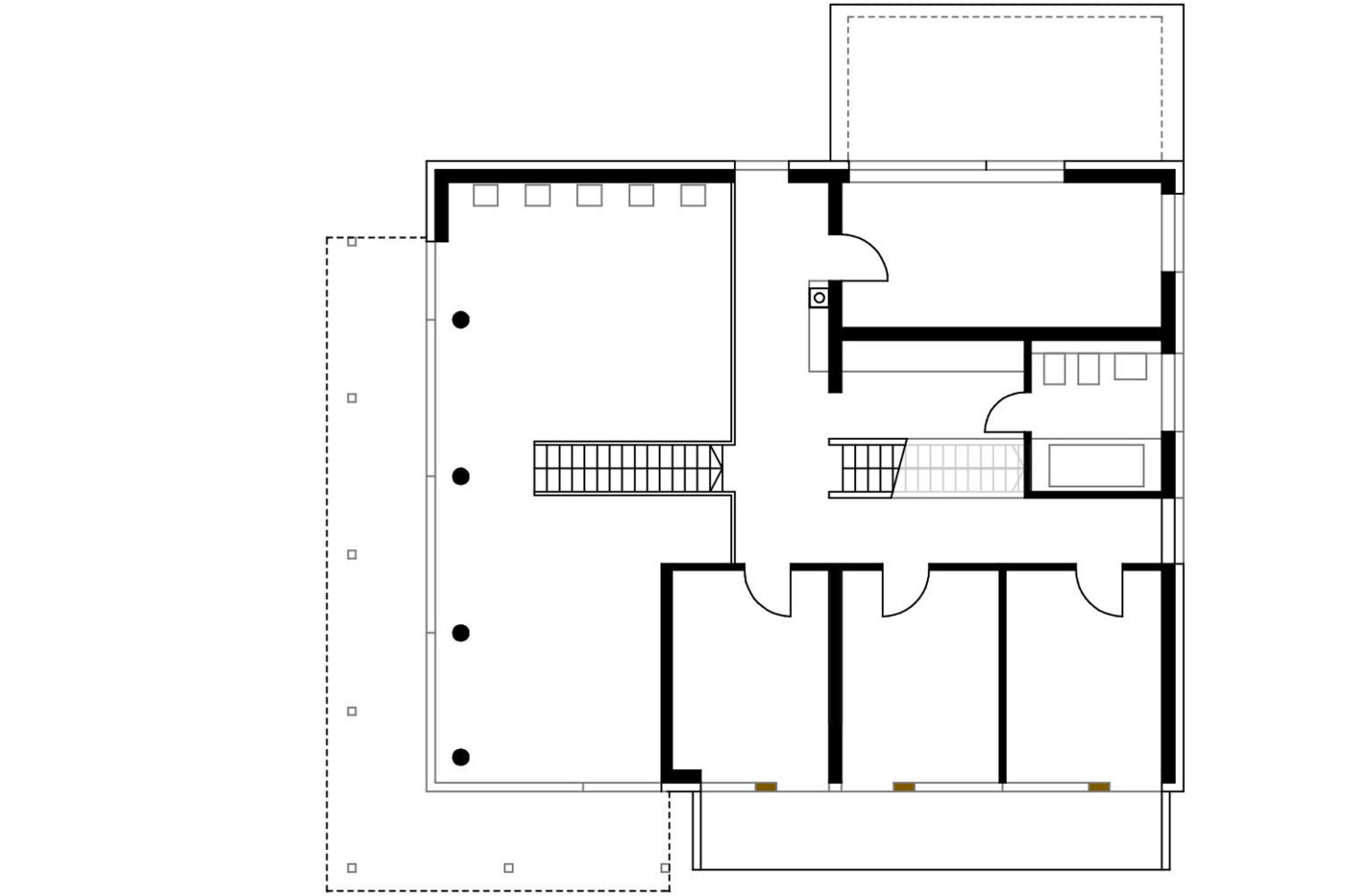
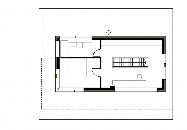
Heym Goeggel Heym Architekten Grundriss Untergeschoss
Grundriss Untergeschoss

Angenehme Material-Reduzierung

In Anlehnung an das gründerzeitliche Nachbarhaus sind die geschlossenen Wandflächen weiß verputzt. Dazu kontrastiert die Verkleidung aus dunkelbraun eloxierten Aluminium-Lamellen, die als zweites
Motiv die zurückgesetzte Penthouse-Fassade, die Schiebeläden, Garage, Gartentor und Müllboxen bestimmen. Materialien und Details sind damit angenehm reduziert. Zwischen der raumhohen Verglasung im Penthouse lassen sich schmale Klappflügel aus Eichenholz öffnen. Als Sonnenschutz dienen die auskragenden Dachüberstände, die die kastenartige Kubatur des Hauses auflösen.

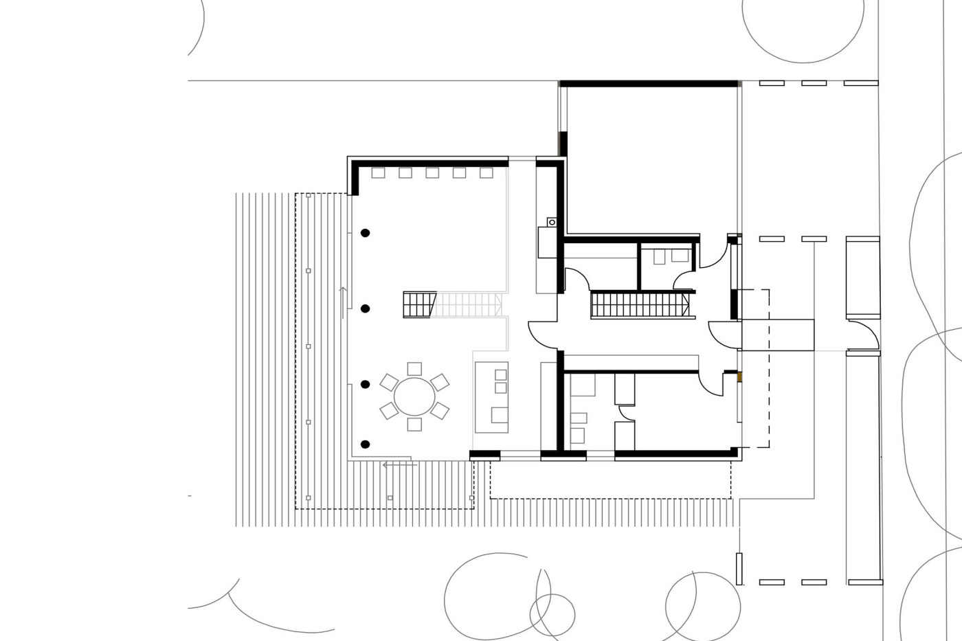
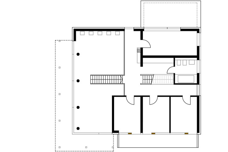
Heym Goeggel Heym Architekten Grundriss Erdgeschoss
Grundriss Erdgeschoss

Im Inneren: klare Hierarchie

Die Funktionen folgen einer klaren Hierarchie: Im Erdgeschoss liegt der Wohnbereich, darüber die Kinderzimmer, im Dachgeschoss die Räume der Eltern. Diese Trennung wird durch die offene, in zwei Staffeln die Ebenen verbindende „Himmelsleiter“ aufgehoben, sie lädt ein, das Raumkontinuum zu erleben. In der zweigeschossigen Wohnhalle teilt die massive Treppenskulptur Küchenblock und Essbereich von der Kamingruppe nebst Konzertflügel, weiter nach oben ist sie als dunkle holzverkleidete Schachttreppe fortgeführt, um den privateren Charakter zu betonen.

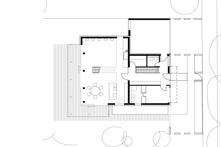
Heym Goeggel Heym Architekten Grundriss Obergeschoss
Grundriss Obergeschoss

Puristische Eleganz im Erdgeschoss

Die Wohnhalle wird von schlanken betonierten Rundstützen getragen, aus Beton sind auch Treppe und Kaminbank. Dazu passt der fugenlose Zementspachtelestrich. Grifflose Einbaumöbel aus lackierten MDF-Tafeln säumen die Räume mit einer puristischen Eleganz. Dem entspricht das Lichtkonzept, das unauffällig Helligkeit gibt und nicht mit Lampen dekoriert. Ein großes Holzterrassendeck und dunkle Stahlstützen begleiten vom Haus in den Garten.

 

Pläne und Grundrisse Penthouse:

 

Architekt: Heym Göggel Heym Architekten

Die Treppen liegen in einer horizontalen Achse. Über drei Geschosse entsteht so ein vertikales Raumkontinuum.

 

Gebäudedaten:

  • Standort: München
  • Grundstücksgröße: 1.080 m2
  • Wohnfläche: 280 m2
  • Zusätzliche Nutzfläche: 114 m2
  • Anzahl der Bewohner: 5
  • Bauweise: massiv (Beton)
  • Heizwärmebedarf: 56,52 kWh/m2a
  • Primärenergiebedarf: 61,67 kWh/m2a
  • Baukosten: 1.220.000 Euro
  • Baukosten je m2 Wohn- und Nutzfläche: 3.100
  • Fertigstellung: 2009

 

Fotos:

Christoph Seeberger, München

Dieses Haus ist erschienen in: “Häuser des Jahres 2011”, Callwey Verlag.