Scheune und Arche

von Thomas Kröger.

Mitten im Naherholungsgebiet

Pinnow/Gerswalde liegt nordöstlich von Berlin auf halbem Weg zur Ostsee. Die Karte zeigt ein flaches Seenland, genau die nahe Gegend, in der Städter gern das Wochenende verbringen oder Urlaub machen. Hier hat ein Architekt ein Ferienhaus gebaut, das wegen seiner Bitumenschindeldeckung als „das schwarze Haus“ in die Reisekataloge Eingang gefunden hat.

Thomas Kroeger Scheune und Arche Lageplan
Lageplan
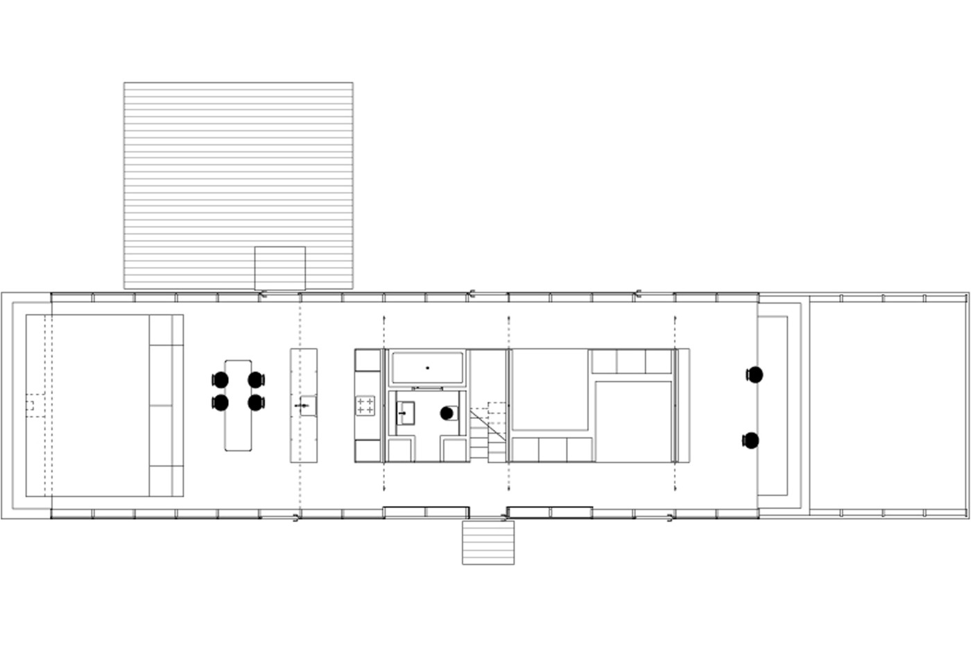
Thomas Kroeger Scheune und Arche Grundriss EG
Grundriss Erdgeschoss

Typologie der Siedlungshäuser

Mit seinen breit verglasten Längsseiten richtet es sich zur Heidelandschaft, ansonsten folgt es typologisch den umliegenden Siedlungshäusern; es könnte sich auch um eine schmale Scheune handeln, die auf einem Sockel, vor der feuchten Wiese geschützt, über der Landschaft zu schweben scheint. Der gedämmte hinterlüftete Mauerwerksbau ist mit überlappenden, ungesäumten Douglasie-Brettern verkleidet. Die Holzständer der Glasfassade sind innen schwarz gebeizt, ein Gussasphaltboden breitet sich als neutrales Feld im Erdgeschoss aus. Zur einen Giebelseite liegt vor dem Kamin eine abgesenkte Sitzgrube. Die weitere ortsfeste Ausstattung – mit Treppe, Bad, Küchenblock und Bettkojen – ist als kompakte Box in die Raummitte eingestellt, sodass man auf beiden Seiten entlanggehen kann – sofern Schiebetüren diesen umlaufenden Korridor zum Zwecke der Privatheit nicht gerade abtrennen. Am anderen Ende ist eine Bibliothek eingerichtet. Diese Räumlichkeiten an den Giebeln reichen bis unter den Dachzwickel.

Thomas Kroeger Scheune und Arche Grundriss OG
Grundriss Obergeschoss
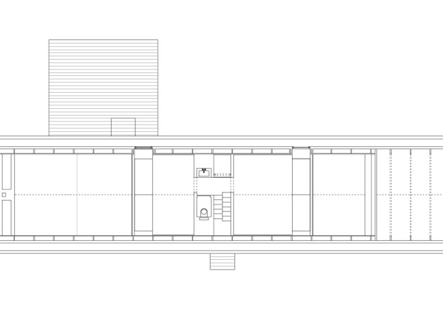
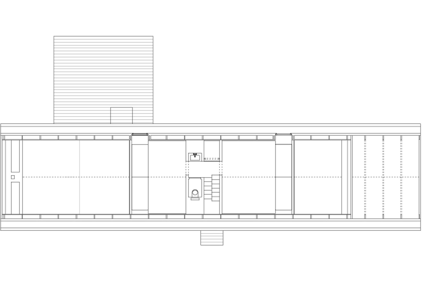
Thomas Kroeger Scheune und Arche Schnitt
Schnitt

Neue Raumempfindungen ausprobieren

Über dem eingestellten Funktionselement liegt das Obergeschoss mit weiteren Schlafzimmern und einem zweiten Bad. Aufgesetzte Gauben belichten diesen mittleren Dachraum. Beheizt wird das Haus mit einer Gastherme. Der Grundriss gibt den Ferienbewohnern Gelegenheit, neue Umgebungen und Raumempfindungen auszuprobieren: kuschelige Nähe, intime Geborgenheit, praktisches Zusammenfinden. Wer möchte davon nichts mit nach Hause nehmen! Wolfgang Bachmann: Man hätte viel falsch machen können, wenn man der einfachen Typologie eines Siedlungshauses folgt. Je weniger Elemente ein Gebäude erfordert, umso gravierender ist die Entscheidung für die notwendigen. Hier gefällt die eindeutige Alternative für große Öffnungen und geschlossene Flächen.

Ferien in der Wohnscheune

Aber natürlich ist der Ausblick in die Schorfheide-Landschaft die Hauptsache. Der lang gestreckte Haus-Keil mit dem schwarzen Schindeldach hat wie eine Arche, leicht abgehoben, auf dem 5.000 m2 großen Grundstück festgemacht. Der Kamin gibt ihm eine Richtung, dort am Giebel liegt das Zentrum, der in den Boden vertiefte Wohnraum, der gleichzeitig bis unter den First reicht. Auch die Gauben sind als eigenständige Baukörper über Treppenaufgang und Schlafkojen angelegt, sie demonstrieren Stehhöhe im spitzen Dreieck des Dachgeschosses, dessen Boden auf Traufhöhe liegt. Der Grundriss ist kompakt organisiert wie auf einer Yacht, dennoch bleibt Raum, um hier mit zehn Personen zu wohnen – und zwar anders als in einem konventionellen Stadthaus: Die Architektur schenkt das Erlebnis, den Aufenthalt neu zu organisieren – sie verheißt Ferien.

 

Pläne und Grundrisse Holzhaus:

 

Architekten: Thomas Kröger 

Die einfache, an die ortsspezifische Formensprache angepasste Hausform wird
in ihrem Innern zu einem Pavillon, der den Blick in die umgebende Landschaft freigibt.

Gebäudedaten:

  • Standort: Pinnow
  • Wohnfläche: 128 m²
  • Grundstücksgröße: 5.000 m²
  • Zusätzliche Nutzfläche: 26 m²
  • Bauweise: Mischkonstruktion Holz/Mauerwerk
  • Fertigstellung: 01/2012

Fotos:

Ina Steiner, Berlin

Dieses Haus ist erschienen in: „Häuser des Jahres 2014“, Callwey Verlag.