Sichtbetonhaus

Der Bauherr wünschte sich offene Raumabfolgen.
Es entstand ein winkelförmiges Haus, innen wie außen nahezu vollständig in Sichtbeton ausgebildet.

Maio Maio Architekten Sichtbetonhaus Lageplan
Lageplan

Das Münchner Architektenpaar maio & maio architekten nähert sich bei der Planung ihrer Einfamilienhäuser den Bauherren in sehr privater Weise und mit größtmöglicher Empathie: „Für sie möchten wir Räume gestalten, die von etwas mehr zu erzählen wissen als von reiner Funktionalität.“ Wir haben die Architekten zu ihrem Projekt Sichtbetonhaus befragt, noch mehr Informationen zu maio & maio gibt es in unserer Rubrik Architekten-Profile.

 1. Was war das Besondere an der Bauaufgabe?

Im Allgemeinen vor allem eine verhältnismäßig komplexe und daher besonders reizvolle Aufgabenstellung, bei der wir gestalterisch große Freiheiten genossen. Konstruktiv war die Vorliebe unserer Bauherren für ein Sichtbetonhaus sowie deren Bereitschaft, einen konsequenten Einsatz des Materials innen wie außen zuzulassen. Wir haben dann versucht, den Vorgang des Gießens als Maßanfertigung zu interpretieren und seine hohe handwerkliche Qualität durch Präzision zu unterstreichen. So sind etwa die Wandoberflächen und ihre technisch unvermeidliche Gliederung durch Schalungsfugen bewusst gestaltet und auf die Ansichten abgestimmt. Daraus ergab sich beim Entwurfsprozess eine permanente Wechselwirkung zwischen den funktionalen Erfordernissen an die Räume und der Gestaltung der Flächen. Die Sichtbetontechnologie verzeiht keine Fehler …
Dazu kam der Wunsch der Bauherren, das Haus bis ins kleinste Detail durchzuarbeiten: Einbaulösungen wurden bis in die Einteilung einzelner Schubfächer entworfen, die Außenräume in den Grundriss eingebunden. Tatsächlich herrscht bei diesem Projekt ein ganzheitlicher Ansatz und Anspruch.

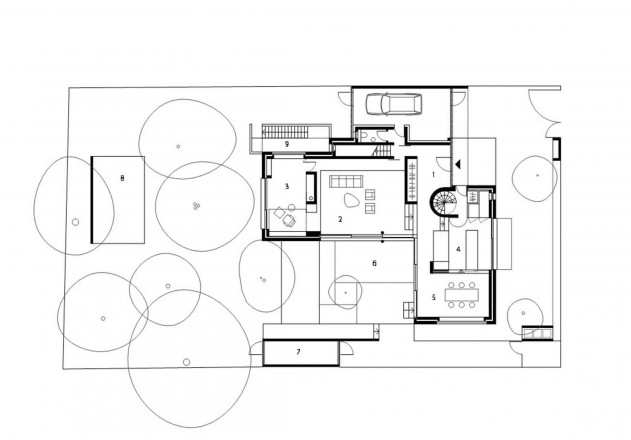
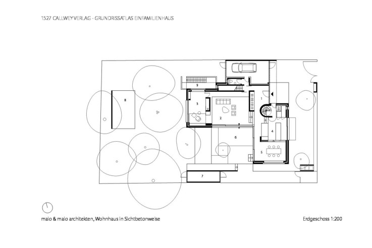
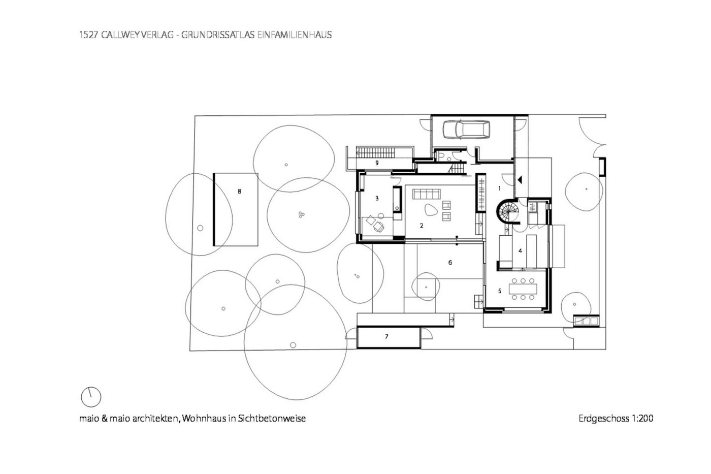
Maio Maio Architekten Betonskulptur nach Mass Grundriss Erdgeschoss
EG: 1-Zugang, 2-Wohnen, 3-Lesen, 4-Kochen, 5-Essen, 6-Wohnhof, 7 Schuppen, 9-Lichthof Untergeschoss

2. Wie haben die Bauherren Ihr Büro gefunden?

Die Bauherren stammen aus unserem privaten Umfeld. Die Empfehlungen früherer Bauherren bestätigten sie dann in der Wahl unseres Büros.

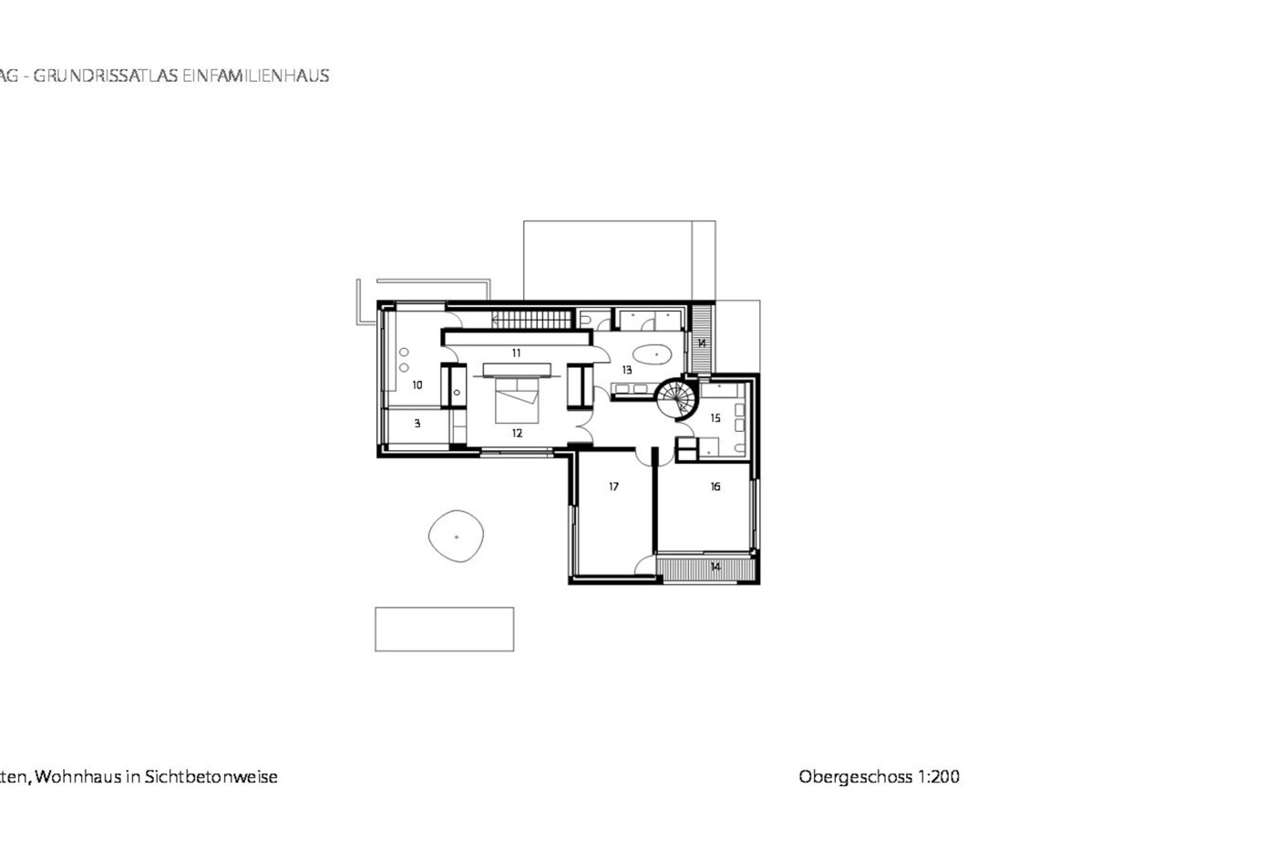
Maio Maio Architekten Betonskulptur nach Mass Grundriss Obergeschoss
OG: 3-Lesen, 10-Arbeiten, 1-Ankleiden, 12-Schlafen, 13-Bad Eltern, 14-Patio, 15-Bad Kinder, 11-Ankleiden, 16-Kind 1, 17-Kind 2
Maio Maio Architekten Betonskulptur nach Mass Grundriss Terrassengeschoss
Terrassengeschoss: 14-Patio, 18-Studio, 19-Dachterasse West, 20-Dachterasse Süd

3. Welche Inspiration hat zum Sichtbetonhaus geführt?

Am Anfang stehen immer die Wünsche unserer Bauherren – weniger deren konkrete Vorstellungen als vielmehr der Subtext, also ihre „Erzählung vom Wohnen“. Hieraus versuchen wir unsere Leitmotive zu entwickeln. In diesem Fall erwuchs daraus die Suche nach einem raffinierten ästhetischen Rahmen für ein komplexes und geschmeidiges Ineinander funktionaler Abläufe. Trotz des auf den ersten Blick nüchternen Erscheinungsbildes inspirierte uns die inszenierte Noblesse repräsentativer historischer Wohnformen, etwa des 18. Jahrhunderts. Vorbilder der klassischen Moderne – insbesondere der amerikanischen – halfen uns, die Starrheit des historischen Protokolls aufzubrechen. Der Rest ist intensive, unermüdliche Entwurfsarbeit!

Maio Maio Architekten Betonskulptur nach Mass Grundriss Untergeschoss
UG: 9-Lichthof, 21-Hobbyraum, 22-Gästezimmer, 23-Waschküche, 24-Haustechnik, 25-Sport, 26-Werkstatt, 27-Vorräte

4. Auf welche Zwänge musste der Entwurf reagieren?

Das städtebauliche Umfeld und die Mikrolage im Wohnquartier weisen keine nennenswerten Besonderheiten auf. Allerdings befindet sich das Viertel im Umbruch: Kleine Einfamilienhäuser weichen zunehmend flächenmaximierten Villen und Mehrfamilienhäusern. Uns lag daran, durch geschickte Verteilung des Bauvolumens auf dem Grundstück den ursprünglichen Maßstab zu wahren und den Baukörper trotz seiner Abmessungen in seiner Erscheinung zurückzunehmen. Und obwohl sich unsere Absicht mit den bauplanungsrechtlichen Zielen deckte, hat uns die Verteilung der Baumassen intensive Diskussionen mit der Genehmigungsbehörde beschert …

Maio Maio Architekten Betonskulptur nach Mass Grundriss Einfamilienhaus Schnitt
Schnitt

5. Wie verlief die Abstimmung mit den Bauherren?

Wir animieren unsere Bauherren, zu erzählen, uns konkrete wie abstrakte Bilder zu vermitteln, in denen sich ihre Vorstellung von Wohnen wiederfindet. Wir nennen diese Phase scherzhaft „Wunschkonzert“. Hieran haben wir bei diesem Projekt die Ausarbeitung drei sehr unterschiedlicher Entwurfskonzepte angeschlossen, schematische Grundrisse, Modellstudien und Perspektivskizzen, die wir nach wie vor gerne mit der Hand anfertigen. Der Favorit wurde anschließend bei regelmäßig stattfindenden Terminen besprochen, korrigiert, ergänzt und so zu einem abschließenden Vorentwurf verdichtet. Anders als beim manchmal bemühten Bild der Serviettenskizze begreifen wir den Vorentwurf als die entscheidende Entwurfsphase, in der alle Weichen gestellt werden. Zeit und Ausdauer sind uns daher sehr wichtig! Eine weitere Feinabstimmung erfolgte in unterschiedlichem Detaillierungsgrad bis weit in die Ausführungsplanung hinein. Die Wünsche der Bauherren nehmen wir ernst – wir hierarchisieren allerdings und, wenn nötig, stellen sie im Interesse des Ganzen auch mal in Frage oder interpretieren sie anders. Diesmal ergab sich dabei ein besonders konstruktiver Kommunikationsprozess: Sicher ein Verdienst der Bauherren, die ihren Part mit der gleichen Intensität wahrnahmen wie wir.

Pläne und Grundrisse Sichtbetonhaus:

Gebäudedaten Sichtbetonhaus:

  • Standort: Oberbayern
  • Anzahl der Bewohner: 4
  • Wohnfläche: 270 m2
  • Grundstücksgröße: 920 m2
  • Bauweise: massiv, Sichtbeton
  • Fertigstellung: 2013

Fotos Sichtbetonhaus:

Markus Dobmeier, München
Uwe Lukas Schneider, München
Hubertus Hamm, München

+++

Das Sichtbetonhaus ist erschienen im Buch: “GrundrissAtlas Einfamilienhaus”, Callwey Verlag.

Zum Architekten-Profil von maio & maio architekten.

Weitere Architekten-Profile entdecken.

Weitere Architektenhäuser entdecken.