Alter Bestand behutsam ergänzt: Roedig.Schop Architekten schufen einen hellen, luftigen Wohnraum – und erhielten dabei die Patina des charmanten Bestands.
Die alte Ziegelfassade zum Hof wurde behutsam saniert und von innen gedämmt, um außen die historische Patina zu erhalten. Anstelle des ehemaligen Lastenaufzugs markiert ein zweigeschossiges Glaselement den neuen Eingang. Dieses Portal und das Lichtband wurden als neue Ergänzungen mit einer dunkelgrauen Beschichtung deutlich vom Bestand abgesetzt.
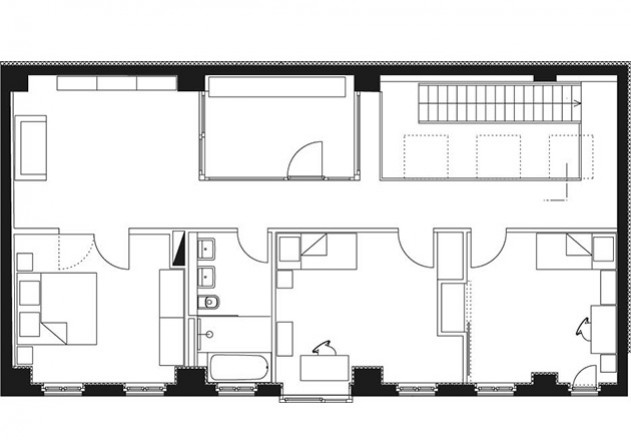
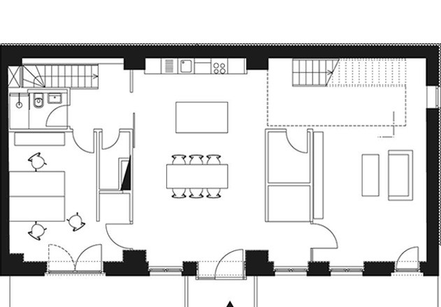
Für die Durchlüftung sorgt ein im Obergeschoss ausgespartes Atrium, das zugleich einen intimen Außenraum bietet. Spuren der Zeit sind auch im Innenraum erhalten. Die gefliesten Wände wurden gesäubert, andere gespachtelt oder gestrichen. Der geschliffene Estrich korrespondiert mit dem industriellen Charakter des alten Gewerbebaus.
Wohn-Loft in ehemaliger Remise
Auf 200 Quadratmeter Wohnfläche bietet die ehemalige Remise im Erdgeschoss einen offenen Grundriss für Wohnküche, Wohnzimmer und einen Arbeitsraum, im Obergeschoss folgen drei abgeschlossene Zimmer neben einer Art Lesegalerie und dem erwähnten Atrium. Im Keller sind Haustechnik und Lagerfläche vorgesehen.
Denkmalgeschützte Brauerei-Remise in Berlin
Das Grundstück in der Kollwitzstraße liegt im Hof eines geschlossenen Blockrands aus sechsgeschossigen Gründerzeitbauten. Seit 1995 steht hier im Sanierungsgebiet das Ensemble einer ehemaligen Brauerei mit Remise unter Denkmalschutz.
Als Architekten hatten wir sogar schon den Abriss des Gebäudes erwogen – aber: Die Bauherren hatten sich bereits in die marode Remise verliebt.
Das Dach als „Fünfte Fassade“
Der Umbau durch roedig.Schop Architekten zu einem Wohnhaus machte es notwendig, Licht und Luft in den sieben Meter tiefen, einseitig orientierten Baukörper zu bringen. Dazu wurde das stark beschädigte Dach erneuert und als „fünfte Fassade“ durch drei großformatige Dachflächenfenster geöffnet. Die verbleibende Fläche ist extensiv begrünt.
Nun fällt das Tageslicht über die Treppe bis ins Erdgeschoss. Außerdem wurde unterhalb des um 70 Zentimeter über die Traufe angehobenen Dachs ein schimmerndes Lichtband eingezogen.
Gebäudedaten
- Standort: Berlin
- Grundstücksgröße: 953 m2
- Wohnfläche: 200 m2
- Zusätzliche Nutzfläche: 27 m2
- Anzahl der Bewohner: 4
- Bauweise: Bestand – Mauerwerk, Neu – Stahlbeton, Holzdach
- Heizwärmebedarf: 25, 34 kW/m2a
- Primärenergiebedarf: 37, 12 kWh/m2a
- Baukosten: 342.000 Euro
- Baukosten je Wohn-und Nutzfläche: 1.506 Euro
- Fertigstellung: 2010
Fotos: Gianni Plescia, Berlin
Dieses Haus ist erschienen in: “Häuser des Jahres 2012”, Callwey Verlag.