Split-Level Landschaft

von Destilat Architecture + Design.

Destilat Architecture Design wohnen im Split Level Haus Lageplan
Lageplan

Leben mit Ausblick ins Alpenvorland

Das steil zur Donau hin abfallende Randgrundstück liegt am Fuße des Pöstlingbergs im Nordosten von Linz. Es ist von Wald, Wiesen und einem Obstgarten umgeben. Ziel war es deshalb, beim Entwurf die Einzigartigkeit der Landschaft zu berücksichtigen und sich gegen eine bestehende Wohnsiedlung abzuschotten, ohne den Ausblick über das Donautal ins Alpenvorland zu beeinträchtigen. Der Hauskörper folgt mit versetzten Geschossebenen der Topografie, sie kokettieren mit dem Außenraum. Das Zentrum bildet ein gestockter Sichtbetonkörper, um den sich die Erschließung entwickelt, er durchstößt alle Ebenen und ist im ganzen Haus zu spüren. Er interpretiert die Lage des Hauses in der am Donaudurchbruch von Felsen dominierten Landschaft.

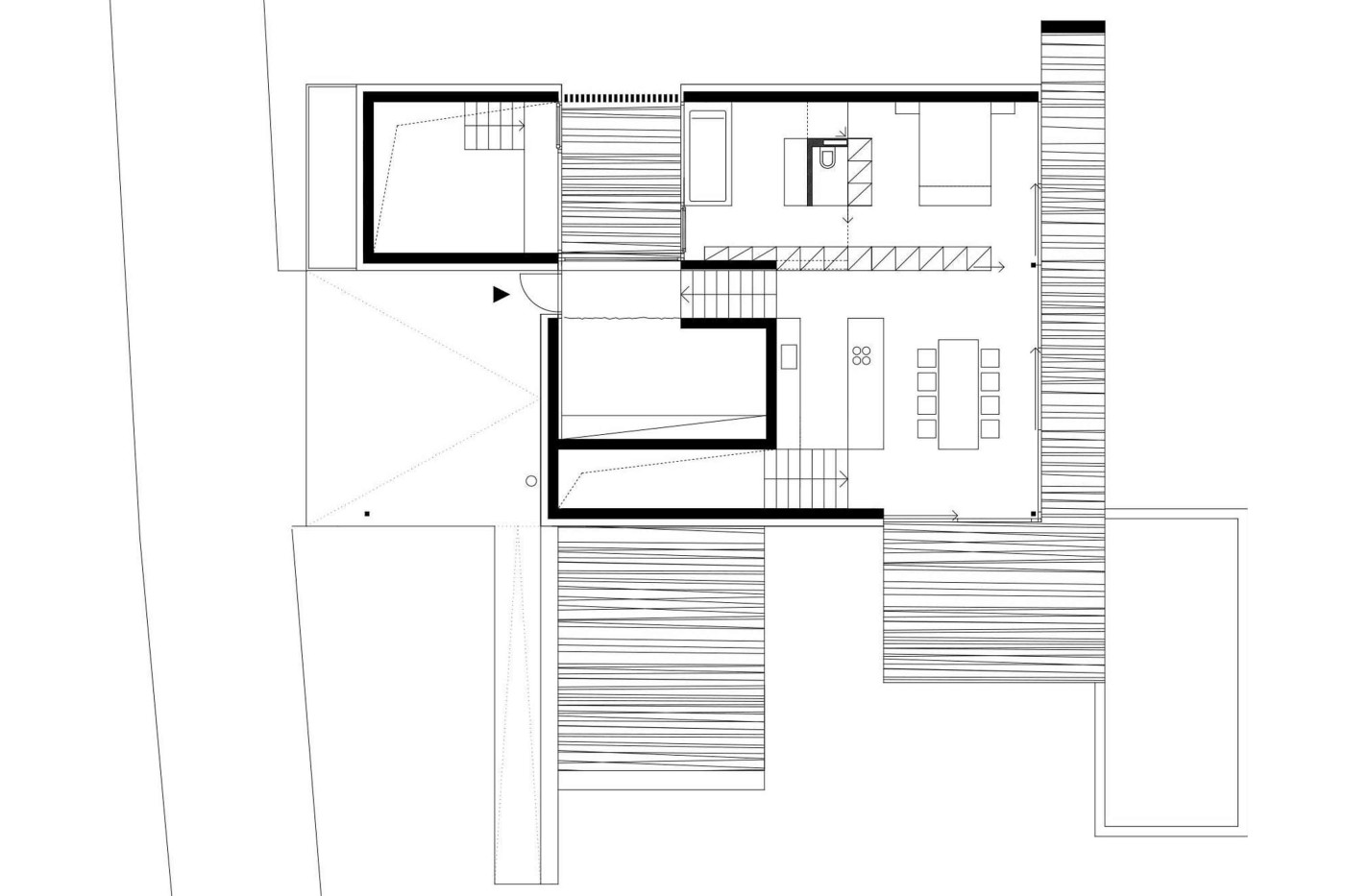
Destilat Architecture Design wohnen im Split Level Haus Grundriss Erdgeschoss
Grundriss Erdgeschoss

Highlight: Unterschiedliche Raumhöhen

Die Split-Level-Bauweise ergibt unterschiedliche Raumhöhen in allen Geschossen, ein eingeschnittener Hof belichtet die Räume im Südosten und erlaubt ansonsten eine geschlossene Front zu den Nachbarn. Die vollverglaste Fassade nach Südwesten wird durch ein vorgehängtes Rahmenelement verschattet, es führt den Innenraum nach außen, schützt vor Bewitterung und bietet an seinem auskragenden Endpunkt einen neugierigen Aussichtsplatz. Das weit hervortretende Dach über dem Carport markiert und schützt den Eingang. Die Diele überrascht durch den Ausblick über den Lichthof. Zunächst erreicht man ein halbes Geschoss tiefer die Küche, die sich an den Betonkern anlehnt. Hier liegt peripher der Elternbereich. Am Essplatz vorbei folgen tiefer gestaffelt der Wohnraum mit unterschiedlichen Deckenhöhen – licht und hoch zur Terrasse, bergend über der Polstergruppe – und schließlich die Kinderzimmer.

Destilat Architecture Design wohnen im Split Level Haus Grundriss Hanggeschoss
Grundriss Hanggeschoss
Destilat Architecture Design wohnen im Split Level Haus Schnitt
Schnitt

Ökologische Dämmung mit Hanf

Außer den statisch erforderlichen, erdberührenden Stahlbetonfundamentplatten und wenigen massiven Wänden schließt die weitere Konstruktion in Holzbauweise an. Dem Bauherrn war ein ressourcen-effektives „wohngesundes“ Haus wichtig. Deshalb wurde mit Hanf gedämmt, eine Luftwärmepumpe in Verbindung mit kontrollierter Wohnraumlüftung erreicht Niedrigenergiestandard. Ein speziell gemischter Putz ergibt die erdige Farbe der Fassade, die innen von einem hellen Estrich und einer durchweg weißen Farbgebung abgelöst wird.

 

 

Pläne und Grundrisse:

 

Architekt: Destilat Architecture + Design

Ziel war es, die Einzigartigkeit des Waldrands in das Konzept einzubinden [und] eine gleichzeitige Abschottung zur Siedlung zu gewährleisten (…)

 

Gebäudedaten:

  •  Standort: Linz
  • Grundstücksgröße: 4.500 m2
  • Wohnfläche: 220 m2
  • Zusätzliche Nutzfläche: 30 m2
  • Anzahl der Bewohner: 5
  • Bauweise: Mischbau (ebenerdige Bauteile: Stahlbeton, Rest: Holzriegelkonstruktion)
  • Heizwärmebedarf: 25 kWh/m2a
  • Baukosten: 350.000 Euro
  • Baukosten je m2 Wohn- und Nutzfläche: 1.400 Euro
  • Fertigstellung: 2010

 

Fotos:

Mark Sengstbratl
Joachim Haslinger

Dieses Haus ist erschienen in: “Häuser des Jahres 2011”, Callwey Verlag.