Wohnhaus mit vier Ebenen

von Baurmann Dürr Architekten.

Die Lage am Karlsruher Geigersberg wird von großen Ein- und Mehrfamilienhäusern bestimmt, die sich mit freien Winkelformen und he­t­erogenen Dächern auf den leicht geneigten Gartengrundstücken verteilen. Auch dieser Neubau reagiert auf die Topografie, setzt sie sogar im Innern fort. Tatsächlich sind es vier Ebenen, von denen aber nur jeweils zwei in Erscheinung treten. Dadurch gelang es, das passable Volumen auf dem relativ kleinen, zumal mit alten Bäumen bestan­denen Grundstück unterzubringen, ohne dass der Maßstab der umgebenden Bebauung gestört wird. Das Haus gräbt sich in den Baugrund und wächst gleichzeitig aus ihm heraus.

baurmann-duerr-architekten-wohnhaus-mit-vier-ebenen-lageplan
Lageplan
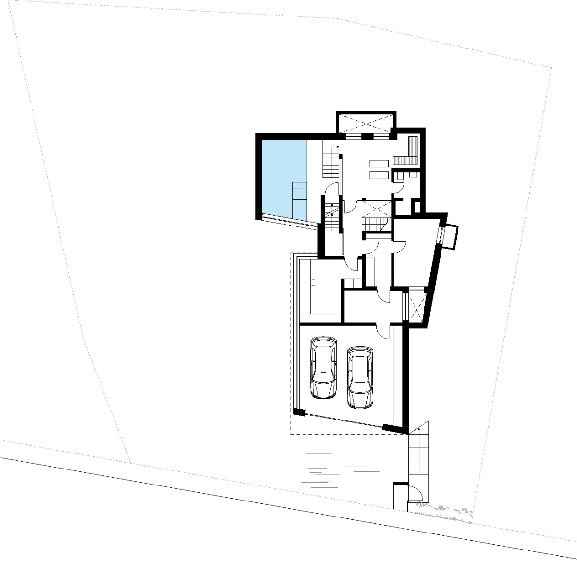
baurmann-duerr-architekten-wohnhaus-mit-vier-ebenen-grundriss-untergeschoss
Grundriss Untergeschoss

Die mit Juraplatten verkleideten Fassaden umschreiben die raumhohen Verglasungen wie ein Passepartout und verweisen auf den funk­tionalen Aufbau des Hauses, zur Straßenseite schließen sie sich zu einer massiven Außenwand. Im Sockelbereich vermitteln dunkle Ziegel zum Gartengrund. Erschlossen wird es auf einer mittleren Ebene, hier ist die Teilung in zwei winklig verbundene Kuben am deutlichsten. Vorbei am hellen Spielflur des Kindertrakts erreicht man eine Treppenhalle. Im Zentrum liegt der Essplatz, die Küche erhält einen abgeschlossenen Raum – ein inzwischen seltener, dennoch sinnvoller Beitrag. Durch Deckenaussparungen sind die angrenzenden Ebenen im Blick. Der Wohnraum dagegen liegt seitlich ein halbes Geschoss tiefer, eine Glasbrüstung grenzt ihn aber nicht aus.

baurmann-duerr-architekten-wohnhaus-mit-vier-ebenen-grundriss-erdgeschoss
Grundriss Erdgeschoss
baurmann-duerr-architekten-wohnhaus-mit-vier-ebenen-grundriss-obergeschoss
Grundriss Obergeschoss
baurmann-duerr-architekten-wohnhaus-mit-vier-ebenen-querschnitt
Querschnitt

Die Fortsetzung der Treppe nach unten führt in den Wellnessbereich, an den – abermals ein halbes Geschoss versetzt – ein Schwimmbecken anschließt, dem eine breite Fenstertür Tagesbelichtung und Gartenzugang bietet. Durch die bis ins Obergeschoss reichende Treppenkaskade in der Fuge zwischen den beiden Kuben haben alle übrigen Funktionen im Untergeschoss wie Gästezimmer und Garage Anschluss an den Haushalt. Ganz oben schließlich sind die Eltern zu Hause. Ihr Schlafraum wird von Ankleide und Bad flankiert, der Endpunkt der Enfilade ist der Arbeitsplatz des Hausherrn. Hier kann er sich vom Blick in die Rhein­ebene und die im Dunst verschwimmenden Vogesen ablenken lassen.

baurmann-duerr-architekten-wohnhaus-mit-vier-ebenen-laengsschnitt
Längsschnitt

 

Pläne:

 

Architekt: Baurmann Dürr Architekten

Gestapelte Funktionsebenen, leicht verdreht, schienen uns die richtige Antwort auf die Enge des Grundstücks, die Ausblicke, das umfangreiche Raumprogramm.

 

Gebäudedaten:

  • Grundstücksgröße: 1.029 m²
  • Wohnfläche: 325 m²
  • Zusätzliche Nutzfläche: 161,50 m²
  • Bauweise: Stahlbeton massiv
  • Fertigstellung: 12/2011

Fotos:

Stephan Baumann, Karlsruhe
Swen Carlin, Heidelberg

Dieses Haus ist erschienen in: “Häuser des Jahres 2013”, Callwey Verlag.