Zweifamilienhaus

von ERN + HEINZL.

Ein Doppelhaus in interessanter Lage

Am Jurasüdfuß in der Schweiz steht dieses mit großer Strenge und täuschender Symmetrie geordnete Zweifamilienhaus. Das Massivhaus reagiert eindeutig auf die Situation seiner Lage: nach Norden dominiert der mächtige Jurahöhenzug, nach Süden erstreckt sich das Tal bis in die Alpen. Der Baukörper nimmt diese topografische Hauptrichtung parallel zum Hang auf.

Ern Heinzl Zweifamilienhaus Lageplan
Lageplan
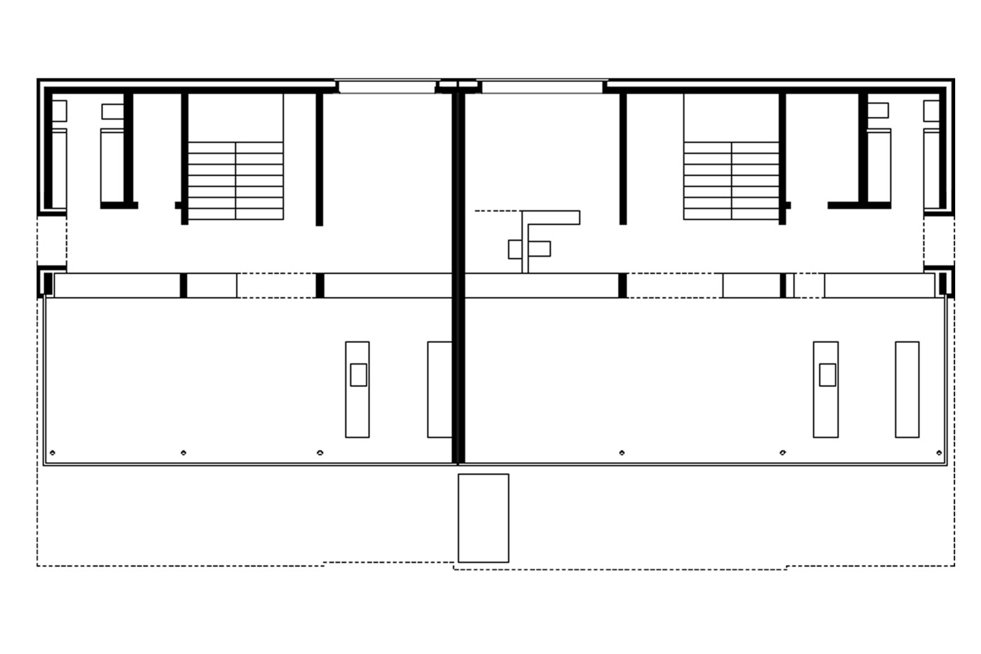
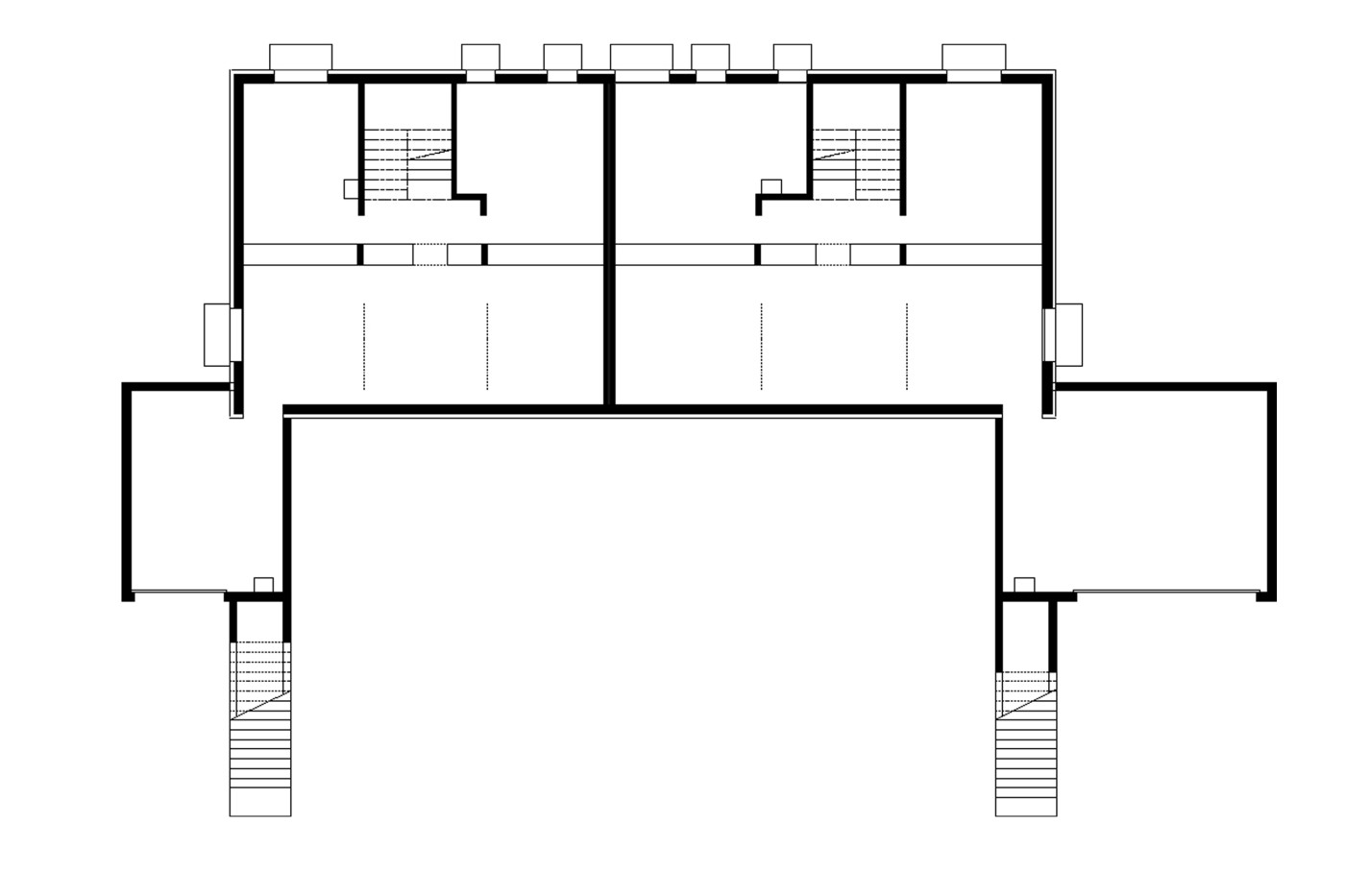
Ern Heinzl Zweifamilienhaus Grundriss Untergeschoss
Grundriss Untergeschoss

Freie Aussicht auf den Garten

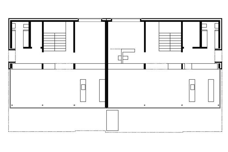
Mit seinen beiden Außentreppen, zwischen denen das Gelände vor dem Untergeschoss als steile Schräge aufgefüllt wurde, wirkt es wie der gediegene Tribünenbau eines Sportstadions. Der Zugang führt über die Dächer der Garagen, die an den Rand des Grundstücks gerückt sind, um die Aussicht nach Süden und in den Garten nicht zu stören. Aber zweifellos handelt es sich um den Zweiklang einer Villa, wobei die rechte ein wenig breiter geraten durfte. Die innere Aufteilung auf allen Ebenen wird durch eine dem Hangverlauf folgende Schrankzone bestimmt, die als durchgehendes, nur von Türdurchgängen unterbrochenes Möbel oder flankierende Ankleiden den Grundriss in einen nördlichen und einen südlichen Teil trennen.

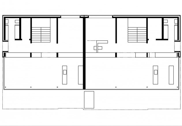
Ern Heinzl Zweifamilienhaus Grundriss Erdgeschoss
Grundriss Erdgeschoss
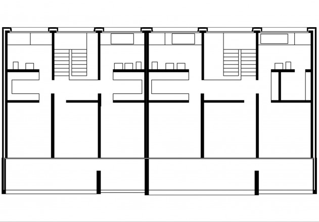
Ern Heinzl Zweifamilienhaus Grundriss Obergeschoss
Grundriss Obergeschoss

Solides Massivhaus aus Sichtbetonelementen

Zum Berg liegen auf der Eingangsebene Garderobe, Gästezimmer und Treppe, auf der Ebene darüber die Bäder; alle Zimmer, die dem Wohnen dienen, sind im Erdgeschoss, die Schlafzimmer im Obergeschoss zur hellen Talseite gerichtet. Nach außen demonstrieren drastisch ausladende Loggien die ideale Blickrichtung. Damit werden auf beiden Stockwerken großzügig nutzbare Veranden angeboten. Material und Farbe suchen die Distanz zwischen innen und außen, zwischen Wohnen und Landschaft: Diese Neutralität inszeniert den Ausblick als Besonderheit. Das Massivhaus ist massiv gebaut aus feinen vorgefertigten Sichtbetonelementen mit innenliegender Wärmedämmung. Die völlig glatte innere Schale ist weiß geschlämmt. Durch Ihren Versatz an der Fassade wird das Volumen des Gebäudes betont und die Geschossfuge überspielt; hier auf der Rückseite lassen die tief eingeschnittenen Fensterbänder die solide Wandstärke erkennen.

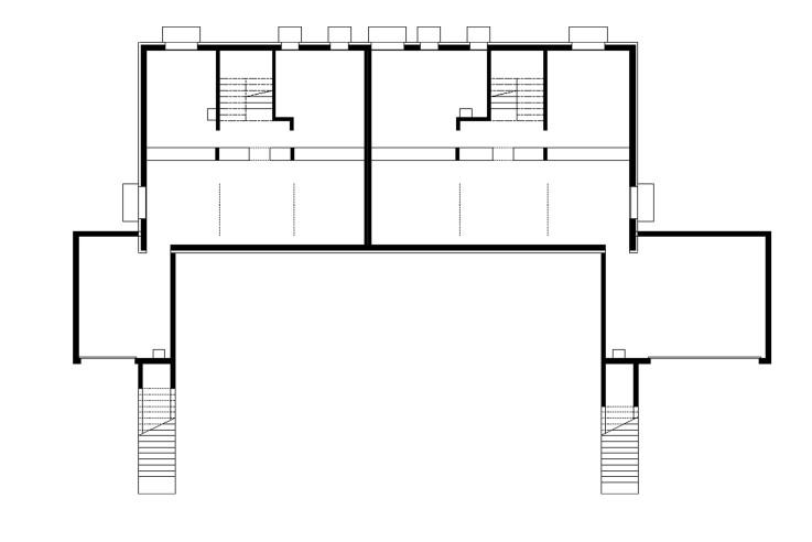
Ern Heinzl Zweifamilienhaus Querschnitt
Querschnitt

 

Pläne und Grundrisse Zweifamilienhaus:

Hier finden Sie den Lageplan, den Querschnitt sowie die Grundrisse für Erdgeschoss und Obergeschoss dieses beispielhaften Zweifamilienhauses der Architekten Ern + Heinzl.

 

Architekt: ERN + HEINZL

Großzügiges Wohnen, umgeben von Natur, ist etwas ganz Besonderes.

 

Gebäudedaten:

  • Grundstücksgröße: 904 m²
  • Wohnfläche: 390 m²
  • Zusätzliche Nutzfläche: 270 m²
  • Anzahl der Bewohner: 2 Familien
  • Bauweise: vorfabrizierte mono­lithische Fertigbauteile in Beton,  Sandwich-Elementbauweise
  • Baukosten gesamt: 1.727.000 EUR
  • Baukosten je m² Wohn- und Nutz­fläche: 2.617 EUR
  • Fertigstellung: 08/2012

 

Fotos:

Stefan Müller Fotografie, Berlin

Dieses Haus ist erschienen in: “Häuser des Jahres 2013”, Callwey Verlag.