Urhütte und Villa

von Clavienrossier Architectes.

Doppelhaus: zwei Häuser in einem

Bei „Doppelhaus“ denkt man an Lastenausgleich und Bausparersolidarität, wenn es für ein frei stehendes Massivhaus nicht reicht. Die Architekten sprechen deshalb hier von „deux maisons en une“, was der eigenwilligen Lösung gerechter wird. Das Gebäude mit seiner kristallartigen Kubatur umschreibt zwei Appartements unterschiedlicher Größe und forderte in den zahlreichen Veröffentlichungen heraus, sich an die Schulgeomtrie zu erinnern: Ist der Grundriss eine schiefe Wabe, eine Raute, ein „Rhombus mit abgezwackten Enden an den Längsseiten“?

Clavienrossier Architectes Urhuette und Villa Lageplan
Lageplan

Clavienrossier Architectes Urhuette und Villa Grundriss Erdgeschoss
Grundriss Erdgeschoss

Aussicht auf Wald und freie Felder und ein Pool im Garten

Die Architekten dachten eher an einen Grenzstein, der den Übergang vom Wohnquartier zur Natur markieren sollte. Das Grundstück liegt nämlich an der Siedlungsgrenze im Außenbezirk von Genf. Im Süden schließt der Wald an, im Westen die offenen Felder. Das Haus ist auf der Parzelle ganz nach Nordosten gerückt, so kommt die Sonne ungehindert in den Garten, und den Nachbarn wird nicht der Ausblick zum Wald verstellt. Außerdem blieb Platz für einen schmalen Pool. Der schlanke Baukörper mit seinen charakteristischen Facetten verrät nicht, wie die beiden Wohnungen aufgeteilt sind, wo die trennende Wand zwischen ihnen auf die Fassade trifft.

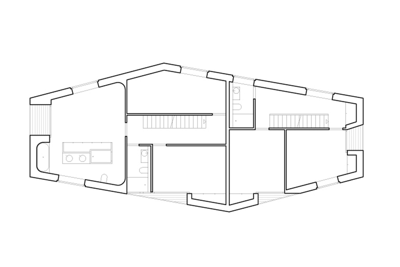
Clavienrossier Architectes Urhuette und Villa Grundriss Obergeschoss
Grundriss Obergeschoss

Clavienrossier Architectes Urhuette und Villa Grundriss Dachgeschoss
Grundriss Dachgeschoss

Schmal trifft auf stattlich: Hütte oder Villa?

Aus jeder Perspektive erscheint das Rhomboid anders und gibt Rätsel über seine Größe auf, es changiert zwischen schmaler Urhütte und stattlicher Villa. So kann sich jeder Bewohner mit seinem Hausteil identifizieren und in eine andere Richtung orientieren. Alle Fassadenflächen sind glatt, sie knicken mit scharfen Kanten. Der Beton der Außenwände ist durchgefärbt, das Dach aus Faserzementtafeln schließt ohne sichtbare Rinne an. Öffnungen gibt es entweder als deutlich eingeschnittene Loggien oder flächenbündige Fenster aus Lärchenholz. Sie sind so angeordnet, wie es für die funktionale Nutzung oder die Platzierung der Möbel vorteilhaft ist. Beide Parteien erreichen über einen geneigten Weg die keilförmig zurückgesetzten Hauseingänge an der Nordost-Seite.

Clavienrossier Architectes Urhuette und Villa Schnitt
Schnitt

Wohnung unterm Dach mit offener Galerie

Im Erdgeschoss betritt man jeweils einen ungeteilten Wohnraum mit einer offenen Küche, aus den bodentiefen Fenstern sieht man bis zum Waldrand. Eine Treppe führt nach oben zu den Schlafräumen mit einem oder zwei Kinderzimmern, im größeren Hausteil gehören ein offenes Bad und eine Loggia zum Elternzimmer. Das kleinere Appartement bietet die gleiche Qualität unterm Dach, der Nachbar findet dort eine Galerie als weitere Fläche für ein Büro oder Gäste. Die kompakte Gebäudeform mit einem günstigen Verhältnis von Flächen zu Volumen trägt zu einem hohen Energiestandard bei.

Pläne und Grundrisse:

Gebäudedaten:

  • Standort: Genf
  • Wohnfläche: 298 m²
  • Grundstücksgröße: 910 m²
  • Zusätzliche Nutzfläche: 179 m²
  • Bauweise: Massivbauweie
  • Fertigstellung: 08/2013

Architekt: Clavienrossier Architectes

Das Volumen des Gebäudes ist so geformt, dass jede Gebäudehälfte als eigenständiges Haus wahrgenommen wird.

 

Fotos:

Roger Frei, Zürich

Dieses Haus ist erschienen in: “Häuser des Jahres 2014”, Callwey Verlag.