Villa am See

von Michele Arnaboldi Architetti.

Michele Arnaboldi Architetti Villa am See Lageplan
Lageplan

Wohnen über dem Lago Maggiore

Dieses Einfamilienhaus steht auf einem relativ dicht bebauten Südhang oberhalb des Lago Maggiore. Der Entwurf des L-förmigen Grundrisses entwickelt sich aus den besonderen Bedingungen des Orts: der an die Grundstücksgrenze im Osten anschließenden Bebauung und natürlich der herrlichen Aussicht nach Süden und Südwesten.

Michele Arnaboldi Architetti Villa am See Grundriss Kellergeschoss
Grundriss Kellergeschoss
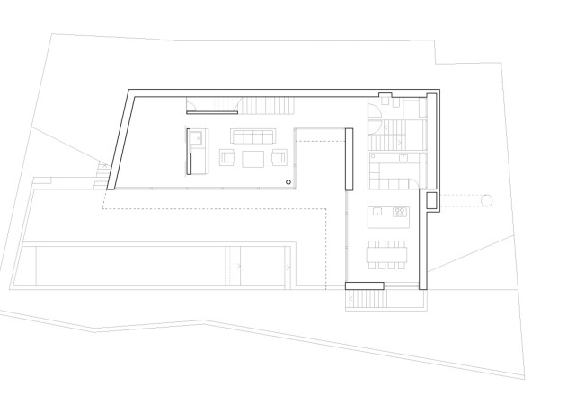
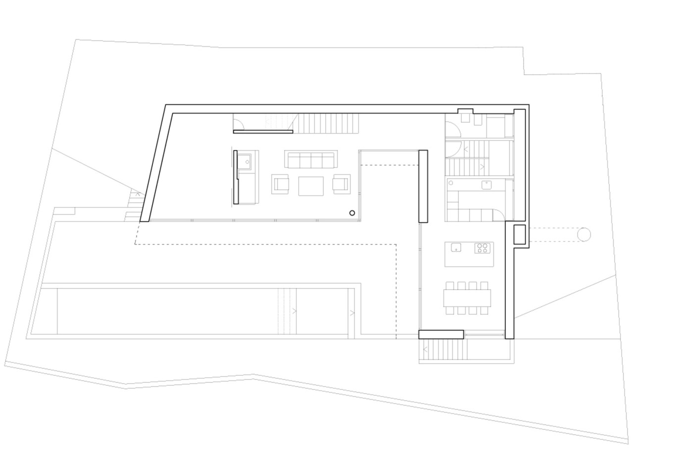
Michele Arnaboldi Architetti Villa am See Grundriss Erdgeschoss
Grundriss Erdgeschoss

Fokus auf absolute Privatsphäre

Durch die introvertierte Gebäudeform, die sich um einen schmalen, langen Swimmingpool winkelt, wird das Private der Wohnräume betont, gleichzeitig fokussiert die Öffnung das Panorama der umgebenden Berge mit dem See. Die Villa am See hat keine direkte Anbindung an die Straße. Für das Auto hat es einen Stellplatz in einer Tiefgarage unterhalb, von hier nimmt man den Fußweg oder einen öffentlichen Aufzug. Die beiden Schenkel des Hauses, zwischen denen auf der obersten Ebene der Lichthof des Eingangs liegt, teilen das Massivhaus in zwei kommunizierende Volumen. Zunächst kommt man auf der privaten Ebene an.

Michele Arnaboldi Architetti Villa am See Grundriss erstes Obergeschoss
Grundriss Obergeschoss

Badezimmer mit Ausblick

Hier liegen jeweils großzügige Schlafzimmer mit Ankleiden und Bädern, wobei die eine Seite den unbezahlbaren Luxus bietet, dass man sogar aus der Wanne ungehindert in die Landschaft schauen kann. Nach Osten gibt es noch ein Arbeitszimmer. Die Treppe auf der Bergseite führt nach unten. Hier umschreibt der parallel zum Hang ausgerichtete Gebäudeteil den Wohnbereich. Nach einer deutlichen Zäsur durch die in den Baukörper einschneidende Terrasse folgt senkrecht dazu der Servicebereich, an dessen äußerem Ende der Essplatz liegt. Dort kann man einige Stufen in den Garten nehmen, eine weitere Podesttreppe führt in die Kellerräume.

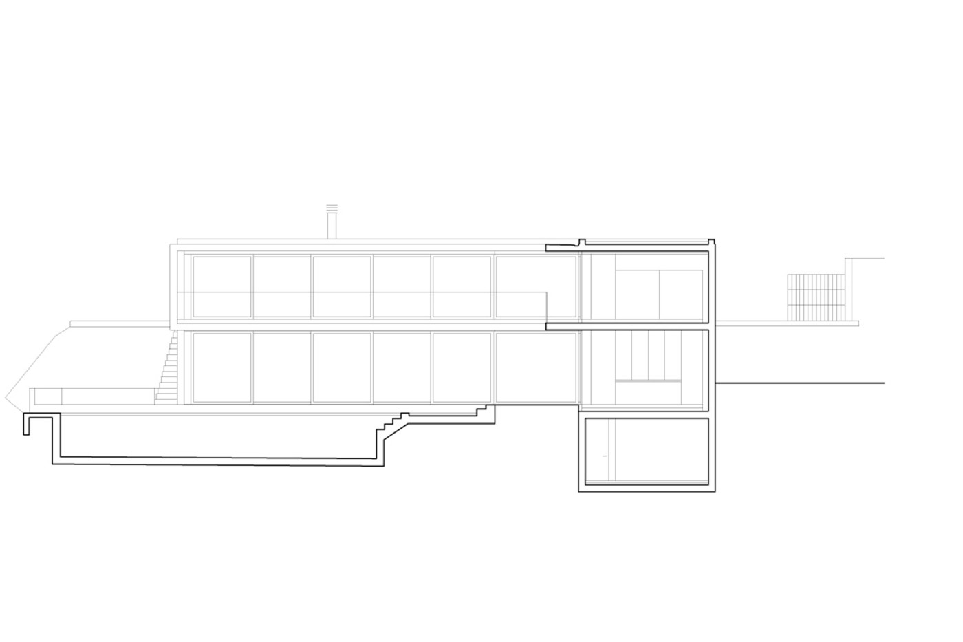
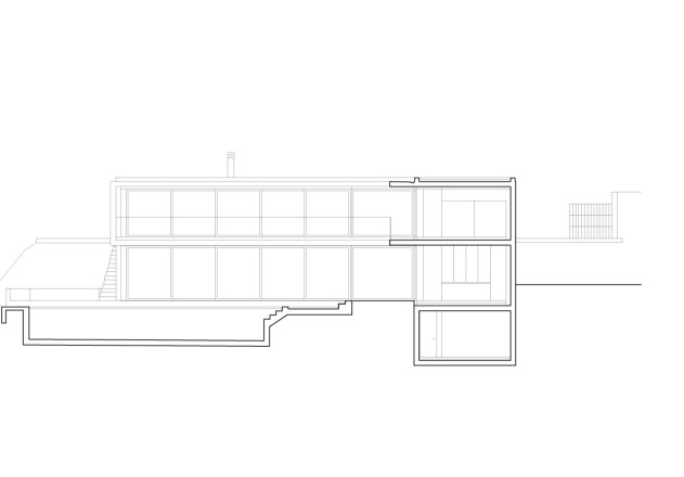
Michele Arnaboldi Architetti Villa am See Querschnitt
Querschnitt

Moderner Luxus am Südhang

Das Bauwerk ist eine reine Sichtbetonkonstruktion mit innenliegender Dämmung und Gipskartonverkleidung. Die Fassade öffnet sich mit zwei Bändern aus raumhohen Aluminiumschiebefenstern. Auf dem Boden wurde Wenge-Parkett verlegt, auch Türen und Einbauschränke sind mit Wenge furniert. Das innen und außen gedämmte Flachdach hat eine Kiesbedeckung. Die Beheizung übernimmt eine Luft-Wasser-Wärmepumpe, auf dem Dach sind noch Solarpaneele vorgesehen.

Michele Arnaboldi Architetti Villa am See Laengsschnitt
Längsschnitt

 

Pläne und Grundrisse:

 

Architekt: Michele Arnaboldi Architetti

Architektur (…) ist eine Lebensqualität. Und als solche hat sie den Lebensgewohnheiten ihrer Bewohner in hohem Maße zu dienen.


Gebäudedaten:

  • Standort: Orselina (CH)
  • Anzahl der Bewohner: 2
  • Wohnfläche: 253,5 m²
  • Grundstücksgröße: 558 m²
  • Zusätzliche Nutzfläche: 62 m²
  • Bauweise: Massivbauweise in Sichtbeton
  • Baukosten gesamt: 1.090.000 €
  • Heizwärmebedarf: 7 kWh/m2a
  • Energiestandard: erfüllt die Norm RuEN
  • Fertigstellung: 06/2013


Fotos:

Nicola Roman Walbeck Photography, Düsseldorf

Dieses Haus ist erschienen in: “Häuser des Jahres 2014”, Callwey Verlag.