Einladende Geste

von Bembé Dellinger Architekten und Stadtplaner.

Das Grundstück liegt oberhalb des Starnberger Sees, dort wo die dichtere städtische Bebauung in die offenere Villenstruktur einer parkartigen Umgebung übergeht. Das kleine einladende Ensemble aus zwei korrespondierenden winkelförmigen Gebäuden erinnert an ein klassisches Anwesen mit Gesinde- oder Pförtnerhaus.

bembe-dellinger-lageplan
Lageplan

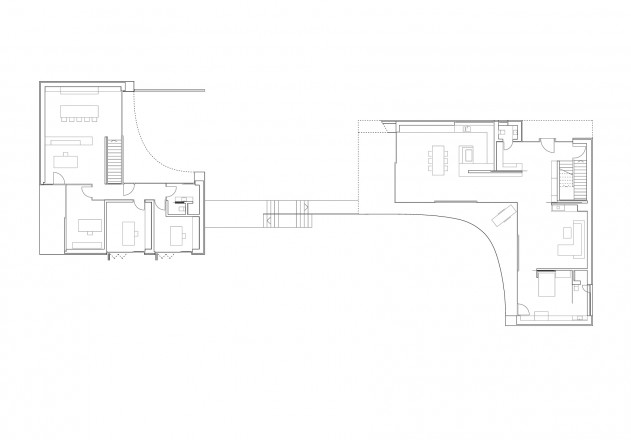
Die Hierarchie der Nutzung ist allerdings anders geartet: der größere Flügel nimmt eine passable Haupt- und eine Einliegerwohnung auf, der kleinere umschreibt Büroflächen und dazugehörige Nebenräume für das Unternehmen des Bauherrn.

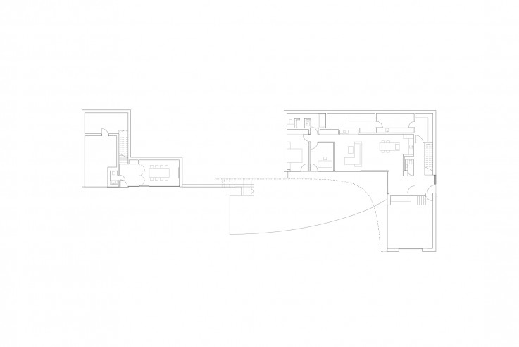
bembe-dellinger-grundriss-ug
Grundriss Untergeschoss

Beide Häuser werden organisch durch einen Treppenweg verbunden, ihre Fassadenkurven setzen sich als Gartenbrüstungen fort. (Bembé Dellinger_Villa in Starnberg_Aussenansicht_03) (Bembé Dellinger_Villa in Starnberg_Lattenschraffur_Fassade) Die geschwungene Fassade mit ihrer Lattenschraffur zitiert das (abbruchwürdige) Haus aus den frühen 1960er Jahren, das man auf dem Grundstück vorgefunden hat. Der Neubau an gleicher Stelle nimmt dessen L-förmigen Grundriss auf und bietet mit Höfen, Balkonen und Dachterrassen ebenfalls einen vielfältigen Bezug nach außen.

bembe-dellinger-grundriss-eg
Grundriss Erdgeschoss
bembe-dellinger-grundriss-og
Grundriss Obergeschoss

Selbst die umlaufende Holzverkleidung hatte ihr Vorbild in den Staketen der Nierentisch-Balkone des Vorgängers. Der endgültige Umriss der beiden Baukörper ergab sich aus dem dichten Baumbestand, einige Bäume wurden beim Baufortschritt ersetzt. Das kleine Bürohaus begleitet den Zugang auf das Grundstück. Es ist so geplant, dass es mit wenigen Eingriffen auch als Wohnung genutzt werden kann.

bembe-dellinger-grundriss-schnitt
Längs- und Querschnitt

Das Haupthaus reicht über drei Ebenen. Die Einliegerwohnung im Untergeschoss neben den Garagen hat einen separaten Eingang und einen eigenen Garten, kann aber durch die Treppe von der oberen Wohnung erreicht werden. Die nimmt zurzeit die beiden oberen Geschosse ein zunächst mit Kochen, Essen und Wohnen in einem winkelförmigen Großraum, dann darüber die Schlafräume. Beide Ebenen sind so ausgestattet, dass sich ohne Aufwand zwei attraktive Geschosswohnungen herstellen lassen.

Garten, Balkon oder Dachterrasse, selbst ein offener Kamin gehören zur doppelten Ausstattung. Natürliche Materialien wie Eichenparkett und Quarzit-Beläge bestimmen die Räume. Die Konstruktion besteht aus Stahlbeton und Mauerwerk, eine Erdwärmepumpe versorgt die Heizung.

 

Pläne:

 

Architekt: Bembé Dellinger Architekten und Stadtplaner

Als Spiegel der traditionellen Starnberger Villenbebauung bettet sich das Gebäude in die bestehende Hanglandschaft.

 

Gebäudedaten:

  • Standort: Starnberg
  • Wohnfläche: 526 m²
  • Grundstücksgröße: 1.389 m²
  • Bauweise: Massivbauweise
  • Fertigstellung: 12/2012

Fotos:

Stefan Müller-Naumann, München

Dieses Haus ist erschienen in: “Häuser des Jahres 2014”, Callwey Verlag.